8230 S Ogden Circle Littleton CO 80122 MLS #REC7121860
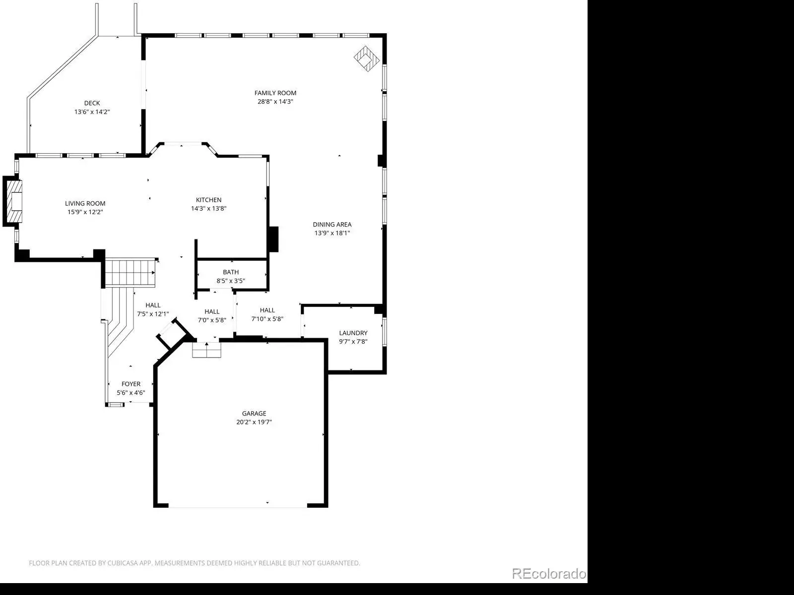
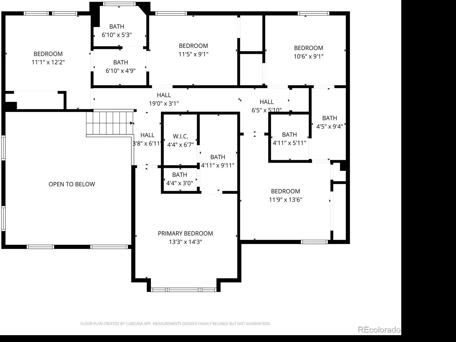
Welcome home to this bright and beautiful 5 bed, 4 bath residence offering over 3,000 square feet of comfortable living in a premium setting. Tucked on an end lot with only one direct neighbor (south side) and not backing to other homes, this property offers a rare sense of privacy and space, perfect for anyone wanting room to breathe. Top that with a VA assumable loan making it an excellent choice! Step inside and you’ll immediately notice the copious amount of natural light pouring through the abundance of windows, enhancing the home’s open and airy feel. The main level features hardwood flooring, vaulted ceilings, and classic 6-panel wood doors. The chef’s dream kitchen is thoughtfully appointed with slab granite countertops, stainless steel appliances, and plenty of space for cooking, gathering, and entertaining. A charming wood-burning fireplace add warmth and character to the adjoining dining area. A standout feature is the bonus room off the kitchen with wood burning stove, offering exceptional versatility with windows lining the entire east wall for morning light and an included bar, making it perfect for entertaining, movie nights, studio, or game room. Upstairs, the primary suite serves as a private retreat with primary bath featuring a double vanity and spacious walk-in closet. Also upstairs, bedrooms 2 & 3 share a Jack-and-Jill bath with double vanity, while Bedrooms 4 & 5 share their own Jack-and-Jill bath with double vanity—a perfect layout for large households, guests, or work-from-home flexibility. The solar electric system is paid off and they have upgraded the HVAC system to include two furnaces. A roughed in Generac whole house generator and heat pump in the attached 2-car garage are ready for final hookup to round out the ability to self sustain. Outdoor living is just as impressive with decks on both the front and rear of the home, giving you multiple spaces to relax, grill, entertain, or simply enjoy the open views and privacy.
Property Details
Price:
$690,000
MLS #:
REC7121860
Status:
Active
Beds:
5
Baths:
4
Type:
Single Family
Subtype:
Single Family Residence
Subdivision:
Cobblestone Village
Finished Sq Ft:
3,075
Total Sq Ft:
3,228
Lot Size:
6,970 sqft / 0.16 acres (approx)
Year Built:
1992
Schools
School District:
Littleton 6
Elementary School:
Sandburg
Middle School:
Powell
High School:
Heritage
Interior
Above Grade Finished Area
2922
Appliances
Cooktop, Dishwasher, Disposal, Gas Water Heater, Microwave, Oven, Range, Refrigerator, Self Cleaning Oven
Bathrooms
3 Full Bathrooms, 1 Half Bathroom
Below Grade Finished Area
153
Below Grade Unfinished Area
153
Cooling
Central Air
Fireplaces Total
1
Flooring
Carpet, Tile, Vinyl, Wood
Heating
Forced Air, Natural Gas, Wood Stove
Interior Features
Eat-in Kitchen, Entrance Foyer, Five Piece Bath, Granite Counters, High Ceilings, Jack & Jill Bathroom, Kitchen Island, Open Floorplan, Primary Suite, Solid Surface Counters, Vaulted Ceiling(s), Walk-In Closet(s)
Laundry Features
Sink
Levels
Three Or More
Main Level Bathrooms
1
Exterior
Architectural Style
Contemporary
Attached Garage YN
1
Construction Materials
Brick, Frame
Direction Faces
West
Exterior Features
Private Yard
Fencing
Full
Garage Spaces
2
Lot Features
Corner Lot, Level
Parking Spots
2
Parking Total
2
Patio And Porch Features
Deck, Front Porch
Roof
Composition
Security Features
Carbon Monoxide Detector(s), Smart Cameras, Smoke Detector(s), Video Doorbell
Window Features
Double Pane Windows, Window Treatments
Financial
HOA Fee
$219
HOA Fee Frequency
Quarterly
HOA Includes
Recycling, Trash
HOA Name
LCM Property Management
HOA Phone
303-221-1117
Tax Year
2024
Taxes
$4,718
Map
Contact Us
Mortgage Calculator
Property Summary
- Located in the Cobblestone Village subdivision, 8230 S Ogden Circle Littleton CO is a Single Family for sale in Littleton, CO, 80122. It is listed for $690,000 and features 5 beds, 4 baths, and has approximately 3,075 square feet of living space, and was originally constructed in 1992. The current price per square foot is $224. The average price per square foot for Single Family listings in Littleton is $348. The average listing price for Single Family in Littleton is $1,052,467. To schedule a showing of MLS#rec7121860 at 8230 S Ogden Circle in Littleton, CO, contact your Smart Sale AI agent at 3039066915.
Similar Listings Nearby
Additional Details
MLS # : REC7121860
Listing Key : REC2051411564
Parcel Number : 033078888
Zip Code : 80122
City : Littleton
State : CO
Building if Condo :
Street : 8230 S Ogden Circle
Address : 8230
Address Prefix :
Address Suffix : Circle
Unit if Condo :
Latitude : 39.567329
Longitude : -104.976830
Property Type : singlefamily
Property Sub Type : Single Family Residence
Stories Total if Condo :
Lot Size : 6,970 sqft / 0.16 acres (approx)
Ownership : Individual
Zoning :
Condition : Updated/Remodeled
Renovation :
Pets Allowed : Cats OK,Dogs OK
Special Conditions : None
Possession : Closing/DOD
Original Price : 720000
Close Price :
Close Date :
List Date : Jan 15, 2026
List Contract Date : 2026-01-15
Off Market Date :
Purchase Contract Date :
Days on Market : 96
Concessions Amount :
Concession Comment :

Copyright 2026. All rights reserved.
8230 S Ogden Circle
Littleton, CO















































