7947 S Dover Street Littleton CO 80128 MLS #REC6334931
**BRING YOUR TOYS for This RARE OPPORTUNITY Situated On A Generous .29-Acre Lot This Beautifully Maintained Ranch-Style Home Offers The Freedom You’ve Been Searching For With NO COVENANTS**A Circular Driveway Creates A Grand First Impression While Providing Ample Parking For Guests, Vehicles and Toys**This Property Features A Two-Car Attached Garage PLUS An Impressive 720 SqFt Detached Workshop/Garage—Perfect For Hobbies, Storage Or Projects**RV PARKING WITH HOOKUPS Adds Even More Convenience**All Structures Feature HAIL PROOF ROOFING For Long-Lasting Durability And Peace Of Mind**Step Onto The Charming Covered Front Porch and Take In The Beautiful Landscaping That Enhances The Home’s Curb Appeal**Inside You’ll Find A Move-In Ready Interior With Fresh Paint, Along With a Brand New 50 Gallon Water Heater**The Main Living Area Is Bright And Inviting Featuring Vaulted Ceilings that Create an Open Airy Feeling along with a Cozy Gas Fireplace Serving as The Perfect Focal Point**The Kitchen Features Granite Countertops, Ample Cabinet Space and a Functional Layout That Makes Cooking And Gathering Effortless**The Main Level Provides Comfortable Living With Generously Sized Bedrooms While The Finished Basement Expands Your Options Even Further**Downstairs You’ll Find a Spacious Great Room Perfect For a Media Area, Game Room Or Home Gym Along With Large Bedrooms and a 3/4 Bathroom—Ideal For Guests Or Additional Privacy**The Covered Back Patio Is Perfect For Enjoying Colorado**The Backyard Features Gorgeous Landscaping and Plenty Of Space To Garden, Play Or Unwind, a Storage Shed Adds Extra Convenience For Tools And Equipment**Location Is Key and This Home Offers Easy Access To C-470, Making Commuting A Breeze**Outdoor Enthusiasts Will Love Being Just Minutes From Chatfield State Park, Where You Can Enjoy Boating, Hiking and Countless Recreational Activities**Restaurants, Shopping and Everyday Conveniences Are All Close By**Buyer to Verify All Information
Property Details
Price:
$799,000
MLS #:
REC6334931
Status:
Active Under Contract
Beds:
5
Baths:
3
Type:
Single Family
Subtype:
Single Family Residence
Subdivision:
Fairview Heights
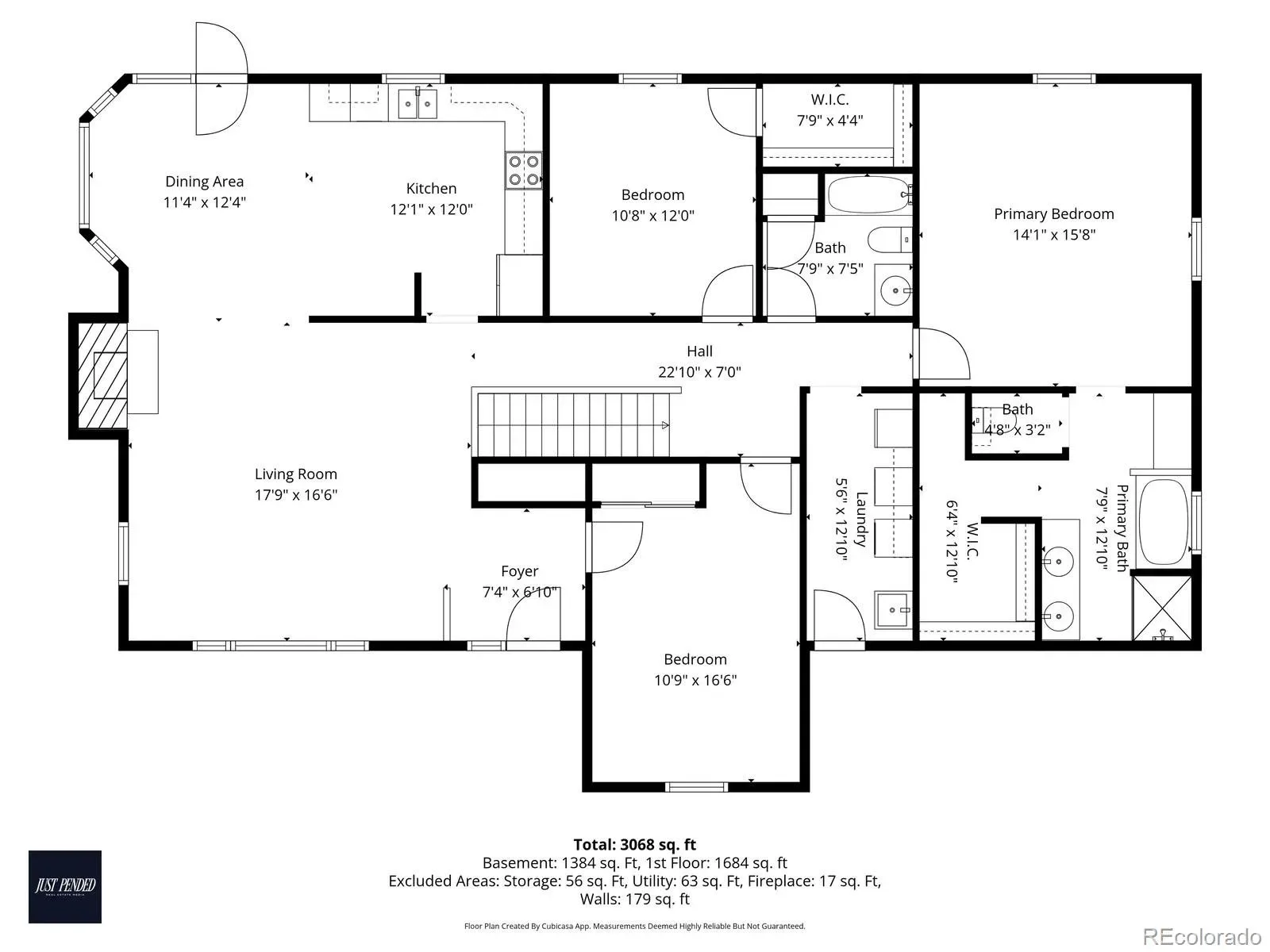
Finished Sq Ft:
1,716
Total Sq Ft:
3,417
Lot Size:
12,632 sqft / 0.29 acres (approx)
Year Built:
1997
Schools
School District:
Jefferson County R-1
Elementary School:
Coronado
Middle School:
Falcon Bluffs
High School:
Chatfield
Interior
Above Grade Finished Area
1716
Appliances
Dishwasher, Dryer, Gas Water Heater, Microwave, Oven, Range, Refrigerator, Washer
Bathrooms
2 Full Bathrooms, 1 Three Quarter Bathroom
Below Grade Unfinished Area
1701
Cooling
Central Air
Fireplaces Total
1
Flooring
Carpet, Tile
Heating
Forced Air, Natural Gas
Interior Features
Built-in Features, Entrance Foyer, Five Piece Bath, Granite Counters, High Ceilings, Open Floorplan, Pantry, Primary Suite, Vaulted Ceiling(s), Walk-In Closet(s)
Laundry Features
In Unit
Levels
One
Main Level Bathrooms
2
Main Level Bedrooms
3
Exterior
Attached Garage YN
1
Construction Materials
Brick, Frame
Exterior Features
Lighting
Fencing
Full
Garage Spaces
2
Lot Features
Landscaped, Level, Many Trees, Master Planned, Near Public Transit, Sprinklers In Front, Sprinklers In Rear
Parking Features
220 Volts, Circular Driveway, Concrete, Oversized
Parking Spots
5
Parking Total
5
Patio And Porch Features
Covered, Front Porch, Patio
Roof
Composition, Other
Security Features
Carbon Monoxide Detector(s), Smoke Detector(s)
Window Features
Skylight(s)
Financial
Tax Year
2025
Taxes
$5,473
Map
Contact Us
Mortgage Calculator
Property Summary
- Located in the Fairview Heights subdivision, 7947 S Dover Street Littleton CO is a Single Family for sale in Littleton, CO, 80128. It is listed for $799,000 and features 5 beds, 3 baths, and has approximately 1,716 square feet of living space, and was originally constructed in 1997. The current price per square foot is $466. The average price per square foot for Single Family listings in Littleton is $349. The average listing price for Single Family in Littleton is $1,056,979. To schedule a showing of MLS#rec6334931 at 7947 S Dover Street in Littleton, CO, contact your Smart Sale AI agent at 3039066915.
Similar Listings Nearby
Additional Details
MLS # : REC6334931
Listing Key : REC2052868534
Parcel Number : 080622
Zip Code : 80128
City : Littleton
State : CO
Building if Condo :
Street : 7947 S Dover Street
Address : 7947
Address Prefix :
Address Suffix : Street
Unit if Condo :
Latitude : 39.572609
Longitude : -105.094589
Property Type : singlefamily
Property Sub Type : Single Family Residence
Stories Total if Condo :
Lot Size : 12,632 sqft / 0.29 acres (approx)
Ownership : Individual
Zoning : R-1
Condition :
Renovation :
Pets Allowed :
Special Conditions : None
Possession : Close Plus 3 Days
Original Price : 799000
Close Price :
Close Date :
List Date : Mar 26, 2026
List Contract Date : 2026-03-26
Off Market Date : 2026-03-30
Purchase Contract Date : 2026-03-30
Days on Market : 24
Concessions Amount :
Concession Comment :

Copyright 2026. All rights reserved.
7947 S Dover Street
Littleton, CO




















































