6273 S Marshall Court Littleton CO 80123 MLS #REC2844708
This large home has the lowest Above Grade Price/SqFt in the whole neighborhood — and expansion space if you need it! Located in desirable Leawood, 6273 S Marshall Court is a perfect home in a lovely, quiet neighborhood! All the heavy lifting has been done for you with a four year-old roof & siding and a two year-old furnace, A/C and hot water heater! Also, notice the upgraded laminate plank flooring throughout the main level, upper level and stairs — no more ugly traffic patterns in your carpet! The house has a good-sized kitchen with built-in storage and eat-in space. There is entertaining space throughout the whole main level as well as outside in the large backyard. Additionally, there are parks (one right behind the house!) schools, restaurants and shopping nearby for your convenience. Lots of space to make this house your own – Come see it today! Additional information and collateral can be found at: https://www.v6d.com/lmr
Property Details
Price:
$680,000
MLS #:
REC2844708
Status:
Active
Beds:
4
Baths:
3
Type:
Single Family
Subtype:
Single Family Residence
Subdivision:
Leawood
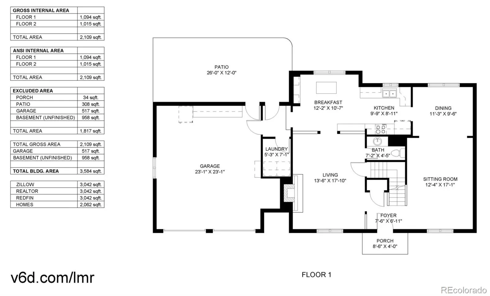
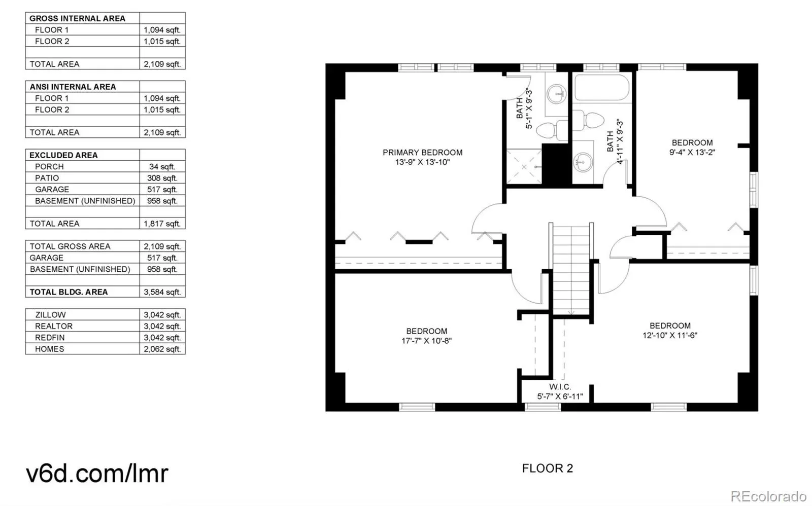
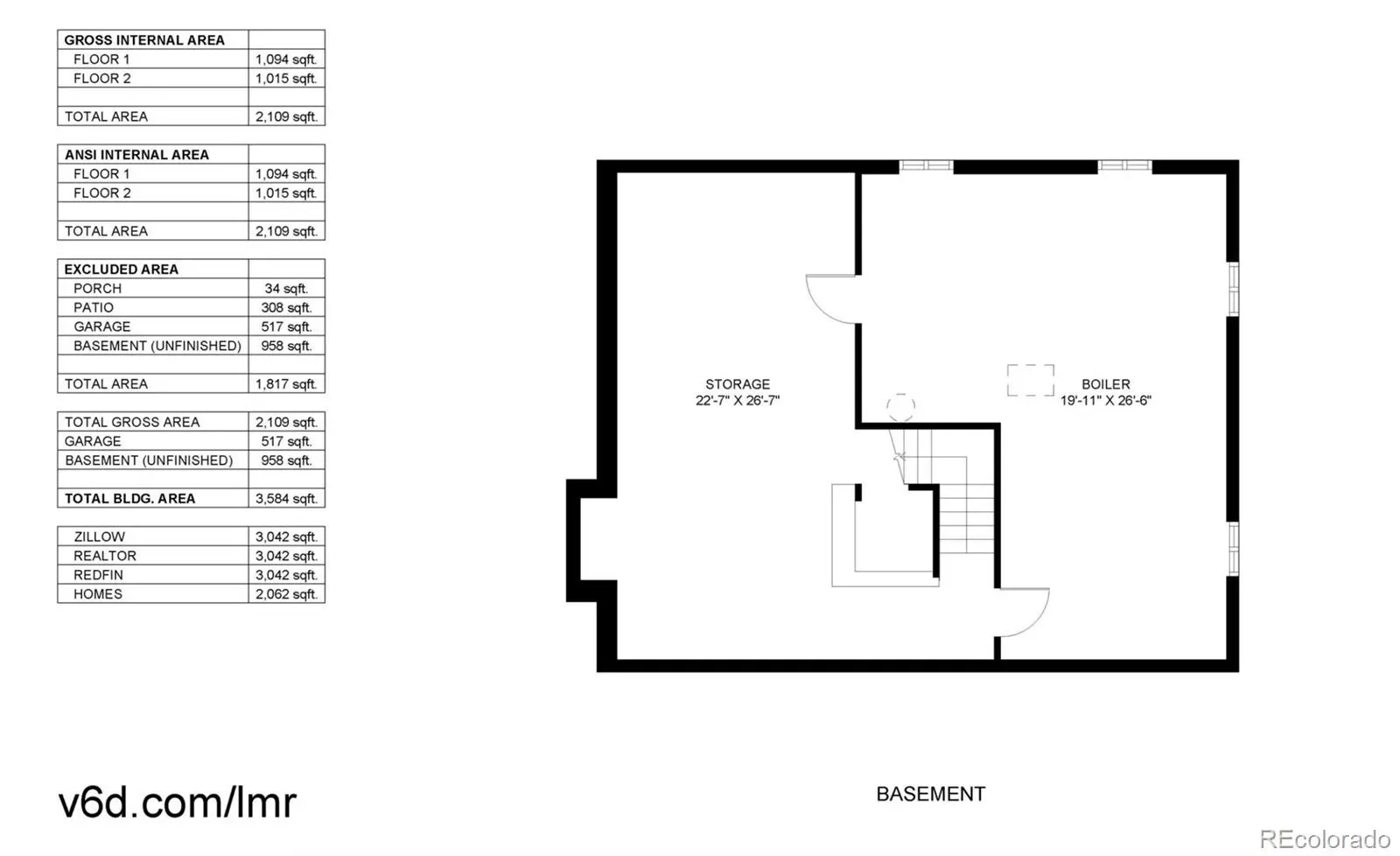
Finished Sq Ft:
3,042
Total Sq Ft:
3,042
Lot Size:
13,286 sqft / 0.31 acres (approx)
Year Built:
1972
Schools
School District:
Jefferson County R-1
Elementary School:
Leawood
Middle School:
Ken Caryl
High School:
Columbine
Interior
Above Grade Finished Area
2062
Appliances
Dishwasher, Disposal, Dryer, Gas Water Heater, Microwave, Range, Refrigerator, Washer
Bathrooms
1 Full Bathroom, 1 Three Quarter Bathroom, 1 Half Bathroom
Below Grade Unfinished Area
980
Cooling
Central Air
Fireplaces Total
1
Flooring
Laminate
Heating
Forced Air
Interior Features
Breakfast Bar, Built-in Features, Ceiling Fan(s), Eat-in Kitchen, Entrance Foyer, Primary Suite, Smoke Free
Levels
Two
Main Level Bathrooms
1
Exterior
Architectural Style
Traditional
Attached Garage YN
1
Construction Materials
Brick, Frame
Direction Faces
East
Exterior Features
Private Yard, Rain Gutters
Fencing
Full
Garage Spaces
2
Lot Features
Landscaped, Level, Many Trees
Parking Features
Concrete
Parking Spots
2
Parking Total
2
Patio And Porch Features
Patio
Roof
Shingle
Security Features
Carbon Monoxide Detector(s), Smoke Detector(s), Video Doorbell
Window Features
Double Pane Windows
Financial
Tax Year
2024
Taxes
$4,565
Map
Contact Us
Mortgage Calculator
Property Summary
- Located in the Leawood subdivision, 6273 S Marshall Court Littleton CO is a Single Family for sale in Littleton, CO, 80123. It is listed for $680,000 and features 4 beds, 3 baths, and has approximately 3,042 square feet of living space, and was originally constructed in 1972. The current price per square foot is $224. The average price per square foot for Single Family listings in Littleton is $315. The average listing price for Single Family in Littleton is $1,030,146. To schedule a showing of MLS#rec2844708 at 6273 S Marshall Court in Littleton, CO, contact your Smart Sale AI agent at 3039066915.
Similar Listings Nearby
Additional Details
MLS ID : REC2844708
Listing Key : REC2052048282
Parcel Number : 098113
Zip Code : 80123
City : Littleton
State : CO
Building if Condo :
Full Street: 6273 S Marshall Court
Address : 6273
Address Prefix :
Address Suffix : Court
Street : Marshall
Street Prefix : S
Street Suffix :
Unit if Condo :
Latitude : 39.603203
Longitude : -105.070213
Property Type : singlefamily
Property Sub Type : Single Family Residence
Stories Total if Condo :
Lot Size : 13,286 sqft / 0.31 acres (approx)
Ownership : Individual
Zoning : R-1A
Condition :
Renovation :
Pets Allowed :
Special Conditions : None
Possession : Close Plus 30 to 60 Days
Original Price : 710000
Close Price :
Close Date :
List Date : Feb 27, 2026
List Contract Date : 2026-02-27
Off Market Date :
Purchase Contract Date :
Days on Market : 89
Concessions Amount :
Concession Comment :
Renovation :
Company : RE/MAX Alliance

Copyright 2026. All rights reserved.
6273 S Marshall Court
Littleton, CO






























