10268 Hexton Court Lone Tree CO 80124 MLS #REC4095397
Carriage Club in Lone Tree | Walk to Bluffs Regional Park | New Roof & Exterior Paint (2024) | New Windows (2025) | Finished Basement Wet Bar | Covered Backyard Oasis
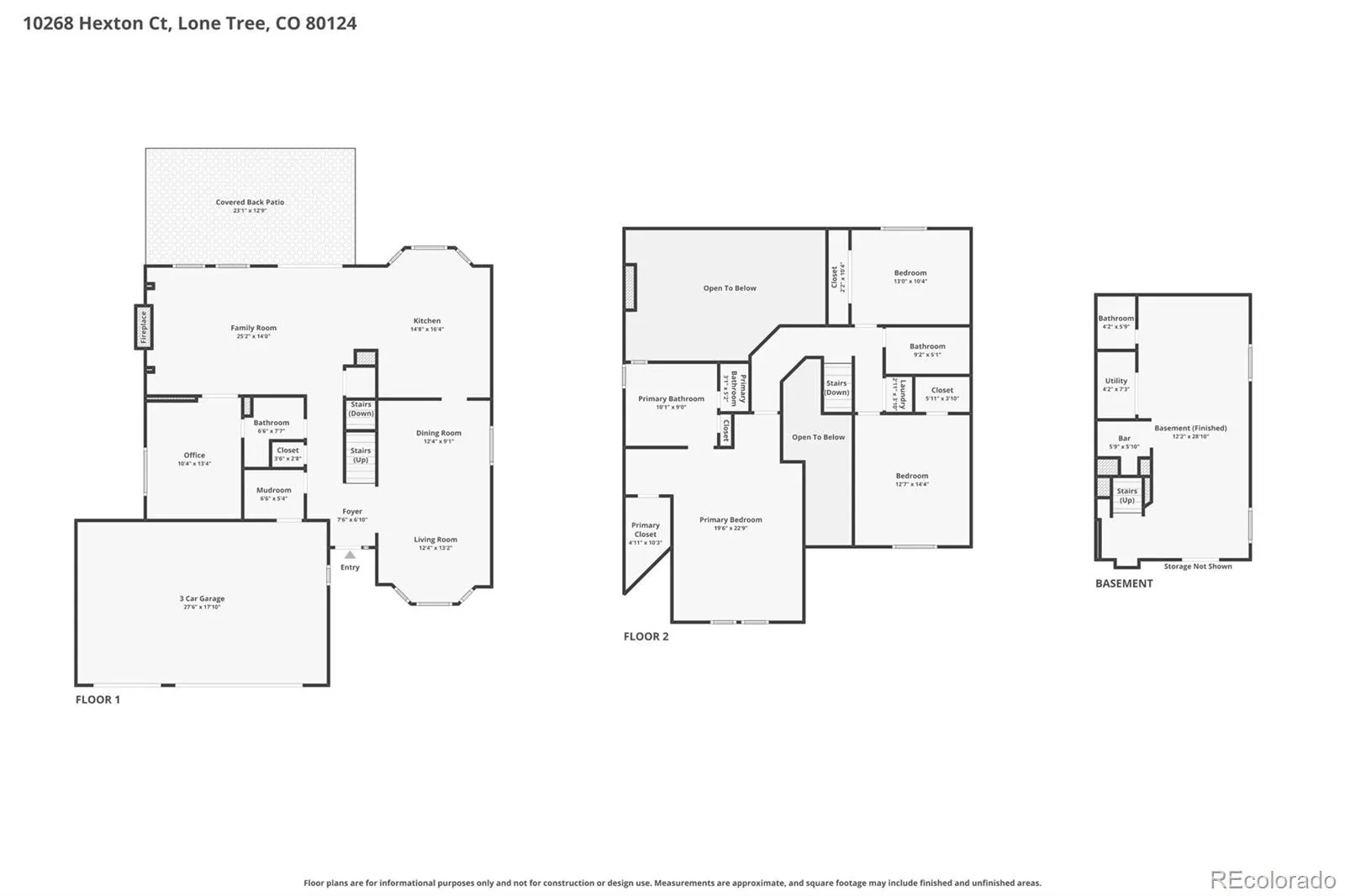
Located in the coveted Carriage Club neighborhood of Lone Tree, this 4-bedroom, 4-bath home offers a quieter, more secluded setting on the south side of Lincoln Ave — an area known for its premium location and easy access to trails and open space. Enjoy walking access to Bluffs Regional Park and scenic paths with sweeping mountain views, while still being minutes from everyday conveniences.
The home features a spacious and functional layout with multiple living areas and a finished basement designed for entertaining, complete with an exceptionally finished wet bar — perfect for hosting gatherings, game nights, or movie evenings. Upstairs bedrooms provide comfortable separation, while the overall floor plan works well for both everyday living and entertaining. The main level features hardwood floors throughout, while the primary and upstairs guest bathrooms include heated tile floors for added comfort. Major recent upgrades include fresh new exterior paint and roof in 2024, and new windows in 2025, providing peace of mind and improved efficiency.
Step outside to a true backyard retreat with a large covered patio featuring a structurally attached cover, ceiling lights, and a remote-controlled ceiling fan. The expansive concrete patio creates an ideal space for outdoor dining, relaxing, and enjoying Colorado evenings. The yard also includes a sprinkler system with rain sensor for easy maintenance.
Ideally located just minutes from Park Meadows shopping, dining, and entertainment, with convenient access to I-25, C-470, and the Denver Tech Center. Residents also enjoy proximity to Douglas County schools and nearby Lone Tree Golf Club, offering golf, dining, and scenic views overlooking the DTC skyline.
Located in the coveted Carriage Club neighborhood of Lone Tree, this 4-bedroom, 4-bath home offers a quieter, more secluded setting on the south side of Lincoln Ave — an area known for its premium location and easy access to trails and open space. Enjoy walking access to Bluffs Regional Park and scenic paths with sweeping mountain views, while still being minutes from everyday conveniences.
The home features a spacious and functional layout with multiple living areas and a finished basement designed for entertaining, complete with an exceptionally finished wet bar — perfect for hosting gatherings, game nights, or movie evenings. Upstairs bedrooms provide comfortable separation, while the overall floor plan works well for both everyday living and entertaining. The main level features hardwood floors throughout, while the primary and upstairs guest bathrooms include heated tile floors for added comfort. Major recent upgrades include fresh new exterior paint and roof in 2024, and new windows in 2025, providing peace of mind and improved efficiency.
Step outside to a true backyard retreat with a large covered patio featuring a structurally attached cover, ceiling lights, and a remote-controlled ceiling fan. The expansive concrete patio creates an ideal space for outdoor dining, relaxing, and enjoying Colorado evenings. The yard also includes a sprinkler system with rain sensor for easy maintenance.
Ideally located just minutes from Park Meadows shopping, dining, and entertainment, with convenient access to I-25, C-470, and the Denver Tech Center. Residents also enjoy proximity to Douglas County schools and nearby Lone Tree Golf Club, offering golf, dining, and scenic views overlooking the DTC skyline.
Property Details
Price:
$840,000
MLS #:
REC4095397
Status:
Active Under Contract
Beds:
3
Baths:
4
Type:
Single Family
Subtype:
Single Family Residence
Subdivision:
Carriage Club
Finished Sq Ft:
2,863
Total Sq Ft:
2,894
Lot Size:
6,534 sqft / 0.15 acres (approx)
Year Built:
1999
Schools
School District:
Douglas RE-1
Elementary School:
Acres Green
Middle School:
Cresthill
High School:
Highlands Ranch
Interior
Above Grade Finished Area
2284
Appliances
Dishwasher, Disposal, Microwave, Oven, Range, Refrigerator
Bathrooms
2 Full Bathrooms, 1 Three Quarter Bathroom, 1 Half Bathroom
Below Grade Finished Area
579
Below Grade Unfinished Area
31
Cooling
Central Air
Fireplaces Total
1
Flooring
Carpet, Tile, Wood
Heating
Forced Air
Interior Features
Built-in Features, Ceiling Fan(s), Eat-in Kitchen, Entrance Foyer, Five Piece Bath, Kitchen Island, Vaulted Ceiling(s), Wet Bar
Levels
Two
Main Level Bathrooms
1
Exterior
Architectural Style
Traditional
Association Amenities
Park, Playground, Trail(s)
Attached Garage YN
1
Construction Materials
Frame
Exterior Features
Private Yard
Fencing
Full
Garage Spaces
3
Lot Features
Landscaped, Sprinklers In Front, Sprinklers In Rear
Parking Spots
3
Parking Total
3
Patio And Porch Features
Covered, Patio
Roof
Composition
Window Features
Double Pane Windows, Egress Windows, Window Coverings
Financial
HOA Fee
$54
HOA Fee Frequency
Monthly
HOA Includes
Maintenance Grounds, Recycling, Trash
HOA Name
Westwind Management
HOA Phone
303-369-1800
Tax Year
2025
Taxes
$4,487
Map
Contact Us
Mortgage Calculator
Property Summary
- Located in the Carriage Club subdivision, 10268 Hexton Court Lone Tree CO is a Single Family for sale in Lone Tree, CO, 80124. It is listed for $840,000 and features 3 beds, 4 baths, and has approximately 2,863 square feet of living space, and was originally constructed in 1999. The current price per square foot is $293. The average price per square foot for Single Family listings in Lone Tree is $308. The average listing price for Single Family in Lone Tree is $1,253,742. To schedule a showing of MLS#rec4095397 at 10268 Hexton Court in Lone Tree, CO, contact your Smart Sale AI agent at 3039066915.
Similar Listings Nearby
Additional Details
MLS # : REC4095397
Listing Key : REC2053217270
Parcel Number : R0400401
Zip Code : 80124
City : Lone Tree
State : CO
Building if Condo :
Street : 10268 Hexton Court
Address : 10268
Address Prefix :
Address Suffix : Court
Unit if Condo :
Latitude : 39.530548
Longitude : -104.901695
Property Type : singlefamily
Property Sub Type : Single Family Residence
Stories Total if Condo :
Lot Size : 6,534 sqft / 0.15 acres (approx)
Ownership : Individual
Zoning :
Condition :
Renovation :
Pets Allowed :
Special Conditions : None
Possession : Closing/DOD
Original Price : 840000
Close Price :
Close Date :
List Date : Apr 10, 2026
List Contract Date : 2026-04-10
Off Market Date : 2026-04-12
Purchase Contract Date : 2026-04-12
Days on Market : 11
Concessions Amount :
Concession Comment :

Copyright 2026. All rights reserved.
10268 Hexton Court
Lone Tree, CO




















































