12788 Sheramdi Street Longmont CO 80503 MLS #RECIR1052061
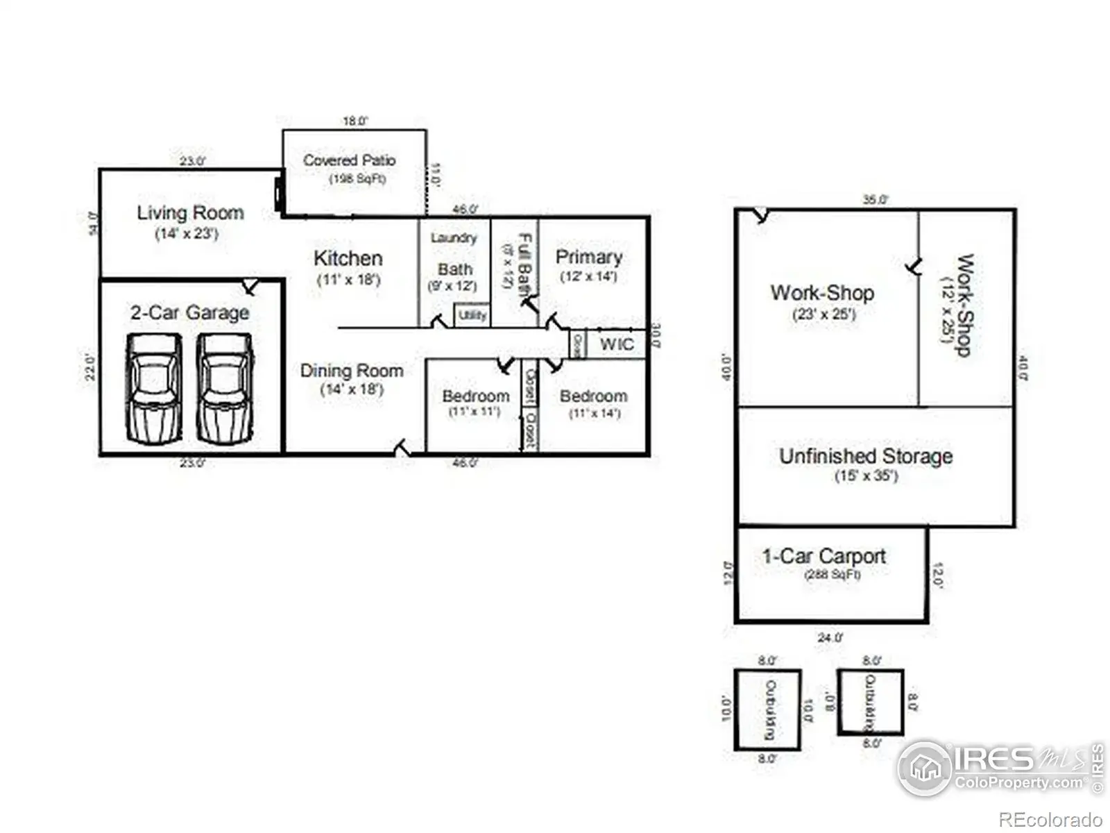
Gorgeous ranch home on almost an acre of land, plus a 1400 sf workshop for all your hobbies. This quiet, North Longmont neighborhood has no HOA, no Metro District and low monthly utilities. Enjoy the tranquility of country living while still just minutes to shops, restaurants, and everyday conveniences.The renovated, spacious kitchen is the heart of the home-beautifully designed with ample soft-close cabinetry and quartz counter tops, ideal for everyday living and entertaining. Gleaming hardwood floors and custom-milled baseboards throughout highlight the home’s quality construction. In the winter, cozy up in the large living room with a wood burning fireplace and in the summer enjoy your backyard paradise. In addition to the covered patio, mature trees and expansive yard, you’ll find two large shops, two storage sheds, and a carport sized for an RV. The workshop is complete with heating and cooling allowing you to utilize it all year round.With its Rural Residential zoning, the property provides flexibility for a variety of uses while still being just minutes from Longmont’s vibrant downtown, schools, and conveniences. Don’t miss the opportunity to enjoy a lifestyle that’s more open, spacious, and connected to Colorado living.
Property Details
Price:
$820,000
MLS #:
RECIR1052061
Status:
Active Under Contract
Beds:
3
Baths:
2
Type:
Single Family
Subtype:
Single Family Residence
Subdivision:
Anhawa Manor 3
Finished Sq Ft:
1,702
Total Sq Ft:
1,702
Lot Size:
36,253 sqft / 0.83 acres (approx)
Year Built:
1973
Schools
School District:
St. Vrain Valley RE-1J
Elementary School:
Hygiene
Middle School:
Westview
High School:
Longmont
Interior
Above Grade Finished Area
1702
Appliances
Dishwasher, Dryer, Microwave, Oven, Refrigerator, Washer
Bathrooms
1 Full Bathroom, 1 Three Quarter Bathroom
Cooling
Central Air
Flooring
Wood
Heating
Forced Air
Interior Features
Open Floorplan, Pantry
Levels
One
Main Level Bathrooms
2
Main Level Bedrooms
3
Exterior
Attached Garage YN
1
Construction Materials
Brick
Garage Spaces
6
Lot Features
Level, Open Space, Sprinklers In Front
Parking Features
RV Access/Parking
Parking Spots
6
Parking Total
6
Patio And Porch Features
Patio
Roof
Composition
Security Features
Smoke Detector(s)
Window Features
Window Coverings
Financial
Tax Year
2025
Taxes
$4,851
Map
Contact Us
Mortgage Calculator
Property Summary
- Located in the Anhawa Manor 3 subdivision, 12788 Sheramdi Street Longmont CO is a Single Family for sale in Longmont, CO, 80503. It is listed for $820,000 and features 3 beds, 2 baths, and has approximately 1,702 square feet of living space, and was originally constructed in 1973. The current price per square foot is $482. The average price per square foot for Single Family listings in Longmont is $389. The average listing price for Single Family in Longmont is $1,172,888. To schedule a showing of MLS#recir1052061 at 12788 Sheramdi Street in Longmont, CO, contact your Smart Sale AI agent at 3039066915.
Similar Listings Nearby
Additional Details
MLS # : RECIR1052061
Listing Key : REC2052165553
Parcel Number : R0052715
Zip Code : 80503
City : Longmont
State : CO
Building if Condo :
Street : 12788 Sheramdi Street
Address : 12788
Address Prefix :
Address Suffix : Street
Unit if Condo :
Latitude : 40.206757
Longitude : -105.136284
Property Type : singlefamily
Property Sub Type : Single Family Residence
Stories Total if Condo :
Lot Size : 36,253 sqft / 0.83 acres (approx)
Ownership : Individual
Zoning : RR
Condition :
Renovation :
Pets Allowed :
Special Conditions :
Possession : Closing/DOD
Original Price : 820000
Close Price :
Close Date :
List Date : Feb 20, 2026
List Contract Date : 2026-02-20
Off Market Date : 2026-04-01
Purchase Contract Date : 2026-04-01
Days on Market : 57
Concessions Amount :
Concession Comment :

Copyright 2026. All rights reserved.
12788 Sheramdi Street
Longmont, CO

















































