10812 Ingalls Circle Westminster CO 80020 MLS #REC2592060
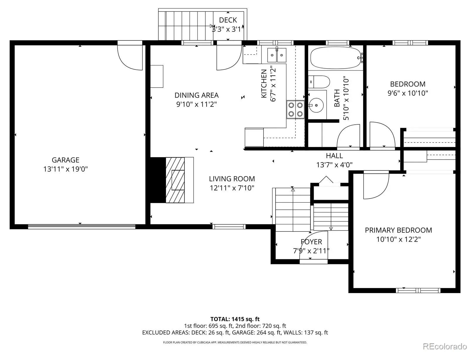
Welcome to 10812 Ingalls Cir in the desirable Sheridan Green subdivision of Westminster, CO. This 4-bedroom home with an additional office/den and 1.5 bathrooms offers slightly over 1,600 square feet of living space and incredible potential for the right buyer. The bi-level layout provides a functional and flexible floor plan to fit a variety of needs. As you enter the home, head upstairs to the inviting living room featuring a cozy fireplace, perfect for chilly Colorado evenings, and a large window that fills the space with natural light. The dining room flows seamlessly from the living area and connects to the vintage kitchen, ready for your personal touch. The upper level also includes a full bathroom conveniently located near the primary bedroom and a secondary bedroom. Downstairs, you’ll find a second living area along with two additional bedrooms, a half bathroom, and a versatile bonus room ideal for a home office, den, game room, or small workout space. The laundry room is also located on the lower level for added convenience. Situated on a large corner lot, the property features mature trees, a storage shed, and endless possibilities to create your dream outdoor space. Located within walking distance to the local elementary school and just minutes from Westminster City Park, the recreation center, shopping, dining, and more, this home offers both location and opportunity. With a furnace that is only 2 years old and plenty of room to build equity, this property is perfect as an investment, rental, or a future dream home with a little TLC. Home is being sold as is.
Property Details
Price:
$439,900
MLS #:
REC2592060
Status:
Active
Beds:
4
Baths:
2
Type:
Single Family
Subtype:
Single Family Residence
Subdivision:
Sheridan Green
Finished Sq Ft:
1,601
Total Sq Ft:
1,601
Lot Size:
8,538 sqft / 0.20 acres (approx)
Year Built:
1977
Schools
School District:
Jefferson County R-1
Elementary School:
Ryan
Middle School:
Mandalay
High School:
Standley Lake
Interior
Above Grade Finished Area
1601
Appliances
Dishwasher, Oven
Bathrooms
1 Full Bathroom, 1 Half Bathroom
Cooling
None
Fireplaces Total
1
Flooring
Carpet, Laminate, Tile
Heating
Forced Air
Levels
Bi-Level
Exterior
Architectural Style
Traditional
Attached Garage YN
1
Construction Materials
Frame, Wood Siding
Garage Spaces
2
Lot Features
Corner Lot
Parking Spots
2
Parking Total
2
Patio And Porch Features
Deck
Roof
Composition
Financial
Tax Year
2024
Taxes
$2,134
Map
Contact Us
Mortgage Calculator
Property Summary
- Located in the Sheridan Green subdivision, 10812 Ingalls Circle Westminster CO is a Single Family for sale in Westminster, CO, 80020. It is listed for $439,900 and features 4 beds, 2 baths, and has approximately 1,601 square feet of living space, and was originally constructed in 1977. The current price per square foot is $275. The average price per square foot for Single Family listings in Westminster is $314. The average listing price for Single Family in Westminster is $740,510. To schedule a showing of MLS#rec2592060 at 10812 Ingalls Circle in Westminster, CO, contact your Smart Sale AI agent at 3039066915.
Similar Listings Nearby
Additional Details
MLS # : REC2592060
Listing Key : REC2052879756
Parcel Number : 129945
Zip Code : 80020
City : Westminster
State : CO
Building if Condo :
Street : 10812 Ingalls Circle
Address : 10812
Address Prefix :
Address Suffix : Circle
Unit if Condo :
Latitude : 39.894455
Longitude : -105.065765
Property Type : singlefamily
Property Sub Type : Single Family Residence
Stories Total if Condo :
Lot Size : 8,538 sqft / 0.20 acres (approx)
Ownership : Individual
Zoning :
Condition : Fixer
Renovation :
Pets Allowed :
Special Conditions : None
Possession : Close Plus 5 to 30 Days,Closing/DOD,Negotiable
Original Price : 439900
Close Price :
Close Date :
List Date : Mar 25, 2026
List Contract Date : 2026-03-25
Off Market Date :
Purchase Contract Date :
Days on Market : 23
Concessions Amount :
Concession Comment :

Copyright 2026. All rights reserved.
10812 Ingalls Circle
Westminster, CO













