11590 W 39th Place Wheat Ridge CO 80033 MLS #RECIR1053971
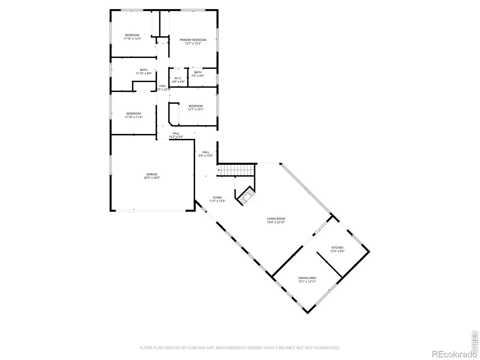
Welcome to this newly updated ranch in a quiet Applewood neighborhood. NO HOA – freedom! New kitchen cabinets. New Floors in kitchen and dining room. New Interior and Exterior Paint. Sellers are offering a credit so you can choose your own appliances with acceptable offer. You are a short distance away from the Wheat Ridge Greenbelt featuring West Lake, Bass Lake, Tabor Lake, Prospect Lake and Prospect Park. MILES and MILES of trails await you! Quiet Cul-de-Sac location! Inside, you’re greeted by a large, light-filled living room and a new kitchen featuring new countertops, cabinets, backsplash and durable luxury vinyl plank flooring. The space is both practical and inviting, making it great for everyday living as well as entertaining. The main-floor primary suite offers the ease of single-level living along with a newly renovated bathroom finished with clean, modern touches. The second bathroom on the main level has also been redone with a spacious shower waiting for you. Out back, the large, fully fenced yard provides plenty of space to enjoy the outdoors, whether that means hosting summer barbecues, gardening, letting pets run, or simply relaxing in your own private space. Store your toys and yard gear in the convenient shed. The 2-car garage offers room for vehicles plus extra storage for tools, outdoor gear, or seasonal items. With a sought-after neighborhood, recent updates, a comfortable layout, and a spacious yard, this home is move-in ready and full of potential. This home is wheelchair accessible. All of this in a convenient location close to parks, shopping, dining, and with easy access to both downtown Denver and the mountains. Come see the opportunity that 11590 W 39th Place has to offer!
Property Details
Price:
$725,000
MLS #:
RECIR1053971
Status:
Active Under Contract
Beds:
5
Baths:
3
Type:
Single Family
Subtype:
Single Family Residence
Subdivision:
Appleview
Finished Sq Ft:
2,695
Total Sq Ft:
2,695
Lot Size:
8,276 sqft / 0.19 acres (approx)
Year Built:
1964
Schools
School District:
Jefferson County R-1
Elementary School:
Prospect Valley
Middle School:
Everitt
High School:
Wheat Ridge
Interior
Above Grade Finished Area
1854
Appliances
Disposal
Bathrooms
3 Three Quarter Bathrooms
Below Grade Finished Area
841
Cooling
Air Conditioning-Room, Ceiling Fan(s)
Heating
Baseboard
Interior Features
Eat-in Kitchen, Open Floorplan, Vaulted Ceiling(s), Walk-In Closet(s)
Levels
One
Main Level Bathrooms
2
Main Level Bedrooms
4
Exterior
Accessibility Features
Accessible Approach with Ramp
Architectural Style
Contemporary
Attached Garage YN
1
Construction Materials
Brick, Stone, Frame
Direction Faces
East
Fencing
Fenced
Garage Spaces
2
Lot Features
Cul-De-Sac, Rolling Slope, Sprinklers In Front
Parking Spots
2
Parking Total
2
Patio And Porch Features
Patio
Roof
Composition
Security Features
Smoke Detector(s)
Financial
Tax Year
2024
Taxes
$3,854
Map
Contact Us
Mortgage Calculator
Property Summary
- Located in the Appleview subdivision, 11590 W 39th Place Wheat Ridge CO is a Single Family for sale in Wheat Ridge, CO, 80033. It is listed for $725,000 and features 5 beds, 3 baths, and has approximately 2,695 square feet of living space, and was originally constructed in 1964. The current price per square foot is $269. The average price per square foot for Single Family listings in Wheat Ridge is $429. The average listing price for Single Family in Wheat Ridge is $881,186. To schedule a showing of MLS#recir1053971 at 11590 W 39th Place in Wheat Ridge, CO, contact your Smart Sale AI agent at 3039066915.
Similar Listings Nearby
Additional Details
MLS # : RECIR1053971
Listing Key : REC2052711605
Parcel Number : 048694
Zip Code : 80033
City : Wheat Ridge
State : CO
Building if Condo :
Street : 11590 W 39th Place
Address : 11590
Address Prefix :
Address Suffix : Place
Unit if Condo :
Latitude : 39.771427
Longitude : -105.128357
Property Type : singlefamily
Property Sub Type : Single Family Residence
Stories Total if Condo :
Lot Size : 8,276 sqft / 0.19 acres (approx)
Ownership : Individual
Zoning : RES
Condition :
Renovation :
Pets Allowed :
Special Conditions :
Possession : Closing/DOD
Original Price : 725000
Close Price :
Close Date :
List Date : Mar 16, 2026
List Contract Date : 2026-03-16
Off Market Date : 2026-03-21
Purchase Contract Date : 2026-03-21
Days on Market : 34
Concessions Amount :
Concession Comment :

Copyright 2026. All rights reserved.
11590 W 39th Place
Wheat Ridge, CO







































