6505 W 34th Avenue Wheat Ridge CO 80033 MLS #REC6515610
Outstanding value in Wheat Ridge for location, size, and setting! Ideally situated on a corner lot in a quiet cul-de-sac, this home offers privacy, outdoor space, and excellent potential. While the home remains largely in its original condition, it has been refreshed with new interior paint, new carpet, all appliances and updated mechanical systems, providing a solid foundation for future personalization.
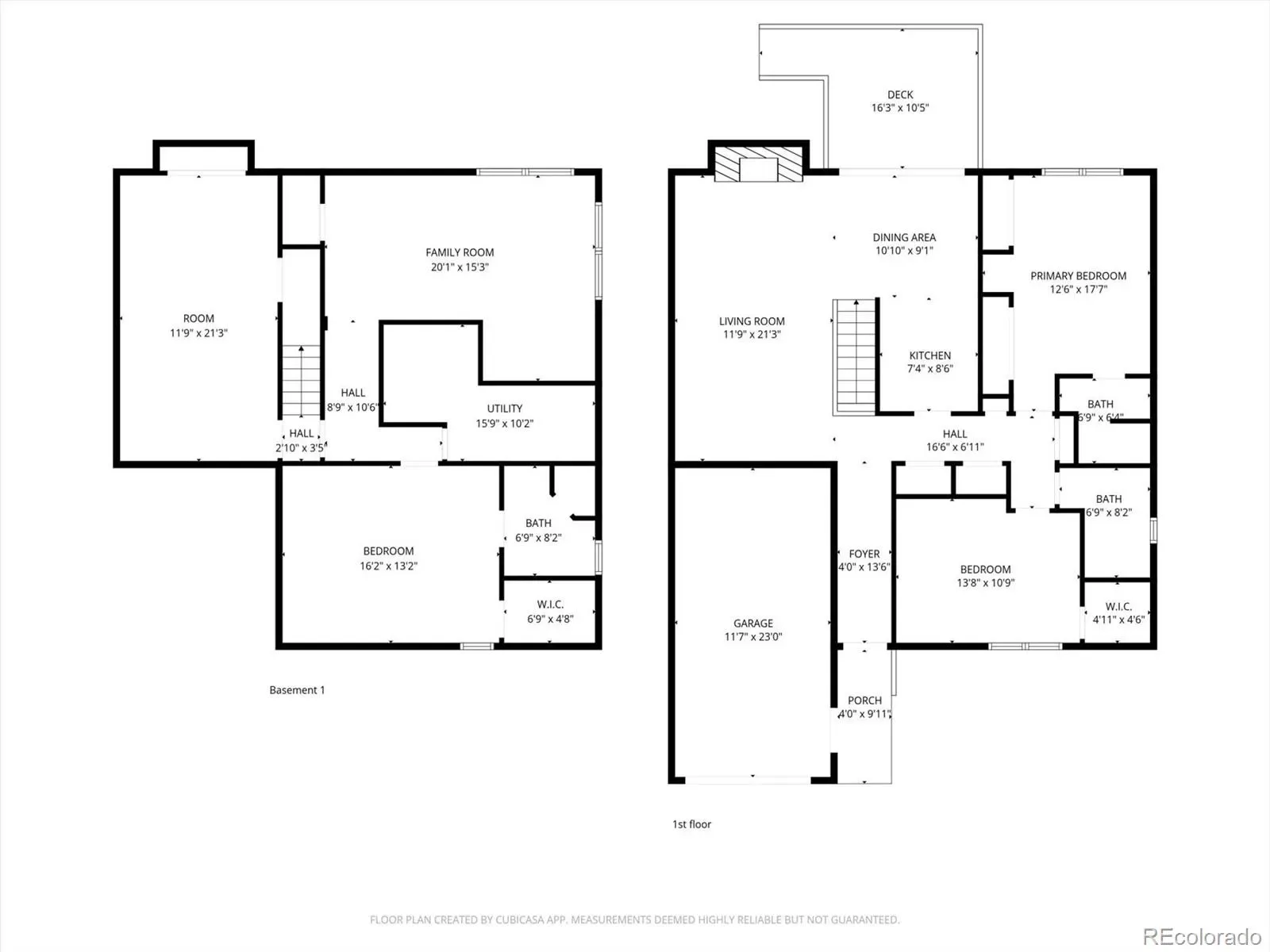
The bright and functional floor plan supports easy day-to-day living and entertaining. The main living areas connect comfortably to the private fenced yard and deck with sunny exposure, creating great indoor-outdoor flow. There is a spacious attached one car garage with side access door.
The home includes three bathrooms and multiple flexible living spaces as well as a cozy fireplace. The basement features an egress window, allowing for additional usable living space, guest accommodations, hobbies, or a home office.
Located within a well-managed HOA community, the association provides excellent value by covering roof, insurance, landscaping, trash, water, and exterior maintenance, making ownership simple and low-maintenance. The HOA is solid, stable, and very reasonably priced for the services provided.
Enjoy a highly desirable location with easy walkability to Wheat Ridge parks, restaurants, entertainment, and neighborhood amenities, along with convenient access to nearby trails and green spaces.
This property presents a rare opportunity to own a well-located home with great bones, outdoor space, and room to make it your own.
The bright and functional floor plan supports easy day-to-day living and entertaining. The main living areas connect comfortably to the private fenced yard and deck with sunny exposure, creating great indoor-outdoor flow. There is a spacious attached one car garage with side access door.
The home includes three bathrooms and multiple flexible living spaces as well as a cozy fireplace. The basement features an egress window, allowing for additional usable living space, guest accommodations, hobbies, or a home office.
Located within a well-managed HOA community, the association provides excellent value by covering roof, insurance, landscaping, trash, water, and exterior maintenance, making ownership simple and low-maintenance. The HOA is solid, stable, and very reasonably priced for the services provided.
Enjoy a highly desirable location with easy walkability to Wheat Ridge parks, restaurants, entertainment, and neighborhood amenities, along with convenient access to nearby trails and green spaces.
This property presents a rare opportunity to own a well-located home with great bones, outdoor space, and room to make it your own.
Property Details
Price:
$514,900
MLS #:
REC6515610
Status:
Active
Beds:
3
Baths:
3
Type:
Single Family
Subtype:
Single Family Residence
Subdivision:
Marshall Park Villas
Finished Sq Ft:
2,325
Total Sq Ft:
2,440
Lot Size:
1,372 sqft / 0.03 acres (approx)
Year Built:
1973
Schools
School District:
Jefferson County R-1
Elementary School:
Stevens
Middle School:
Everitt
High School:
Wheat Ridge
Interior
Above Grade Finished Area
1220
Appliances
Dishwasher, Disposal, Dryer, Microwave, Oven, Range, Refrigerator, Washer
Bathrooms
1 Full Bathroom, 2 Three Quarter Bathrooms
Below Grade Finished Area
1105
Below Grade Unfinished Area
115
Cooling
Central Air
Fireplaces Total
1
Flooring
Carpet, Linoleum, Tile, Wood
Heating
Forced Air
Interior Features
Breakfast Bar, Ceiling Fan(s), Laminate Counters, No Stairs, Pantry, Primary Suite, Smoke Free, Walk-In Closet(s)
Laundry Features
In Unit
Levels
One
Main Level Bathrooms
2
Main Level Bedrooms
2
Exterior
Architectural Style
Traditional
Attached Garage YN
1
Common Walls
End Unit
Construction Materials
Brick, Frame, Wood Siding
Direction Faces
South
Exterior Features
Private Yard, Rain Gutters
Fencing
Full
Garage Spaces
1
Lot Features
Corner Lot, Cul-De-Sac, Landscaped, Level, Many Trees, Master Planned, Near Public Transit, Sprinklers In Front, Sprinklers In Rear
Parking Features
Concrete, Exterior Access Door
Parking Spots
1
Parking Total
1
Patio And Porch Features
Deck, Front Porch, Patio
Roof
Composition
Security Features
Carbon Monoxide Detector(s), Smoke Detector(s)
Window Features
Double Pane Windows, Skylight(s), Window Coverings, Window Treatments
Financial
HOA Fee
$430
HOA Fee Frequency
Monthly
HOA Includes
Insurance, Maintenance Grounds, Maintenance Structure, Sewer, Snow Removal, Trash, Water
HOA Name
Realty One Inc
HOA Phone
303-500-9297
Tax Year
2024
Taxes
$1,697
Map
Contact Us
Mortgage Calculator
Property Summary
- Located in the Marshall Park Villas subdivision, 6505 W 34th Avenue Wheat Ridge CO is a Single Family for sale in Wheat Ridge, CO, 80033. It is listed for $514,900 and features 3 beds, 3 baths, and has approximately 2,325 square feet of living space, and was originally constructed in 1973. The current price per square foot is $221. The average price per square foot for Single Family listings in Wheat Ridge is $433. The average listing price for Single Family in Wheat Ridge is $876,488. To schedule a showing of MLS#rec6515610 at 6505 W 34th Avenue in Wheat Ridge, CO, contact your Smart Sale AI agent at 3039066915.
Similar Listings Nearby
Additional Details
MLS # : REC6515610
Listing Key : REC2052106832
Parcel Number : 101441
Zip Code : 80033
City : Wheat Ridge
State : CO
Building if Condo :
Street : 6505 W 34th Avenue
Address : 6505
Address Prefix :
Address Suffix : Avenue
Unit if Condo :
Latitude : 39.765247
Longitude : -105.067802
Property Type : singlefamily
Property Sub Type : Single Family Residence
Stories Total if Condo :
Lot Size : 1,372 sqft / 0.03 acres (approx)
Ownership : Estate
Zoning : RES
Condition : Updated/Remodeled
Renovation :
Pets Allowed :
Special Conditions : None
Possession : Closing/DOD
Original Price : 529900
Close Price :
Close Date :
List Date : Mar 9, 2026
List Contract Date : 2026-03-09
Off Market Date :
Purchase Contract Date :
Days on Market : 43
Concessions Amount :
Concession Comment :

Copyright 2026. All rights reserved.
6505 W 34th Avenue
Wheat Ridge, CO






























