6868 Vivian Street Arvada CO 80004 MLS #REC7186609
Tucked at the end of a quiet cul-de-sac on an oversized 0.30-acre lot in Northwest Arvada, this recently remodeled multi-level home is the complete package — Move in ready interior, a park-like backyard built for entertaining, fully owned solar panels, and a location that puts trails, top-rated schools, Olde Town Arvada, and easy mountain access all within minutes.
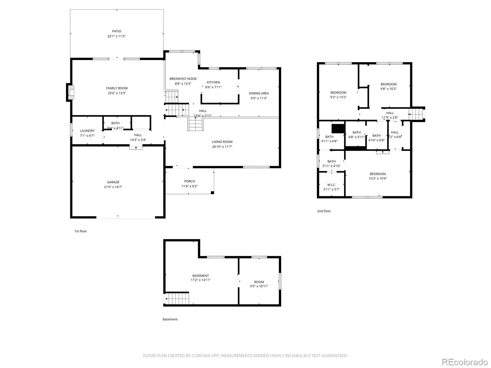
Inside, the kitchen impresses with granite countertops, stainless steel appliances, and gleaming floors that carry through the main level. The open layout flows from the dining area and eat-in kitchen space into a spacious family room with a gas fireplace. The Great Room features custom wood beams and a built-in window seat. Rounded out with a main floor half bath and laundry room.
Upstairs, the primary suite is a retreat with a walk-in closet and private en suite bath. Two additional generously sized bedrooms share a full bathroom with double sinks. The partially finished basement offers flexible bonus space.
Step outside and you’ll immediately understand what makes this property special. A brand new front concrete walkway welcomes you home, while the backyard is a private oasis featuring a full concrete patio with privacy screen and hot tub, perfect for Colorado evenings year-round. The mature trees and generous lot size create the kind of outdoor space that’s increasingly hard to find.
The fully owned solar panels, deliver immediate and long-term energy savings, transferring to the new owner at closing.
Located in the heart of Northwest Arvada, you’re steps from Arvada’s 150-mile trail network including the Ralston Creek Trail, minutes from Olde Town Arvada’s restaurants, breweries, and shops, and zoned for Fremont Elementary, Oberon Junior High, and Arvada West High School. Easy access to I-70 and US-36 puts Downtown Denver and the mountains both within comfortable reach.
Inside, the kitchen impresses with granite countertops, stainless steel appliances, and gleaming floors that carry through the main level. The open layout flows from the dining area and eat-in kitchen space into a spacious family room with a gas fireplace. The Great Room features custom wood beams and a built-in window seat. Rounded out with a main floor half bath and laundry room.
Upstairs, the primary suite is a retreat with a walk-in closet and private en suite bath. Two additional generously sized bedrooms share a full bathroom with double sinks. The partially finished basement offers flexible bonus space.
Step outside and you’ll immediately understand what makes this property special. A brand new front concrete walkway welcomes you home, while the backyard is a private oasis featuring a full concrete patio with privacy screen and hot tub, perfect for Colorado evenings year-round. The mature trees and generous lot size create the kind of outdoor space that’s increasingly hard to find.
The fully owned solar panels, deliver immediate and long-term energy savings, transferring to the new owner at closing.
Located in the heart of Northwest Arvada, you’re steps from Arvada’s 150-mile trail network including the Ralston Creek Trail, minutes from Olde Town Arvada’s restaurants, breweries, and shops, and zoned for Fremont Elementary, Oberon Junior High, and Arvada West High School. Easy access to I-70 and US-36 puts Downtown Denver and the mountains both within comfortable reach.
Property Details
Price:
$699,000
MLS #:
REC7186609
Status:
Active
Beds:
3
Baths:
3
Type:
Single Family
Subtype:
Single Family Residence
Subdivision:
Woodland Valley
Finished Sq Ft:
3,119
Total Sq Ft:
3,119
Lot Size:
12,879 sqft / 0.30 acres (approx)
Year Built:
1968
Schools
School District:
Jefferson County R-1
Elementary School:
Fremont
Middle School:
Oberon
High School:
Arvada West
Interior
Above Grade Finished Area
2371
Appliances
Dryer, Microwave, Oven, Range, Refrigerator, Washer
Bathrooms
1 Full Bathroom, 1 Three Quarter Bathroom, 1 Half Bathroom
Below Grade Unfinished Area
748
Cooling
Attic Fan, Central Air
Fireplaces Total
1
Flooring
Carpet, Laminate, Tile
Heating
Forced Air, Natural Gas
Interior Features
Breakfast Bar, Built-in Features, Ceiling Fan(s), Eat-in Kitchen, Entrance Foyer, Granite Counters, Pantry, Primary Suite, Smoke Free, Vaulted Ceiling(s), Walk-In Closet(s)
Laundry Features
In Unit
Levels
Multi/Split
Main Level Bathrooms
1
Exterior
Architectural Style
Traditional
Attached Garage YN
1
Construction Materials
Brick, Concrete, Frame, Wood Siding
Direction Faces
Southwest
Exterior Features
Lighting, Private Yard, Rain Gutters
Fencing
Full
Garage Spaces
2
Green Energy Efficient
HVAC
Lot Features
Cul-De-Sac, Level, Near Public Transit
Parking Features
Concrete
Parking Spots
2
Parking Total
2
Patio And Porch Features
Covered, Front Porch, Patio
Roof
Composition
Security Features
Smoke Detector(s)
View
Mountain(s)
Window Features
Bay Window(s), Double Pane Windows
Financial
Tax Year
2024
Taxes
$4,569
Map
Contact Us
Mortgage Calculator
Property Summary
- Located in the Woodland Valley subdivision, 6868 Vivian Street Arvada CO is a Single Family for sale in Arvada, CO, 80004. It is listed for $699,000 and features 3 beds, 3 baths, and has approximately 3,119 square feet of living space, and was originally constructed in 1968. The current price per square foot is $224. The average price per square foot for Single Family listings in Arvada is $304. The average listing price for Single Family in Arvada is $828,107. To schedule a showing of MLS#rec7186609 at 6868 Vivian Street in Arvada, CO, contact your Smart Sale AI agent at 3039066915.
Similar Listings Nearby
Additional Details
MLS ID : REC7186609
Listing Key : REC2052396356
Parcel Number : 072542
Zip Code : 80004
City : Arvada
State : CO
Building if Condo :
Full Street: 6868 Vivian Street
Address : 6868
Address Prefix :
Address Suffix : Street
Street : Vivian
Street Prefix :
Street Suffix :
Unit if Condo :
Latitude : 39.822353
Longitude : -105.136887
Property Type : singlefamily
Property Sub Type : Single Family Residence
Stories Total if Condo :
Lot Size : 12,879 sqft / 0.30 acres (approx)
Ownership : Individual
Zoning :
Condition : Updated/Remodeled
Renovation :
Pets Allowed :
Special Conditions : None
Possession : Close Plus 30 Days,Close Plus 30 to 60 Days
Original Price : 739000
Close Price :
Close Date :
List Date : Mar 19, 2026
List Contract Date : 2026-03-19
Off Market Date :
Purchase Contract Date :
Days on Market : 68
Concessions Amount :
Concession Comment :
Renovation :
Company : Stealth Wealth Group

Copyright 2026. All rights reserved.
6868 Vivian Street
Arvada, CO












































