1011 S Valentia Street #141 Denver CO 80247 MLS #REC5988645
If you are seeking an airy, inviting, and accessible home that makes entertaining easy, near the Highline Canal, you’ve found it! Situated in the Lighthouse Villas gated community, this home offers comfort, style, and low-maintenance living. The layout of this home has a main-level primary suite, with everything you need thoughtfully arranged on the spacious, open main floor.
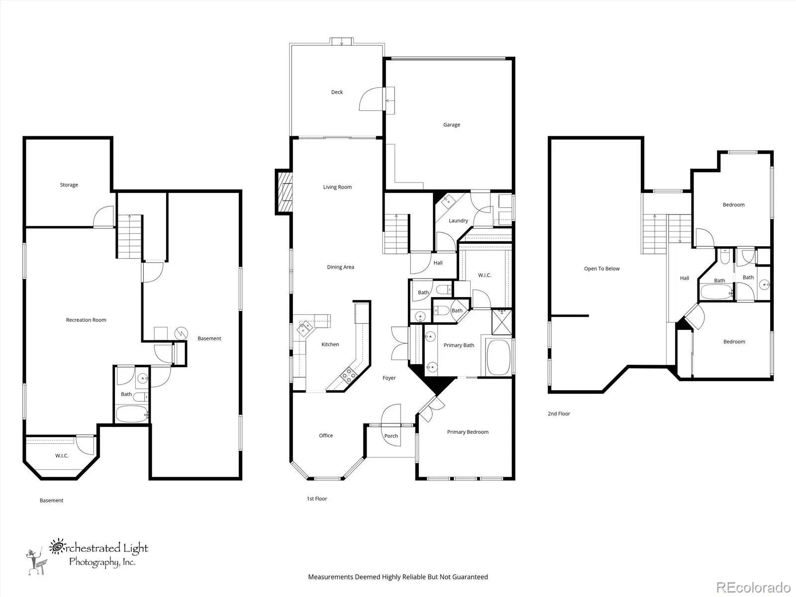
Your first step inside you’ll be in a grand entry that flows seamlessly to the rest of the home, with hardwood flooring throughout. There is a formal dining room, which can be used as a sunny study. Savor casual mornings in the breakfast nook just off the kitchen, which features stunning solid granite countertops, and is the perfect place to try new recipes. The great room has soaring vaulted ceilings creating a light-filled atmosphere with a cozy gas fireplace. Sliding doors open directly from the living room onto the back patio and private fenced yard. Your guests will appreciate the convenient powder room and spacious laundry room on this level. The main-level primary suite is your private retreat, with an en suite bathroom, a large walk-in closet, and elegant plantation shutters.
Upstairs, you’ll find two additional bedrooms, with a Jack-and-Jill bathroom, offering both functionality and privacy.
The partially finished basement adds even more versatility, and additional living space in a comfortable family room with egress windows, a full bathroom, and the potential for a fourth and fifth bedroom. There’s also abundant storage space and room to create your dream workshop or craft area.
Outside, enjoy a beautifully maintained front lawn and a private backyard oasis with a patio, retractable awning, and space to garden and relax with friends.
Living in this gated community means added peace of mind, along with access to a clubhouse. All of this, just moments from walking trails, shopping, and everyday conveniences. Plus, a quick closing is available if needed.
Your first step inside you’ll be in a grand entry that flows seamlessly to the rest of the home, with hardwood flooring throughout. There is a formal dining room, which can be used as a sunny study. Savor casual mornings in the breakfast nook just off the kitchen, which features stunning solid granite countertops, and is the perfect place to try new recipes. The great room has soaring vaulted ceilings creating a light-filled atmosphere with a cozy gas fireplace. Sliding doors open directly from the living room onto the back patio and private fenced yard. Your guests will appreciate the convenient powder room and spacious laundry room on this level. The main-level primary suite is your private retreat, with an en suite bathroom, a large walk-in closet, and elegant plantation shutters.
Upstairs, you’ll find two additional bedrooms, with a Jack-and-Jill bathroom, offering both functionality and privacy.
The partially finished basement adds even more versatility, and additional living space in a comfortable family room with egress windows, a full bathroom, and the potential for a fourth and fifth bedroom. There’s also abundant storage space and room to create your dream workshop or craft area.
Outside, enjoy a beautifully maintained front lawn and a private backyard oasis with a patio, retractable awning, and space to garden and relax with friends.
Living in this gated community means added peace of mind, along with access to a clubhouse. All of this, just moments from walking trails, shopping, and everyday conveniences. Plus, a quick closing is available if needed.
Property Details
Price:
$699,900
MLS #:
REC5988645
Status:
Active Under Contract
Beds:
3
Baths:
4
Type:
Single Family
Subtype:
Single Family Residence
Subdivision:
Breakers Single Family
Finished Sq Ft:
2,837
Total Sq Ft:
3,607
Lot Size:
6,970 sqft / 0.16 acres (approx)
Year Built:
1995
Schools
School District:
Denver 1
Elementary School:
Denver Green
Middle School:
Denver Green
High School:
George Washington
Interior
Above Grade Finished Area
2067
Appliances
Dishwasher, Disposal, Dryer, Microwave, Oven, Refrigerator, Trash Compactor, Washer
Bathrooms
3 Full Bathrooms, 1 Half Bathroom
Below Grade Finished Area
770
Below Grade Unfinished Area
770
Cooling
Central Air
Fireplaces Total
1
Flooring
Tile, Wood
Heating
Forced Air
Interior Features
Five Piece Bath, Granite Counters, High Ceilings, Jack & Jill Bathroom, Open Floorplan, Primary Suite, Solid Surface Counters
Levels
Three Or More
Main Level Bathrooms
2
Main Level Bedrooms
1
Exterior
Accessibility Features
Accessible Bedroom, Accessible Central Living Area, Accessible Common Area, Accessible Kitchen, Accessible Washer/Dryer
Association Amenities
Clubhouse, Gated, Pool, Spa/Hot Tub
Attached Garage YN
1
Construction Materials
Brick, Frame
Exterior Features
Private Yard
Fencing
Partial
Garage Spaces
2
Lot Features
Cul-De-Sac, Level
Parking Features
Concrete, Lighted
Parking Spots
2
Parking Total
2
Patio And Porch Features
Patio
Roof
Composition
Window Features
Bay Window(s), Window Coverings, Window Treatments
Financial
HOA Fee
$485
HOA Fee Frequency
Monthly
HOA Includes
Maintenance Grounds, Recycling, Road Maintenance, Snow Removal, Trash
HOA Name
Westwind Management Group, LLC
HOA Phone
303-369-1800
Tax Year
2024
Taxes
$3,673
Map
Contact Us
Mortgage Calculator
Property Summary
- Located in the Breakers Single Family subdivision, 1011 S Valentia Street #141 Denver CO is a Single Family for sale in Denver, CO, 80247. It is listed for $699,900 and features 3 beds, 4 baths, and has approximately 2,837 square feet of living space, and was originally constructed in 1995. The current price per square foot is $247. The average price per square foot for Single Family listings in Denver is $400. The average listing price for Single Family in Denver is $993,881. To schedule a showing of MLS#rec5988645 at 1011 S Valentia Street #141 in Denver, CO, contact your Smart Sale AI agent at 3039066915.
Similar Listings Nearby
Additional Details
MLS ID : REC5988645
Listing Key : REC2053341289
Parcel Number : 6163-07-054
Zip Code : 80247
City : Denver
State : CO
Building if Condo : Lighthouse Villas
Full Street: 1011 S Valentia Street #141
Address : 1011
Address Prefix :
Address Suffix : Street
Street : Valentia
Street Prefix : S
Street Suffix :
Unit if Condo : 141
Latitude : 39.699608
Longitude : -104.895554
Property Type : singlefamily
Property Sub Type : Single Family Residence
Stories Total if Condo :
Lot Size : 6,970 sqft / 0.16 acres (approx)
Ownership : Corporation/Trust
Zoning : R-2-A
Condition : Updated/Remodeled
Renovation :
Pets Allowed : Cats OK,Dogs OK
Special Conditions : None
Possession : Negotiable
Original Price : 699900
Close Price :
Close Date :
List Date : Apr 16, 2026
List Contract Date : 2026-04-16
Off Market Date : 2026-04-20
Purchase Contract Date : 2026-04-20
Days on Market : 39
Concessions Amount :
Concession Comment :
Renovation :
Company : Cox Real Estate Group

Copyright 2026. All rights reserved.
1011 S Valentia Street #141
Denver, CO













































