576 Steele Street Denver CO 80206 MLS #REC8091488
576 Steele Street
Denver, CO, 80206
$1,599,000
Open House 1:30-4 pm April 11th &12th. Live & Earn in Cherry Creek North — Updated Duplex with No HOA
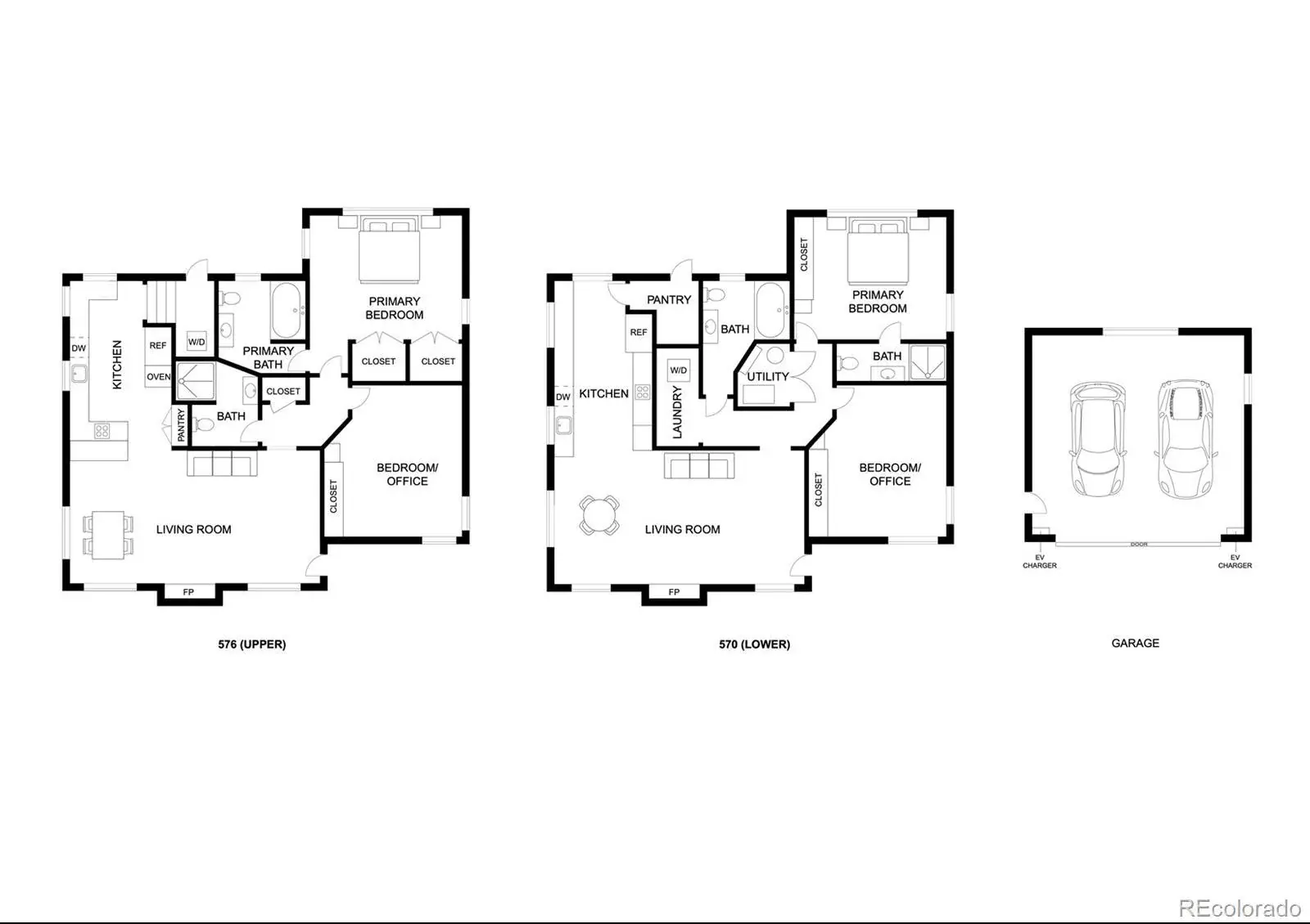
Enjoy midcentury charm with modern comforts in this rare Cherry Creek North gem — a
beautifully updated 1950s top-bottom duplex offering two fully independent 2 bed / 2 bath
residences. Ideal for owner-occupants, investors, or anyone seeking flexible, income-producing
housing in one of Denver’s most desirable neighborhoods.
Each unit has its own entrance, laundry, HVAC, and soundproofing for comfort and privacy.
Updated finishes include prefinished wood flooring, gas fireplaces, custom closets, and sleek
kitchens with new appliances. Three bathrooms feature heated floors, and all four include smart
bidet toilets.
Both residences are thoughtfully equipped with modern conveniences, including smart locks,
thermostats, camera doorbells, gigabit fiber-ready internet, and hardwired ethernet access points.
Unit 576 features central air and a new high-efficiency furnace. Unit 570 includes brand-new
mini-split heating and cooling systems. The lower-level garden unit is full of natural light and
feels warm, bright, and spacious — nothing like a typical basement. Shared amenities include a
reverse osmosis water filtration system and a new 50-gallon water heater.
Outdoor living is equally thoughtful, with a fully fenced private yard and keypad entry, a two-car
garage pre-wired for EV chargers (220V outlet installed), and driveway parking for up to six
vehicles — a rare find in Cherry Creek North. The patio includes a natural gas hookup, perfect
for grilling or adding a fire feature.
Located within the attendance boundaries of top-rated public schools, and close to Cherry Creek
Mall, 7th Ave Parkway, the Denver Botanic Gardens, and over 300 neighborhood shops,
restaurants, and services. Most furnishings can be included. A turnkey duplex with strong income
potential and no HOA.
Enjoy midcentury charm with modern comforts in this rare Cherry Creek North gem — a
beautifully updated 1950s top-bottom duplex offering two fully independent 2 bed / 2 bath
residences. Ideal for owner-occupants, investors, or anyone seeking flexible, income-producing
housing in one of Denver’s most desirable neighborhoods.
Each unit has its own entrance, laundry, HVAC, and soundproofing for comfort and privacy.
Updated finishes include prefinished wood flooring, gas fireplaces, custom closets, and sleek
kitchens with new appliances. Three bathrooms feature heated floors, and all four include smart
bidet toilets.
Both residences are thoughtfully equipped with modern conveniences, including smart locks,
thermostats, camera doorbells, gigabit fiber-ready internet, and hardwired ethernet access points.
Unit 576 features central air and a new high-efficiency furnace. Unit 570 includes brand-new
mini-split heating and cooling systems. The lower-level garden unit is full of natural light and
feels warm, bright, and spacious — nothing like a typical basement. Shared amenities include a
reverse osmosis water filtration system and a new 50-gallon water heater.
Outdoor living is equally thoughtful, with a fully fenced private yard and keypad entry, a two-car
garage pre-wired for EV chargers (220V outlet installed), and driveway parking for up to six
vehicles — a rare find in Cherry Creek North. The patio includes a natural gas hookup, perfect
for grilling or adding a fire feature.
Located within the attendance boundaries of top-rated public schools, and close to Cherry Creek
Mall, 7th Ave Parkway, the Denver Botanic Gardens, and over 300 neighborhood shops,
restaurants, and services. Most furnishings can be included. A turnkey duplex with strong income
potential and no HOA.
Property Details
Price:
$1,599,000
MLS #:
REC8091488
Status:
Active
Beds:
4
Baths:
4
Type:
Single Family
Subtype:
Single Family Residence
Subdivision:
Cherry Creek
Finished Sq Ft:
2,000
Total Sq Ft:
2,000
Lot Size:
5,420 sqft / 0.12 acres (approx)
Year Built:
1953
Schools
School District:
Denver 1
Elementary School:
Bromwell
Middle School:
Hill
High School:
George Washington
Interior
Above Grade Finished Area
1000
Appliances
Cooktop, Dishwasher, Disposal, Dryer, Gas Water Heater, Oven, Refrigerator, Washer
Bathrooms
2 Full Bathrooms, 2 Three Quarter Bathrooms
Below Grade Finished Area
1000
Cooling
Central Air, Other
Fireplaces Total
2
Flooring
Wood
Heating
Forced Air, Natural Gas
Interior Features
Eat-in Kitchen, Kitchen Island, Open Floorplan, Smart Thermostat, Smoke Free, Solid Surface Counters
Laundry Features
In Unit
Levels
Multi/Split
Main Level Bathrooms
2
Main Level Bedrooms
2
Exterior
Architectural Style
Mid-Century Modern
Construction Materials
Brick
Direction Faces
West
Exterior Features
Gas Valve, Private Yard
Fencing
Full
Garage Spaces
2
Lot Features
Level, Near Public Transit
Parking Features
220 Volts, Concrete, Electric Vehicle Charging Station(s), Exterior Access Door, Lighted
Parking Spots
4
Parking Total
4
Patio And Porch Features
Front Porch, Patio
Roof
Composition
Security Features
Carbon Monoxide Detector(s), Smart Locks, Smoke Detector(s)
Window Features
Double Pane Windows
Financial
Tax Year
2024
Taxes
$7,397
Map
Contact Us
Mortgage Calculator
Property Summary
- Located in the Cherry Creek subdivision, 576 Steele Street Denver CO is a Single Family for sale in Denver, CO, 80206. It is listed for $1,599,000 and features 4 beds, 4 baths, and has approximately 2,000 square feet of living space, and was originally constructed in 1953. The current price per square foot is $800. The average price per square foot for Single Family listings in Denver is $401. The average listing price for Single Family in Denver is $994,202. To schedule a showing of MLS#rec8091488 at 576 Steele Street in Denver, CO, contact your Smart Sale AI agent at 3039066915.
Similar Listings Nearby
Additional Details
MLS ID : REC8091488
Listing Key : REC2048456615
Parcel Number : 5015-28-001
Zip Code : 80206
City : Denver
State : CO
Building if Condo :
Full Street: 576 Steele Street
Address : 576
Address Prefix :
Address Suffix : Street
Street : Steele
Street Prefix :
Street Suffix :
Unit if Condo :
Latitude : 39.725376
Longitude : -104.949554
Property Type : singlefamily
Property Sub Type : Single Family Residence
Stories Total if Condo :
Lot Size : 5,420 sqft / 0.12 acres (approx)
Ownership : Individual
Zoning : G-RH-3
Condition : Updated/Remodeled
Renovation :
Pets Allowed :
Special Conditions : None
Possession : Close Plus 3 Days
Original Price : 1885000
Close Price :
Close Date :
List Date : Jul 18, 2025
List Contract Date : 2025-07-18
Off Market Date :
Purchase Contract Date :
Days on Market : 311
Concessions Amount :
Concession Comment :
Renovation :
Company : AllStars Real Estate

Copyright 2026. All rights reserved.
576 Steele Street
Denver, CO











































