1090 Cherokee Street #303 Denver CO 80204 MLS #REC4332424
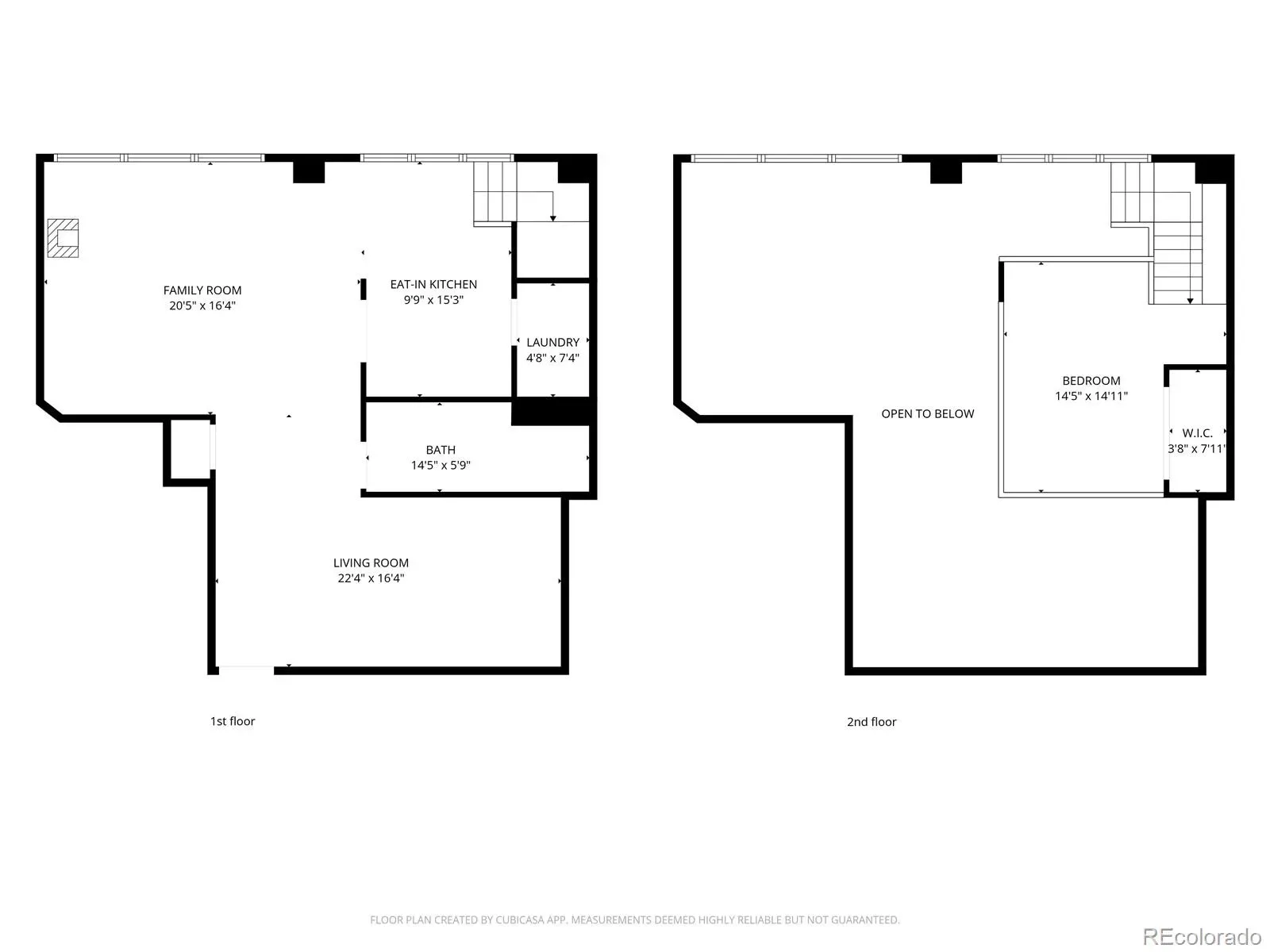
Welcome to a remarkable two story loft in the heart of Denver’s Golden Triangle where historic character meets elevated city living. Located in the iconic Cadillac Lofts, originally built as a Cadillac Motor Company service garage, this one bedroom, one bathroom residence blends preserved architectural history with refined modern updates.
Inside, soaring fifteen foot ceilings, exposed brick walls, and original hardwood flooring create a dramatic yet inviting atmosphere. Oversized industrial windows flood the home with natural light while framing beautiful views of the Denver skyline. A gas fireplace anchors the main living space, complemented by Restoration Hardware lighting and hardware throughout the home.
The thoughtfully designed kitchen features custom cabinetry, Caesarstone countertops, Becko appliances, and a spacious walk in pantry. A flexible secondary space offers endless possibilities and can easily function as a home office, dining area, or potential second bedroom.
Upstairs, the lofted bedroom provides a private retreat complete with a custom closet. Residents also enjoy access to the community rooftop deck, the perfect setting for grilling, entertaining, and taking in Colorado sunsets.
Additional highlights include two designated covered parking spaces, a private storage unit, and an in unit washer and dryer.
Situated moments from Denver’s best dining, shopping, and museums, with convenient access to major roadways, this residence offers an exceptional blend of historic charm, thoughtful design, and vibrant city living.
Inside, soaring fifteen foot ceilings, exposed brick walls, and original hardwood flooring create a dramatic yet inviting atmosphere. Oversized industrial windows flood the home with natural light while framing beautiful views of the Denver skyline. A gas fireplace anchors the main living space, complemented by Restoration Hardware lighting and hardware throughout the home.
The thoughtfully designed kitchen features custom cabinetry, Caesarstone countertops, Becko appliances, and a spacious walk in pantry. A flexible secondary space offers endless possibilities and can easily function as a home office, dining area, or potential second bedroom.
Upstairs, the lofted bedroom provides a private retreat complete with a custom closet. Residents also enjoy access to the community rooftop deck, the perfect setting for grilling, entertaining, and taking in Colorado sunsets.
Additional highlights include two designated covered parking spaces, a private storage unit, and an in unit washer and dryer.
Situated moments from Denver’s best dining, shopping, and museums, with convenient access to major roadways, this residence offers an exceptional blend of historic charm, thoughtful design, and vibrant city living.
Property Details
Price:
$675,000
MLS #:
REC4332424
Status:
Active
Beds:
1
Baths:
1
Type:
Condo
Subtype:
Condominium
Subdivision:
Golden Triangle
Finished Sq Ft:
1,385
Total Sq Ft:
1,385
Year Built:
1920
Schools
School District:
Denver 1
Elementary School:
Dora Moore
Middle School:
Strive Federal
High School:
West
Interior
Above Grade Finished Area
1385
Appliances
Dishwasher, Dryer, Oven, Range Hood, Refrigerator, Self Cleaning Oven, Warming Drawer, Washer
Bathrooms
1 Full Bathroom
Cooling
Central Air
Heating
Electric, Natural Gas
Interior Features
Built-in Features, Ceiling Fan(s), Eat-in Kitchen, Entrance Foyer, High Ceilings, Kitchen Island, Open Floorplan, Pantry, Smart Thermostat, Smoke Free, Solid Surface Counters, Walk-In Closet(s)
Laundry Features
In Unit
Levels
Two
Main Level Bathrooms
1
Exterior
Architectural Style
Loft
Association Amenities
Bike Storage, Elevator(s), Parking, Security, Storage
Common Walls
2+ Common Walls
Construction Materials
Brick, Cedar, Concrete, Stucco
Exterior Features
Balcony, Barbecue, Elevator, Lighting
Lot Features
Corner Lot, Historical District, Landscaped, Master Planned, Near Public Transit
Parking Features
Electric Vehicle Charging Station(s)
Parking Spots
2
Parking Total
2
Roof
Composition, Wood
Security Features
Carbon Monoxide Detector(s), Secured Garage/Parking, Security Entrance, Security System, Smart Cameras, Smart Security System, Smoke Detector(s), Video Doorbell
Financial
HOA Fee
$647
HOA Fee Frequency
Monthly
HOA Includes
Reserves, Exterior Maintenance w/out Roof, Gas, Irrigation, Maintenance Grounds, Maintenance Structure, Recycling, Security, Sewer, Trash, Water
HOA Name
Cherokee Lofts – Sopra Communities
HOA Phone
720-432-4604
Tax Year
2024
Taxes
$3,088
Map
Contact Us
Mortgage Calculator
Property Summary
- Located in the Golden Triangle subdivision, 1090 Cherokee Street #303 Denver CO is a Condo for sale in Denver, CO, 80204. It is listed for $675,000 and features 1 beds, 1 baths, and has approximately 1,385 square feet of living space, and was originally constructed in 1920. The current price per square foot is $487. The average price per square foot for Condo listings in Denver is $397. The average listing price for Condo in Denver is $483,895. To schedule a showing of MLS#rec4332424 at 1090 Cherokee Street #303 in Denver, CO, contact your Smart Sale AI agent at 3039066915.
Similar Listings Nearby
Additional Details
MLS # : REC4332424
Listing Key : REC2052432703
Parcel Number : 5037-03-048
Zip Code : 80204
City : Denver
State : CO
Building if Condo :
Street : 1090 Cherokee Street #303
Address : 1090
Address Prefix :
Address Suffix : Street
Unit if Condo : 303
Latitude : 39.732510
Longitude : -104.991936
Property Type : condo
Property Sub Type : Condominium
Stories Total if Condo :
Lot Size :
Ownership : Individual
Zoning : D-GT
Condition : Updated/Remodeled
Renovation :
Pets Allowed : Yes
Special Conditions : None
Possession : Negotiable
Original Price : 695000
Close Price :
Close Date :
List Date : Mar 12, 2026
List Contract Date : 2026-03-12
Off Market Date :
Purchase Contract Date :
Days on Market : 40
Concessions Amount :
Concession Comment :

Copyright 2026. All rights reserved.
1090 Cherokee Street #303
Denver, CO




































