3261 Tennyson Street Denver CO 80212 MLS #REC7080527
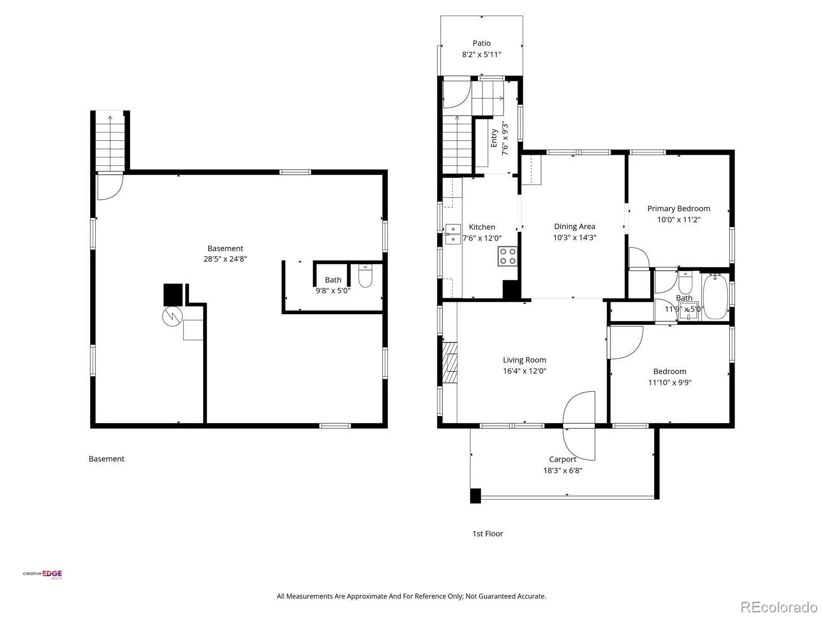
This classic full-brick bungalow offers an incredible opportunity to own in one of Denver’s most sought-after neighborhoods—Highlands. Rich with character and timeless curb appeal, this home is ready for its next chapter. While it does need a renovation and updating, the attractive price point creates a rare chance to secure a property in this prime location with built-in upside. Whether you’re an owner-occupant eager to personalize your home and build equity, or an investor exploring expansion or redevelopment potential, this property delivers flexibility and long-term value. The existing layout includes two bedrooms and one bathroom, providing comfortable living space with a traditional bungalow flow. The main level features two bedrooms, a full bath, a welcoming family room, a dedicated dining space, and a kitchen ready to be re-imagined. Downstairs, the spacious basement opens the door to significant added value—create additional bedrooms, a second bathroom, a media room, home office, gym, or the ultimate hangout space. The footprint is there; the vision is yours. Outside, you’ll find a one-car detached garage and a backyard with endless possibilities. Design a lush garden retreat, expand outdoor entertaining areas, or build out additional improvements—the lot offers room to dream. Location is everything, and this home delivers. Enjoy easy access to the highlands, restaurants, neighborhood coffee shops, local bars, and vibrant community atmosphere. Opportunities like this are rare and a competitive price in a high-demand neighborhood—don’t come along often. Bring your creativity and unlock the full potential of this classic bungalow. Seller is open to offers.
Property Details
Price:
$550,000
MLS #:
REC7080527
Status:
Active Under Contract
Beds:
2
Baths:
1
Type:
Single Family
Subtype:
Single Family Residence
Subdivision:
Highland
Finished Sq Ft:
786
Total Sq Ft:
1,572
Lot Size:
4,500 sqft / 0.10 acres (approx)
Year Built:
1928
Schools
School District:
Denver 1
Elementary School:
Edison
Middle School:
Skinner
High School:
North
Interior
Above Grade Finished Area
786
Bathrooms
1 Full Bathroom
Below Grade Unfinished Area
786
Cooling
Other
Fireplaces Total
1
Flooring
Wood
Heating
Forced Air, Hot Water
Laundry Features
In Unit
Levels
One
Main Level Bathrooms
1
Main Level Bedrooms
2
Exterior
Architectural Style
Bungalow
Construction Materials
Brick
Direction Faces
East
Exterior Features
Private Yard
Garage Spaces
1
Lot Features
Level
Parking Spots
1
Parking Total
1
Patio And Porch Features
Front Porch
Roof
Composition
Financial
Tax Year
2024
Taxes
$3,139
Map
Contact Us
Mortgage Calculator
Property Summary
- Located in the Highland subdivision, 3261 Tennyson Street Denver CO is a Single Family for sale in Denver, CO, 80212. It is listed for $550,000 and features 2 beds, 1 baths, and has approximately 786 square feet of living space, and was originally constructed in 1928. The current price per square foot is $700. The average price per square foot for Single Family listings in Denver is $424. The average listing price for Single Family in Denver is $1,010,419. To schedule a showing of MLS#rec7080527 at 3261 Tennyson Street in Denver, CO, contact your Smart Sale AI agent at 3039066915.
Similar Listings Nearby
Additional Details
MLS # : REC7080527
Listing Key : REC2052977011
Parcel Number : 2302-34-008
Zip Code : 80212
City : Denver
State : CO
Building if Condo :
Street : 3261 Tennyson Street
Address : 3261
Address Prefix :
Address Suffix : Street
Unit if Condo :
Latitude : 39.763412
Longitude : -105.044220
Property Type : singlefamily
Property Sub Type : Single Family Residence
Stories Total if Condo :
Lot Size : 4,500 sqft / 0.10 acres (approx)
Ownership : Estate
Zoning : U-SU-B
Condition : Fixer
Renovation :
Pets Allowed :
Special Conditions : None
Possession : Closing/DOD
Original Price : 550000
Close Price :
Close Date :
List Date : Apr 8, 2026
List Contract Date : 2026-04-08
Off Market Date : 2026-04-16
Purchase Contract Date : 2026-04-16
Days on Market : 13
Concessions Amount :
Concession Comment :

Copyright 2026. All rights reserved.
3261 Tennyson Street
Denver, CO




































