3533 N Marion Street Denver CO 80205 MLS #REC6980320
Historic character with modern design in one of Denver’s most vibrant neighborhoods. The fully custom second story—built in 2023 by the owners—features high-end, intentionally designed finishes throughout.
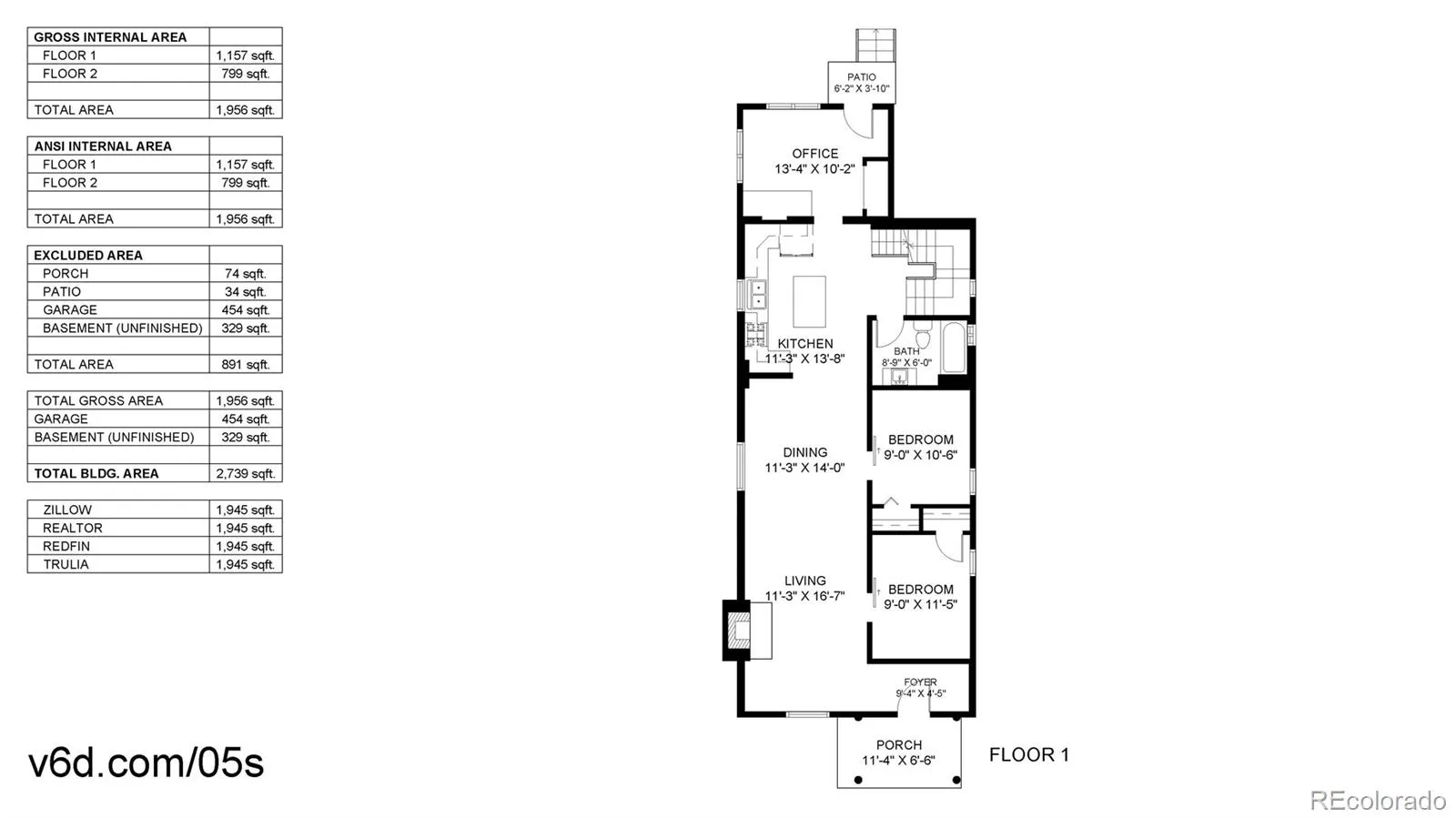
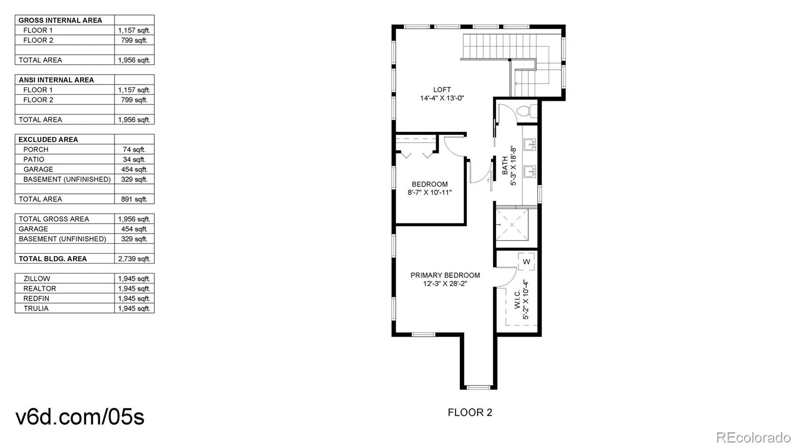
Step inside to a bright, open layout with high ceilings on both levels, hardwood and tile flooring throughout, and custom built-ins with hidden storage. Downstairs, the space feels warm and inviting with abundant natural light, an open layout ideal for families or hosting, and a recently updated bathroom. The new second floor features south-facing windows bringing in abundant natural light, with smart blackout blinds for comfort, and a custom retractable TV wall mount that easily converts the space from a theater setup to a more social, TV-free environment.
The primary suite is a true retreat with a window-seat reading nook, ensuite laundry, and a spa-like bathroom featuring a high-end steam shower system with six body sprays, a waterfall showerhead, and a luxury Japanese toilet. Three additional bedrooms and a second full bathroom offer flexibility for guests, office space, or family needs.
Major systems have been fully updated, including water, sewer, whole-house electrical, and upgraded 240V electrical service via a new Xcel transformer—an uncommon improvement in the neighborhood. Dual-zone HVAC provides independent control for each floor, with a high-efficiency upstairs heat pump powered by an intentionally oversized solar system with Powerwall backup that produces net positive electricity over the course of a year.
Outside, enjoy a rare urban oasis with a landscaped garden, infrared sauna, detached 2-car garage with 240V service, and 2-car carport—offering up to 4 off-street parking spaces. Walk to parks, the 39th Avenue Greenway, Coffee Sarap, Hop Alley, Fish N Beer, Denver Central Market, top dining, bars, coffee shops, and the airport train line, with easy access to downtown, I-25, and I-70.
Step inside to a bright, open layout with high ceilings on both levels, hardwood and tile flooring throughout, and custom built-ins with hidden storage. Downstairs, the space feels warm and inviting with abundant natural light, an open layout ideal for families or hosting, and a recently updated bathroom. The new second floor features south-facing windows bringing in abundant natural light, with smart blackout blinds for comfort, and a custom retractable TV wall mount that easily converts the space from a theater setup to a more social, TV-free environment.
The primary suite is a true retreat with a window-seat reading nook, ensuite laundry, and a spa-like bathroom featuring a high-end steam shower system with six body sprays, a waterfall showerhead, and a luxury Japanese toilet. Three additional bedrooms and a second full bathroom offer flexibility for guests, office space, or family needs.
Major systems have been fully updated, including water, sewer, whole-house electrical, and upgraded 240V electrical service via a new Xcel transformer—an uncommon improvement in the neighborhood. Dual-zone HVAC provides independent control for each floor, with a high-efficiency upstairs heat pump powered by an intentionally oversized solar system with Powerwall backup that produces net positive electricity over the course of a year.
Outside, enjoy a rare urban oasis with a landscaped garden, infrared sauna, detached 2-car garage with 240V service, and 2-car carport—offering up to 4 off-street parking spaces. Walk to parks, the 39th Avenue Greenway, Coffee Sarap, Hop Alley, Fish N Beer, Denver Central Market, top dining, bars, coffee shops, and the airport train line, with easy access to downtown, I-25, and I-70.
Property Details
Price:
$873,000
MLS #:
REC6980320
Status:
Active Under Contract
Beds:
4
Baths:
2
Type:
Single Family
Subtype:
Single Family Residence
Subdivision:
Hyde Park
Finished Sq Ft:
2,202
Total Sq Ft:
2,202
Lot Size:
3,910 sqft / 0.09 acres (approx)
Year Built:
1896
Schools
School District:
Denver 1
Elementary School:
Cole Arts And Science Academy
Middle School:
Whittier E-8
High School:
Manual
Interior
Above Grade Finished Area
1945
Appliances
Dishwasher, Disposal, Gas Water Heater, Oven, Range, Range Hood
Bathrooms
1 Full Bathroom, 1 Three Quarter Bathroom
Below Grade Unfinished Area
257
Cooling
Central Air
Heating
Forced Air, Heat Pump, Natural Gas
Levels
Two
Main Level Bathrooms
1
Main Level Bedrooms
2
Exterior
Construction Materials
Wood Siding
Direction Faces
East
Exterior Features
Garden, Private Yard
Garage Spaces
2
Green Energy Efficient
Exposure/Shade, HVAC
Lot Features
Level
Parking Features
220 Volts, Oversized
Parking Spots
4
Parking Total
4
Roof
Composition
Security Features
Smart Locks, Video Doorbell
View
City, Mountain(s)
Financial
Tax Year
2024
Taxes
$4,198
Map
Contact Us
Mortgage Calculator
Property Summary
- Located in the Hyde Park subdivision, 3533 N Marion Street Denver CO is a Single Family for sale in Denver, CO, 80205. It is listed for $873,000 and features 4 beds, 2 baths, and has approximately 2,202 square feet of living space, and was originally constructed in 1896. The current price per square foot is $396. The average price per square foot for Single Family listings in Denver is $401. The average listing price for Single Family in Denver is $994,509. To schedule a showing of MLS#rec6980320 at 3533 N Marion Street in Denver, CO, contact your Smart Sale AI agent at 3039066915.
Similar Listings Nearby
Additional Details
MLS ID : REC6980320
Listing Key : REC2052717386
Parcel Number : 2263-03-009
Zip Code : 80205
City : Denver
State : CO
Building if Condo :
Full Street: 3533 N Marion Street
Address : 3533
Address Prefix :
Address Suffix : Street
Street : Marion
Street Prefix : N
Street Suffix :
Unit if Condo :
Latitude : 39.766441
Longitude : -104.972412
Property Type : singlefamily
Property Sub Type : Single Family Residence
Stories Total if Condo :
Lot Size : 3,910 sqft / 0.09 acres (approx)
Ownership : Individual
Zoning : U-SU-A1
Condition : Updated/Remodeled
Renovation :
Pets Allowed :
Special Conditions : None
Possession : Close Plus 30 Days,Negotiable
Original Price : 900000
Close Price :
Close Date :
List Date : Apr 10, 2026
List Contract Date : 2026-04-10
Off Market Date : 2026-05-17
Purchase Contract Date : 2026-05-17
Days on Market : 45
Concessions Amount :
Concession Comment :
Renovation :
Company : Ascendant Real Estate, LLC

Copyright 2026. All rights reserved.
3533 N Marion Street
Denver, CO




















































