1757 W 34th Avenue Denver CO 80211 MLS #REC2949985
1757 W 34th Ave/3420 Quivas by appointment ONLY!!!
Zoned U-TU-B
Property is sold AS IS
Unique investment opportunity!! Corner double lot in highly sought after Lower Highland in Denver. (loHi)
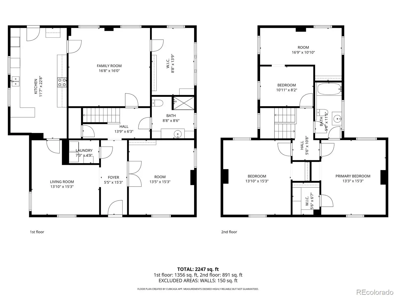
This lot has two separate dwellings. The 2-story main house facing 34th Ave has three bedrooms and two baths. It is structurally compromised and may eventually need to be rebuilt.
The second home, formerly a grocery store, facing Quivas Street has been rented as a Corporate Housing unit. Moat recently rented for $3150 a month. This two-bed, one-bath single-story home, approximately 1,000 sf has an open loft layout with a separate attached sun porch currently used as a second bedroom. (non conforming as it does not have a closet)
Between both structures is a cobblestone-paved courtyard. The property has a relatively new three car garage accessible from the alley on Quivas Street and through the courtyard by foot. The legal address for both is 1757 W 34th Ave. While the back, former grocery store is named 3420 Quivas St on Google Maps, it is technically 1757 W 34th Ave #2.
Currently both units are rented on a monthly basis. The main house is rented at $2600/month and the former grocery store is rented at $3150/month. This provides a total income of $5,750 a month for any investor while they determine changes and procure permits.
All information, claims and statements regarding the use/zoning and potential improvement of this property must be verified by the interested party and are not guaranteed by the Seller/Listing Agent.
Attached are floor plans of both units and photos of Quivas property only.
Zoned U-TU-B
Property is sold AS IS
Unique investment opportunity!! Corner double lot in highly sought after Lower Highland in Denver. (loHi)
This lot has two separate dwellings. The 2-story main house facing 34th Ave has three bedrooms and two baths. It is structurally compromised and may eventually need to be rebuilt.
The second home, formerly a grocery store, facing Quivas Street has been rented as a Corporate Housing unit. Moat recently rented for $3150 a month. This two-bed, one-bath single-story home, approximately 1,000 sf has an open loft layout with a separate attached sun porch currently used as a second bedroom. (non conforming as it does not have a closet)
Between both structures is a cobblestone-paved courtyard. The property has a relatively new three car garage accessible from the alley on Quivas Street and through the courtyard by foot. The legal address for both is 1757 W 34th Ave. While the back, former grocery store is named 3420 Quivas St on Google Maps, it is technically 1757 W 34th Ave #2.
Currently both units are rented on a monthly basis. The main house is rented at $2600/month and the former grocery store is rented at $3150/month. This provides a total income of $5,750 a month for any investor while they determine changes and procure permits.
All information, claims and statements regarding the use/zoning and potential improvement of this property must be verified by the interested party and are not guaranteed by the Seller/Listing Agent.
Attached are floor plans of both units and photos of Quivas property only.
Property Details
Price:
$950,000
MLS #:
REC2949985
Status:
Active
Beds:
3
Baths:
2
Type:
Single Family
Subtype:
Single Family Residence
Subdivision:
Lower Highland
Finished Sq Ft:
2,350
Total Sq Ft:
2,473
Lot Size:
7,170 sqft / 0.16 acres (approx)
Year Built:
1896
Schools
School District:
Denver 1
Elementary School:
Valdez
Middle School:
Strive Sunnyside
High School:
North
Interior
Above Grade Finished Area
2350
Appliances
Dishwasher, Disposal, Dryer, Gas Water Heater, Microwave, Range, Range Hood, Refrigerator, Washer
Bathrooms
1 Full Bathroom, 1 Three Quarter Bathroom
Below Grade Unfinished Area
123
Cooling
Air Conditioning-Room
Flooring
Carpet, Tile, Wood
Heating
Forced Air
Levels
Two
Main Level Bathrooms
1
Exterior
Construction Materials
Brick
Direction Faces
South
Fencing
Full
Garage Spaces
3
Lot Features
Corner Lot, Level
Parking Spots
3
Parking Total
3
Roof
Composition
View
City
Window Features
Double Pane Windows
Financial
Tax Year
2024
Taxes
$8,238
Map
Contact Us
Mortgage Calculator
Property Summary
- Located in the Lower Highland subdivision, 1757 W 34th Avenue Denver CO is a Single Family for sale in Denver, CO, 80211. It is listed for $950,000 and features 3 beds, 2 baths, and has approximately 2,350 square feet of living space, and was originally constructed in 1896. The current price per square foot is $404. The average price per square foot for Single Family listings in Denver is $424. The average listing price for Single Family in Denver is $1,010,663. To schedule a showing of MLS#rec2949985 at 1757 W 34th Avenue in Denver, CO, contact your Smart Sale AI agent at 3039066915.
Similar Listings Nearby
Additional Details
MLS # : REC2949985
Listing Key : REC2052273939
Parcel Number : 2282-24-028
Zip Code : 80211
City : Denver
State : CO
Building if Condo :
Street : 1757 W 34th Avenue
Address : 1757
Address Prefix :
Address Suffix : Avenue
Unit if Condo :
Latitude : 39.764679
Longitude : -105.007828
Property Type : singlefamily
Property Sub Type : Single Family Residence
Stories Total if Condo :
Lot Size : 7,170 sqft / 0.16 acres (approx)
Ownership : Agent Owner
Zoning : U-TU-B
Condition : Fixer
Renovation :
Pets Allowed :
Special Conditions : None
Possession : Closing/DOD
Original Price : 1100000
Close Price :
Close Date :
List Date : Feb 26, 2026
List Contract Date : 2026-02-26
Off Market Date :
Purchase Contract Date :
Days on Market : 51
Concessions Amount :
Concession Comment :

Copyright 2026. All rights reserved.
1757 W 34th Avenue
Denver, CO

























