3627 Leyden Street Denver CO 80207 MLS #REC8930250
Welcome to this classic four bedroom, two bath brick ranch in desirable Northeast Park Hill, offering a thoughtful layout, stylish finishes, and an unbeatable Denver location. Recent improvements include a new roof and freshly painted interior throughout, creating a bright and crisp move in ready feel from the moment you arrive.
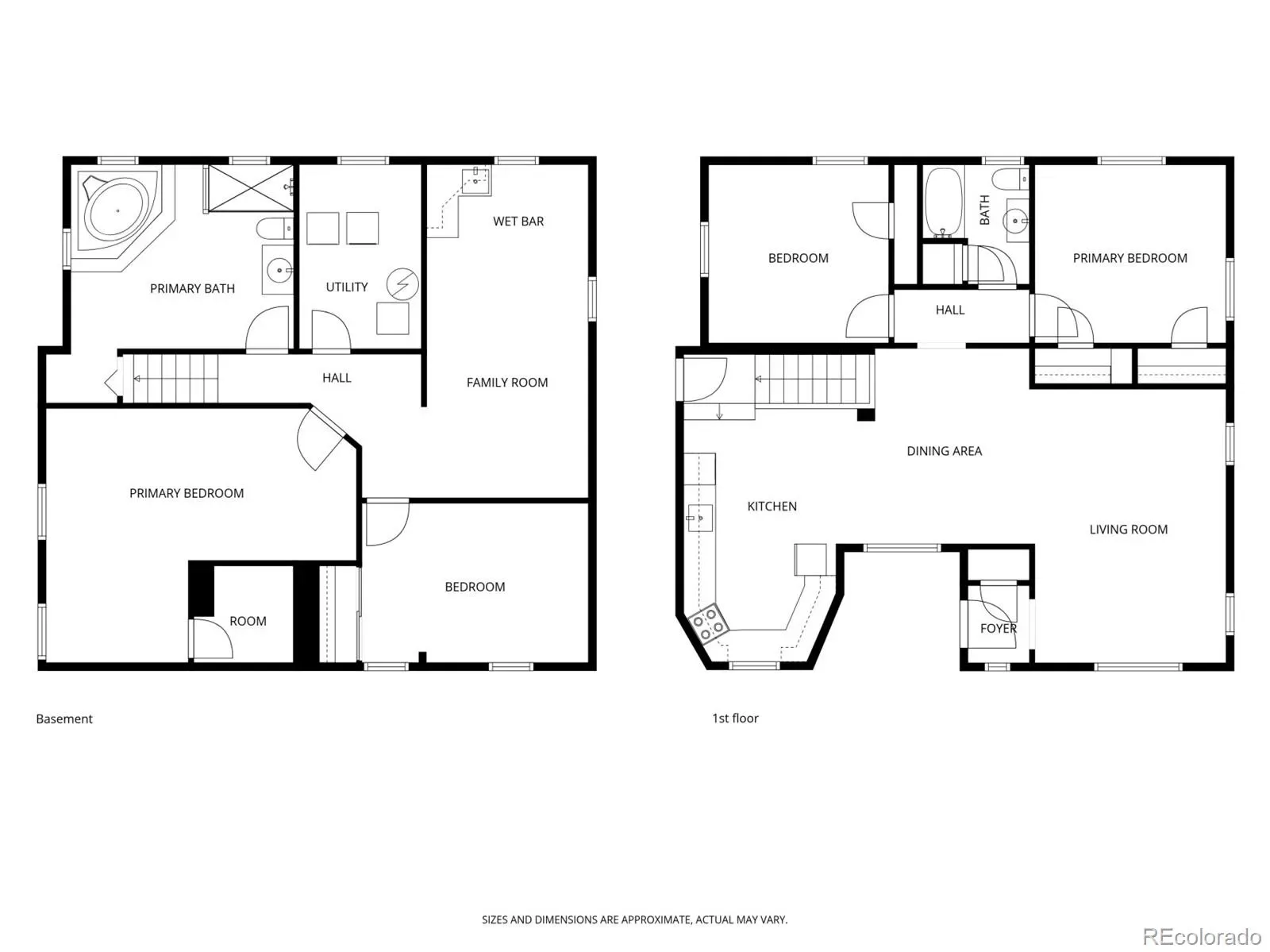
The main level is filled with natural light and showcases beautiful hardwood flooring, granite countertops, and stainless steel appliances. The open living and dining areas provide a comfortable flow for everyday living and entertaining. Two bedrooms and a full bathroom complete the main level.
The fully finished basement significantly expands the home’s living space, featuring two spacious bedrooms, a large bathroom with a jacuzzi tub and glass enclosed shower, and an inviting family room perfect for movie nights, entertaining, or relaxing. This level provides exceptional flexibility for guests, extended family, hobbies, or additional work from home space. A dedicated utility room includes a full size washer and dryer.
Outside, enjoy a fully fenced and low maintenance backyard ideal for gatherings, pets, or quiet evenings outdoors. The oversized detached garage offers space for up to four vehicles and also provides incredible potential for a workshop, home gym, studio, or additional storage, along with extra off street parking.
Ideally located just minutes from Northfield, Central Park, Downtown Denver, City Park, and DIA, with quick access to Interstate 70, this home offers exceptional convenience.
Don’t miss out on this rare opportunity to enjoy space, comfort, and convenience in one of Denver’s most vibrant and enduring neighborhoods.
The main level is filled with natural light and showcases beautiful hardwood flooring, granite countertops, and stainless steel appliances. The open living and dining areas provide a comfortable flow for everyday living and entertaining. Two bedrooms and a full bathroom complete the main level.
The fully finished basement significantly expands the home’s living space, featuring two spacious bedrooms, a large bathroom with a jacuzzi tub and glass enclosed shower, and an inviting family room perfect for movie nights, entertaining, or relaxing. This level provides exceptional flexibility for guests, extended family, hobbies, or additional work from home space. A dedicated utility room includes a full size washer and dryer.
Outside, enjoy a fully fenced and low maintenance backyard ideal for gatherings, pets, or quiet evenings outdoors. The oversized detached garage offers space for up to four vehicles and also provides incredible potential for a workshop, home gym, studio, or additional storage, along with extra off street parking.
Ideally located just minutes from Northfield, Central Park, Downtown Denver, City Park, and DIA, with quick access to Interstate 70, this home offers exceptional convenience.
Don’t miss out on this rare opportunity to enjoy space, comfort, and convenience in one of Denver’s most vibrant and enduring neighborhoods.
Property Details
Price:
$625,000
MLS #:
REC8930250
Status:
Active Under Contract
Beds:
4
Baths:
2
Type:
Single Family
Subtype:
Single Family Residence
Subdivision:
Northeast Park Hill
Finished Sq Ft:
2,236
Total Sq Ft:
2,236
Lot Size:
6,250 sqft / 0.14 acres (approx)
Year Built:
1952
Schools
School District:
Denver 1
Elementary School:
Smith Renaissance
Middle School:
McAuliffe International
High School:
East
Interior
Above Grade Finished Area
1088
Appliances
Convection Oven, Dishwasher, Disposal, Dryer, Microwave, Refrigerator, Self Cleaning Oven, Washer
Bathrooms
2 Full Bathrooms
Below Grade Finished Area
1148
Cooling
Central Air
Flooring
Carpet, Tile, Wood
Heating
Forced Air, Natural Gas
Interior Features
Ceiling Fan(s), Five Piece Bath, Granite Counters, Open Floorplan, Radon Mitigation System, Smart Thermostat, Walk-In Closet(s), Wet Bar
Laundry Features
In Unit
Levels
One
Main Level Bathrooms
1
Main Level Bedrooms
2
Exterior
Architectural Style
Bungalow
Construction Materials
Brick
Direction Faces
East
Exterior Features
Dog Run, Private Yard
Fencing
Full
Garage Spaces
4
Lot Features
Level
Parking Features
Concrete, Oversized
Parking Spots
4
Parking Total
4
Patio And Porch Features
Front Porch
Roof
Composition
Security Features
Carbon Monoxide Detector(s), Radon Detector, Security System, Smart Locks, Smoke Detector(s), Video Doorbell
Spa Features
Bath
Window Features
Double Pane Windows
Financial
Tax Year
2024
Taxes
$3,499
Map
Contact Us
Mortgage Calculator
Property Summary
- Located in the Northeast Park Hill subdivision, 3627 Leyden Street Denver CO is a Single Family for sale in Denver, CO, 80207. It is listed for $625,000 and features 4 beds, 2 baths, and has approximately 2,236 square feet of living space, and was originally constructed in 1952. The current price per square foot is $280. The average price per square foot for Single Family listings in Denver is $424. The average listing price for Single Family in Denver is $1,011,301. To schedule a showing of MLS#rec8930250 at 3627 Leyden Street in Denver, CO, contact your Smart Sale AI agent at 3039066915.
Similar Listings Nearby
Additional Details
MLS # : REC8930250
Listing Key : REC2052057724
Parcel Number : 1292-03-021
Zip Code : 80207
City : Denver
State : CO
Building if Condo :
Street : 3627 Leyden Street
Address : 3627
Address Prefix :
Address Suffix : Street
Unit if Condo :
Latitude : 39.768040
Longitude : -104.915565
Property Type : singlefamily
Property Sub Type : Single Family Residence
Stories Total if Condo :
Lot Size : 6,250 sqft / 0.14 acres (approx)
Ownership : Individual
Zoning : E-SU-DX
Condition : Updated/Remodeled
Renovation :
Pets Allowed :
Special Conditions : None
Possession : Closing/DOD
Original Price : 625000
Close Price :
Close Date :
List Date : Mar 12, 2026
List Contract Date : 2026-03-12
Off Market Date : 2026-04-05
Purchase Contract Date : 2026-04-05
Days on Market : 40
Concessions Amount :
Concession Comment :

Copyright 2026. All rights reserved.
3627 Leyden Street
Denver, CO










































