3590 Grape Street #1 Denver CO 80207 MLS #REC6876557
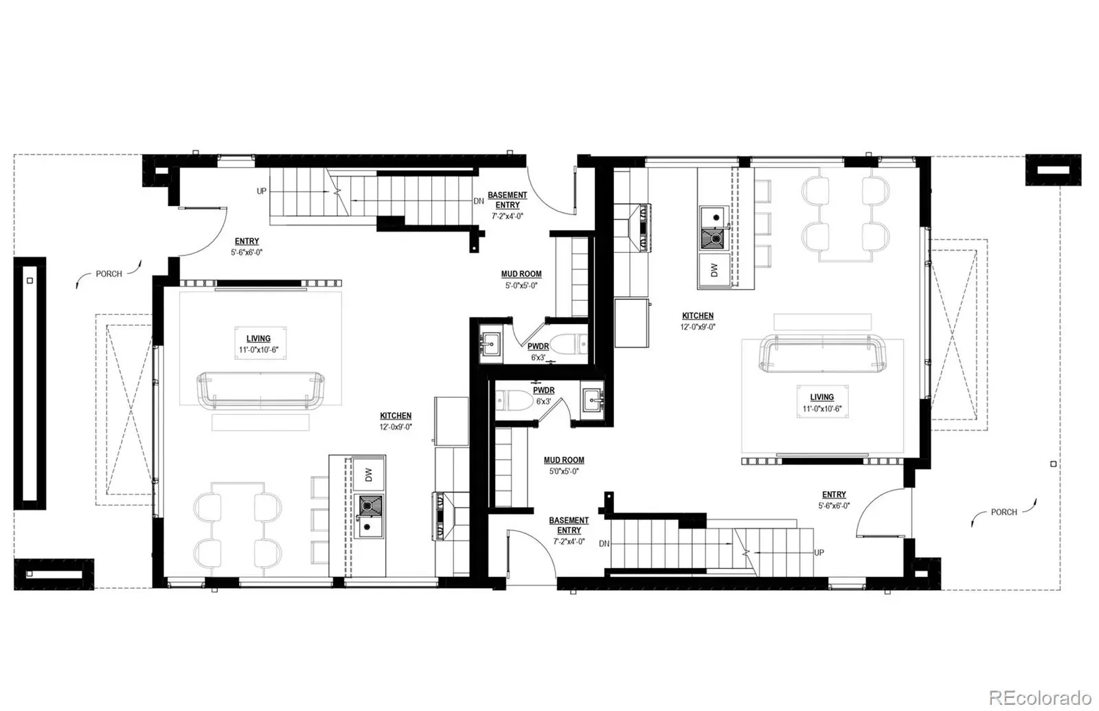
Grape Street 8 – 4 individual Duplex lots bring Modern Duplex Living in the Heart of Park Hill Grape Street 8 is an exciting new development transforming a former church site into four modern duplexes under E-TU-B zoning, thoughtfully maximizing the 18,200 sq ft lot. Located in the heart of Denver’s beloved Park Hill neighborhood, this project blends new-construction quality with attainable pricing and offers pre-sale opportunities for buyers to semi-customize finishes and selections. Each residence features 3 bedrooms, 3.5 bathrooms, and nearly 2,000 sq ft of thoughtfully designed living space. The homes include finished basements with 9-foot ceilings, enhancing the sense of openness and comfort. Basements also feature kitchenettes and lock-off options, creating excellent flexibility for short-term or long-term rental income, guest suites, or multi-generational living. The architecture complements the surrounding historic brick character of Park Hill, while delivering modern layouts and contemporary finishes buyers expect from new construction. Location, Location, Location Living at Grape Street 8 means being close to some of Denver’s best amenities:
• Spend weekends at City Park, home to the Denver Zoo and the Denver Museum of Nature & Science
• Enjoy brunch, coffee, and dining at Park Hill’s neighborhood favorites
• Explore food, drinks, and boutique shopping at Stanley Marketplace
• Convenient access to The Shops at Northfield and York Street Yards
With quick access to downtown Denver, RiNo, and major commuting routes, getting around the city for work or nightlife is effortless. Quiet neighborhood charm meets city convenience — the perfect Denver lifestyle. FRONT UNIT.
• Spend weekends at City Park, home to the Denver Zoo and the Denver Museum of Nature & Science
• Enjoy brunch, coffee, and dining at Park Hill’s neighborhood favorites
• Explore food, drinks, and boutique shopping at Stanley Marketplace
• Convenient access to The Shops at Northfield and York Street Yards
With quick access to downtown Denver, RiNo, and major commuting routes, getting around the city for work or nightlife is effortless. Quiet neighborhood charm meets city convenience — the perfect Denver lifestyle. FRONT UNIT.
Property Details
Price:
$714,500
MLS #:
REC6876557
Status:
Active
Beds:
3
Baths:
4
Type:
Single Family
Subtype:
Single Family Residence
Subdivision:
Park Hill
Finished Sq Ft:
1,917
Total Sq Ft:
1,917
Lot Size:
2,250 sqft / 0.05 acres (approx)
Year Built:
2026
Schools
School District:
Denver 1
Elementary School:
Smith Renaissance
Middle School:
Denver Discovery
High School:
Venture Prep School
Interior
Above Grade Finished Area
1278
Appliances
Bar Fridge, Dishwasher, Disposal, Microwave, Range, Refrigerator, Sump Pump
Bathrooms
2 Full Bathrooms, 1 Three Quarter Bathroom, 1 Half Bathroom
Below Grade Finished Area
639
Cooling
Central Air
Flooring
Carpet, Tile, Wood
Heating
Forced Air
Laundry Features
In Unit, Laundry Closet
Levels
Two
Main Level Bathrooms
1
Exterior
Architectural Style
Contemporary
Common Walls
1 Common Wall
Construction Materials
Cement Siding, Stucco
Direction Faces
West
Fencing
Partial
Garage Spaces
1
Green Energy Efficient
Appliances, HVAC, Insulation, Thermostat, Water Heater, Windows
Parking Features
Concrete
Parking Spots
1
Parking Total
1
Roof
Shingle
Security Features
Carbon Monoxide Detector(s)
View
Mountain(s)
Window Features
Double Pane Windows, Egress Windows
Financial
Tax Year
2025
Taxes
$2,750
Map
Contact Us
Mortgage Calculator
Property Summary
- Located in the Park Hill subdivision, 3590 Grape Street #1 Denver CO is a Single Family for sale in Denver, CO, 80207. It is listed for $714,500 and features 3 beds, 4 baths, and has approximately 1,917 square feet of living space, and was originally constructed in 2026. The current price per square foot is $373. The average price per square foot for Single Family listings in Denver is $424. The average listing price for Single Family in Denver is $1,009,903. To schedule a showing of MLS#rec6876557 at 3590 Grape Street #1 in Denver, CO, contact your Smart Sale AI agent at 3039066915.
Similar Listings Nearby
Additional Details
MLS # : REC6876557
Listing Key : REC2052561525
Parcel Number : 0130107001000
Zip Code : 80207
City : Denver
State : CO
Building if Condo : Grape Street 8
Street : 3590 Grape Street #1
Address : 3590
Address Prefix :
Address Suffix : Street
Unit if Condo : 1
Latitude : 39.767002
Longitude : -104.924446
Property Type : singlefamily
Property Sub Type : Single Family Residence
Stories Total if Condo :
Lot Size : 2,250 sqft / 0.05 acres (approx)
Ownership : Builder
Zoning : U-TU-B
Condition : New Construction
Renovation :
Pets Allowed :
Special Conditions : None
Possession :
Original Price : 714500
Close Price :
Close Date :
List Date : Mar 10, 2026
List Contract Date : 2026-03-10
Off Market Date :
Purchase Contract Date :
Days on Market : 40
Concessions Amount :
Concession Comment :

Copyright 2026. All rights reserved.
3590 Grape Street #1
Denver, CO








