2446 Irving Street Denver CO 80211 MLS #REC5936030
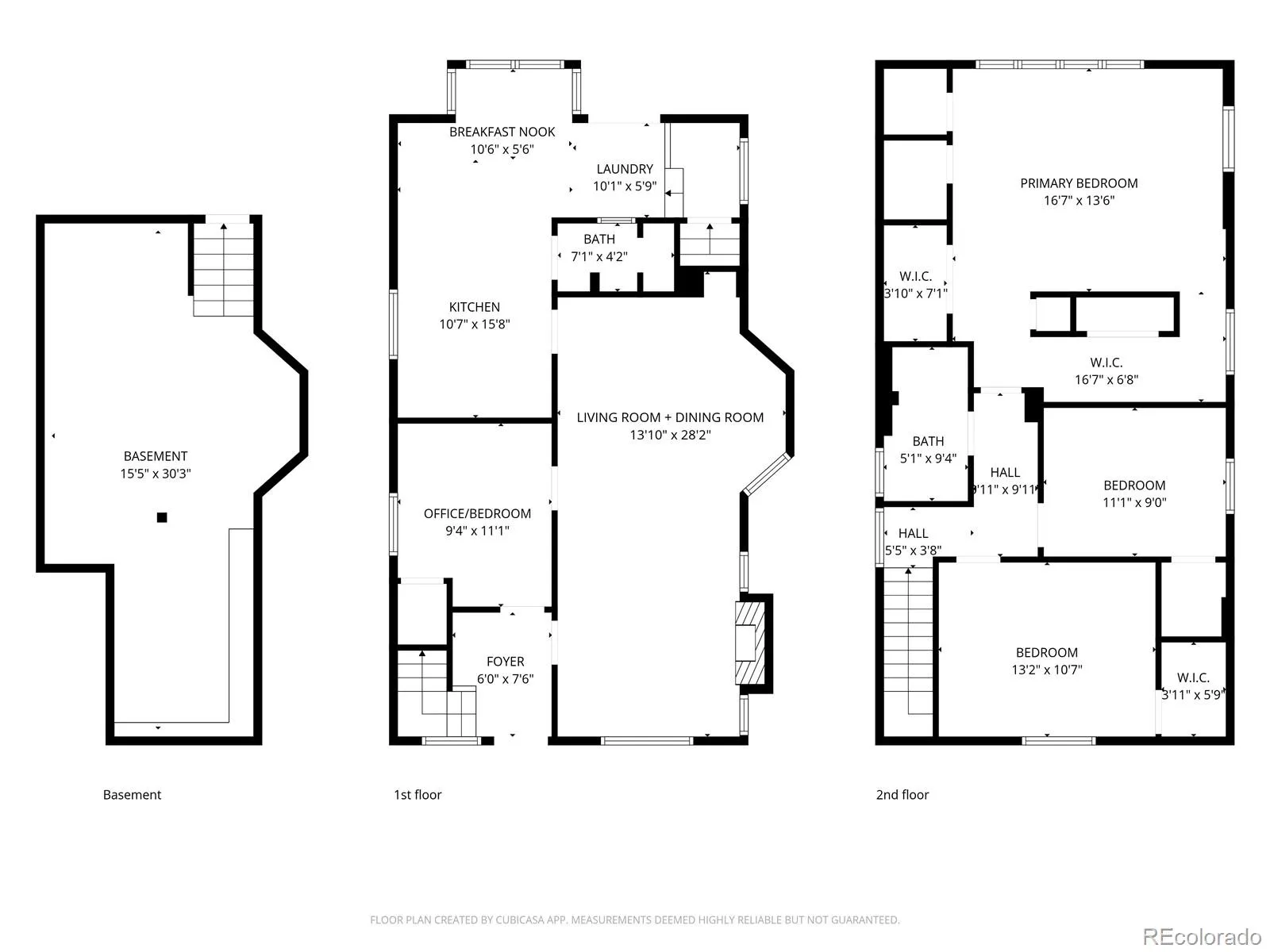
Ideally positioned between Sloan’s Lake and the vibrant Highlands, this beautifully updated, turn-of-the-century Victorian home offers a rare blend of historic charm and modern luxury, placing Denver’s most sought-after shops, restaurants, and outdoor spaces within moments of your front door. Inside, the home’s enchanting storybook character is perfectly preserved while integrating thoughtful, contemporary updates. At the heart of the home is a fully renovated kitchen, featuring sleek finishes, exposed brick, and a functional layout designed for both seamless everyday living and entertaining. Adding to the home’s versatility, a main-level room can serve as a flexible office or a fourth bedroom. Upstairs, a rare and functional layout provides exceptional comfort. The expansive primary bedroom offers ample space for a king-sized setup, an impressive five closets for superior storage, and newly extended hardwood flooring. Two additional bedrooms and a refreshed full bathroom complete the upper level. Experience Colorado outdoor living with a large, fenced-in backyard —the perfect setting for entertaining, relaxation, or play. A recently built two-car detached garage adds unparalleled convenience uncommonly found in homes of this vintage era. Extensive updates ensure both peace of mind and modern comfort, including a full kitchen remodel, added 2-car garage, new furnace, new hot water heater, updated plumbing and electrical, attic insulation, new windows, new fixtures throughout, an updated fireplace with a new gas insert, and new washer, dryer, and refrigerator. This home masterfully blends its historic pedigree with essential modern amenities. Offering exceptional access to Sloan’s Lake and 32nd Avenue, this residence provides more than just a place to live—it offers a coveted lifestyle in one of Denver’s most desirable neighborhoods.
Property Details
Price:
$985,000
MLS #:
REC5936030
Status:
Coming Soon
Beds:
4
Baths:
2
Type:
Single Family
Subtype:
Single Family Residence
Subdivision:
Sloan’s Lake
Finished Sq Ft:
1,898
Total Sq Ft:
2,462
Lot Size:
5,073 sqft / 0.12 acres (approx)
Year Built:
1905
Schools
School District:
Denver 1
Elementary School:
Brown
Middle School:
Strive Lake
High School:
North
Interior
Above Grade Finished Area
1898
Appliances
Cooktop, Dishwasher, Disposal, Dryer, Microwave, Oven, Refrigerator, Washer
Bathrooms
1 Full Bathroom, 1 Three Quarter Bathroom
Below Grade Unfinished Area
564
Cooling
Central Air
Fireplaces Total
1
Flooring
Carpet, Tile, Wood
Heating
Forced Air, Natural Gas
Interior Features
Breakfast Bar, Ceiling Fan(s), Entrance Foyer, Granite Counters, Walk-In Closet(s)
Laundry Features
In Unit
Levels
Two
Main Level Bathrooms
1
Main Level Bedrooms
1
Exterior
Architectural Style
Victorian
Construction Materials
Brick, Frame, Other
Direction Faces
West
Exterior Features
Lighting, Private Yard, Rain Gutters
Fencing
Full
Garage Spaces
2
Lot Features
Level, Sprinklers In Front, Sprinklers In Rear
Parking Spots
2
Parking Total
2
Patio And Porch Features
Covered, Front Porch, Patio
Roof
Composition
Window Features
Window Coverings
Financial
Tax Year
2024
Taxes
$4,846
Map
Contact Us
Mortgage Calculator
Property Summary
- Located in the Sloan’s Lake subdivision, 2446 Irving Street Denver CO is a Single Family for sale in Denver, CO, 80211. It is listed for $985,000 and features 4 beds, 2 baths, and has approximately 1,898 square feet of living space, and was originally constructed in 1905. The current price per square foot is $519. The average price per square foot for Single Family listings in Denver is $424. The average listing price for Single Family in Denver is $1,010,663. To schedule a showing of MLS#rec5936030 at 2446 Irving Street in Denver, CO, contact your Smart Sale AI agent at 3039066915.
Similar Listings Nearby
Additional Details
MLS # : REC5936030
Listing Key : REC2053458879
Parcel Number : 2322-10-042
Zip Code : 80211
City : Denver
State : CO
Building if Condo :
Street : 2446 Irving Street
Address : 2446
Address Prefix :
Address Suffix : Street
Unit if Condo :
Latitude : 39.753204
Longitude : -105.029503
Property Type : singlefamily
Property Sub Type : Single Family Residence
Stories Total if Condo :
Lot Size : 5,073 sqft / 0.12 acres (approx)
Ownership : Agent Owner
Zoning : U-TU-C
Condition : Updated/Remodeled
Renovation :
Pets Allowed :
Special Conditions : None
Possession : Closing/DOD
Original Price :
Close Price :
Close Date :
List Date : Apr 17, 2026
List Contract Date :
Off Market Date :
Purchase Contract Date :
Days on Market : 1
Concessions Amount :
Concession Comment :

Copyright 2026. All rights reserved.
2446 Irving Street
Denver, CO









































