4677 E Hampden Avenue Denver CO 80222 MLS #REC8468694
A Must-see For Any Mid-Mod Enthusiast!
Experience a rare architectural gem — a mid-century modern masterpiece in Denver’s University Hills Neighborhood. This is a custom-built mid-mod home from 1956, created by a distinguished interior designer whose work spanned New York, Washington DC, and Denver. This 3,600+ sq ft residence rests on a 9,370 sq ft lot near Wellshire Golf Course, blending timeless design with exceptional craftsmanship.
Inside, discover 4 bedrooms and 3 baths, including a main-floor primary suite that offers convenience and privacy. The open great room showcases vaulted, beamed knotty-pine ceilings, inlaid flagstone floors, and gallery walls bathed in light from seven stained-glass windows and four bottle-glass panels. A dramatic floating red-stone staircase and two handcrafted fireplaces define the home’s unique mid-mod and art-deco artistry and warmth.
The main kitchen is an entertainer’s showpiece, featuring solid birch cabinetry crafted from a single tree, mirrored cabinet fronts, a copper-hooded cooking island, stainless-steel counters, and hand-poured resin dividers with botanical inlays — each element reflecting bespoke mid-century design.
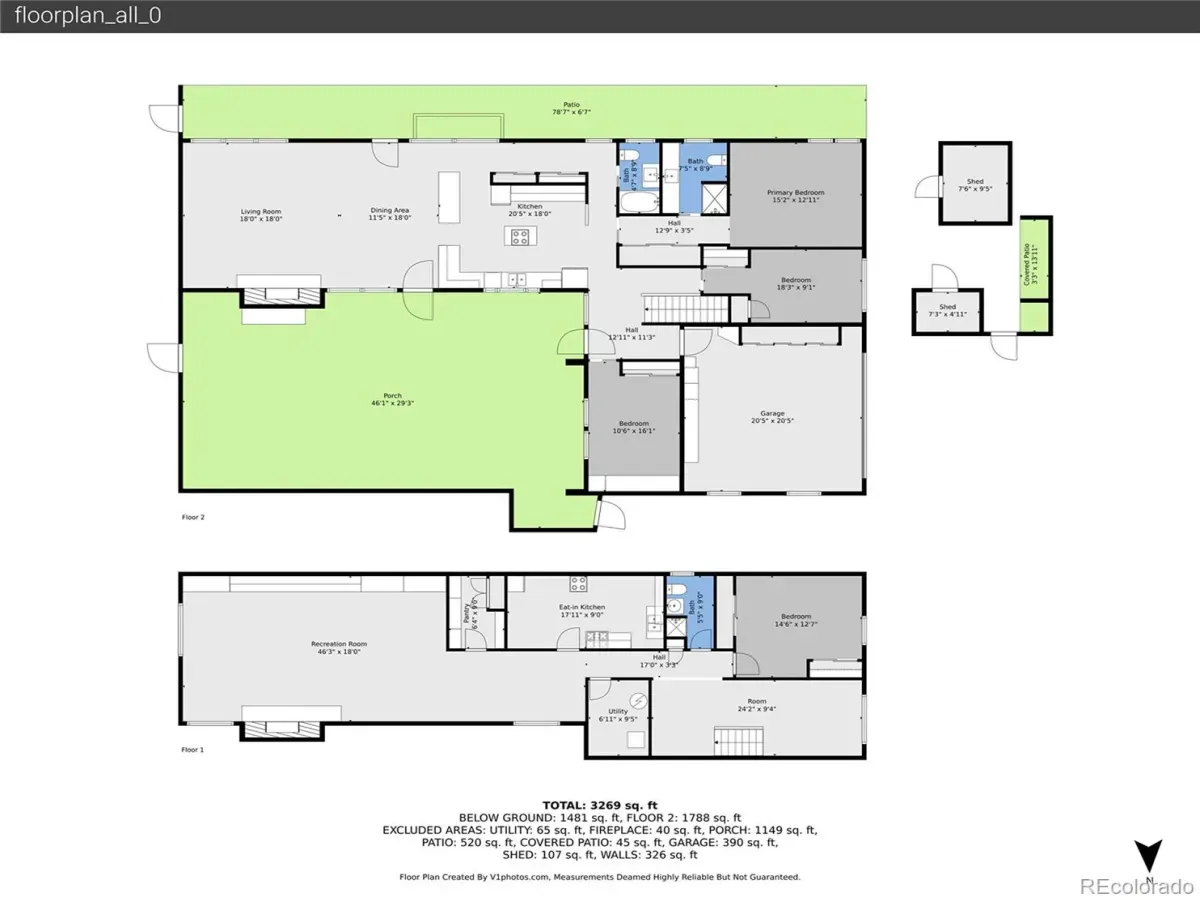
The lower level includes a vintage summer kitchen, a spacious recreation room with a hand-painted floor by a Norwegian artist, a flexible studio/guest room, and a ¾ bath — perfect for multi-generational living or creative use.
Outdoors, bonsai-style junipers and mature landscaping create a sculpted, low-maintenance retreat that mirrors the home’s architectural precision. Additional highlights include double-pane casement windows, solid walnut exterior doors, two-car garage with cedar storage, and hot-water heating with industrial pump.
As one of the earliest homes in University Hills, this residence stands as a true Denver mid-century architectural treasure.
Experience a rare architectural gem — a mid-century modern masterpiece in Denver’s University Hills Neighborhood. This is a custom-built mid-mod home from 1956, created by a distinguished interior designer whose work spanned New York, Washington DC, and Denver. This 3,600+ sq ft residence rests on a 9,370 sq ft lot near Wellshire Golf Course, blending timeless design with exceptional craftsmanship.
Inside, discover 4 bedrooms and 3 baths, including a main-floor primary suite that offers convenience and privacy. The open great room showcases vaulted, beamed knotty-pine ceilings, inlaid flagstone floors, and gallery walls bathed in light from seven stained-glass windows and four bottle-glass panels. A dramatic floating red-stone staircase and two handcrafted fireplaces define the home’s unique mid-mod and art-deco artistry and warmth.
The main kitchen is an entertainer’s showpiece, featuring solid birch cabinetry crafted from a single tree, mirrored cabinet fronts, a copper-hooded cooking island, stainless-steel counters, and hand-poured resin dividers with botanical inlays — each element reflecting bespoke mid-century design.
The lower level includes a vintage summer kitchen, a spacious recreation room with a hand-painted floor by a Norwegian artist, a flexible studio/guest room, and a ¾ bath — perfect for multi-generational living or creative use.
Outdoors, bonsai-style junipers and mature landscaping create a sculpted, low-maintenance retreat that mirrors the home’s architectural precision. Additional highlights include double-pane casement windows, solid walnut exterior doors, two-car garage with cedar storage, and hot-water heating with industrial pump.
As one of the earliest homes in University Hills, this residence stands as a true Denver mid-century architectural treasure.
Property Details
Price:
$900,000
MLS #:
REC8468694
Status:
Active
Beds:
4
Baths:
3
Type:
Single Family
Subtype:
Single Family Residence
Subdivision:
University Hills
Finished Sq Ft:
3,680
Total Sq Ft:
3,680
Lot Size:
9,370 sqft / 0.22 acres (approx)
Year Built:
1956
Schools
School District:
Denver 1
Elementary School:
Bradley
Middle School:
Hamilton
High School:
Thomas Jefferson
Interior
Above Grade Finished Area
1925
Appliances
Cooktop, Dishwasher, Disposal, Oven, Range, Range Hood, Refrigerator
Bathrooms
1 Full Bathroom, 2 Three Quarter Bathrooms
Below Grade Finished Area
1579
Below Grade Unfinished Area
176
Cooling
Central Air
Flooring
Carpet, Concrete, Laminate, Tile, Wood
Heating
Hot Water
Interior Features
Built-in Features, High Ceilings, In-Law Floorplan, Kitchen Island, Open Floorplan, Primary Suite, Stainless Counters, Vaulted Ceiling(s)
Levels
One
Main Level Bathrooms
2
Main Level Bedrooms
3
Exterior
Architectural Style
Mid-Century Modern
Attached Garage YN
1
Common Walls
No Common Walls
Construction Materials
Brick, Wood Siding
Direction Faces
South
Exterior Features
Garden, Private Yard
Fencing
Partial
Garage Spaces
2
Lot Features
Level
Parking Spots
2
Parking Total
2
Patio And Porch Features
Patio
Roof
Tar/Gravel
Security Features
Security Entrance
Window Features
Double Pane Windows
Financial
Tax Year
2024
Taxes
$3,817
Map
Contact Us
Mortgage Calculator
Property Summary
- Located in the University Hills subdivision, 4677 E Hampden Avenue Denver CO is a Single Family for sale in Denver, CO, 80222. It is listed for $900,000 and features 4 beds, 3 baths, and has approximately 3,680 square feet of living space, and was originally constructed in 1956. The current price per square foot is $245. The average price per square foot for Single Family listings in Denver is $401. The average listing price for Single Family in Denver is $994,202. To schedule a showing of MLS#rec8468694 at 4677 E Hampden Avenue in Denver, CO, contact your Smart Sale AI agent at 3039066915.
Similar Listings Nearby
Additional Details
MLS ID : REC8468694
Listing Key : REC2049924430
Parcel Number : 6313-30-017
Zip Code : 80222
City : Denver
State : CO
Building if Condo :
Full Street: 4677 E Hampden Avenue
Address : 4677
Address Prefix :
Address Suffix : Avenue
Street : Hampden
Street Prefix : E
Street Suffix :
Unit if Condo :
Latitude : 39.653252
Longitude : -104.933037
Property Type : singlefamily
Property Sub Type : Single Family Residence
Stories Total if Condo :
Lot Size : 9,370 sqft / 0.22 acres (approx)
Ownership : Individual
Zoning : E-SU-DX
Condition :
Renovation :
Pets Allowed :
Special Conditions : None
Possession : Closing/DOD
Original Price : 948000
Close Price :
Close Date :
List Date : Oct 2, 2025
List Contract Date : 2025-10-02
Off Market Date :
Purchase Contract Date :
Days on Market : 235
Concessions Amount :
Concession Comment :
Renovation :
Company : Keller Williams Advantage Realty LLC

Copyright 2026. All rights reserved.
4677 E Hampden Avenue
Denver, CO


















































