4565 E Mexico Avenue #32 Denver CO 80222 MLS #REC5975437
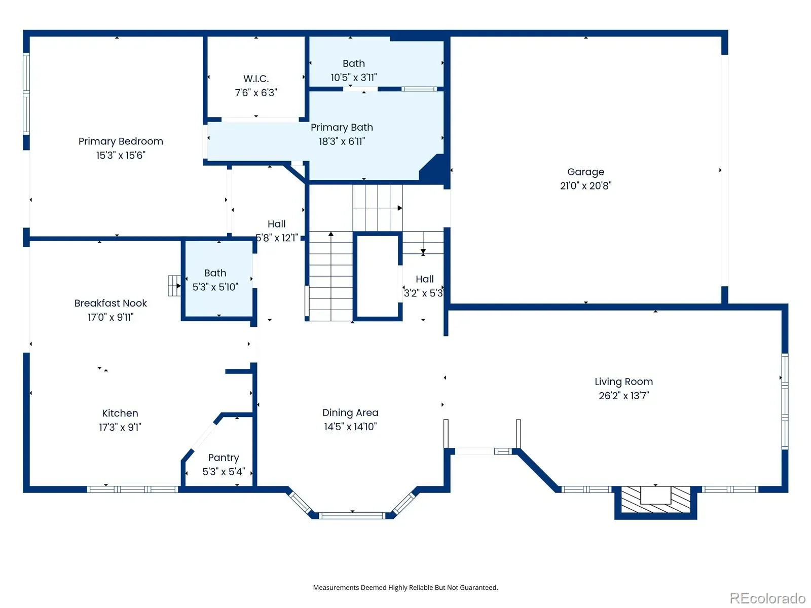
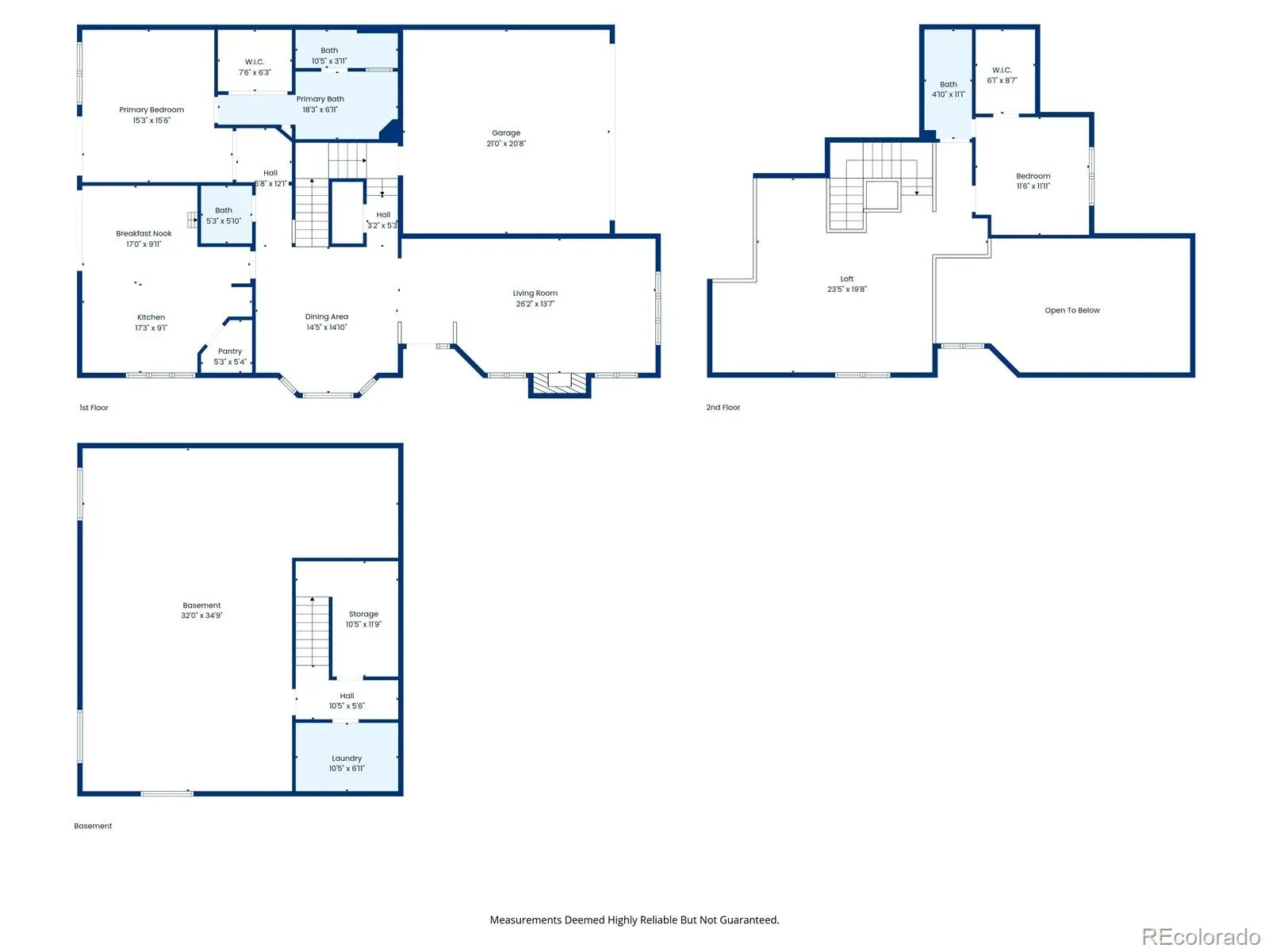
Now empty as is ready for you to move in. This exceptional home in the highly desirable Central Park community offers a rare opportunity to own in an intimate enclave of just 33 homes. Lovingly maintained by its original owner since construction, this residence combines comfort, thoughtful design, and a convenient location with quick access to I25 while maintaining a peaceful setting. The home features a welcoming partial brick exterior and a secluded entry that opens into a bright interior. The main level showcases wood flooring and carpet, tile in the bathrooms, vaulted ceilings, abundant natural light from southern and western exposure windows. The spacious living room with a cozy gas fireplace flows seamlessly into the dining area and an impressive kitchen perfect for everyday living and entertaining. The kitchen offers an eat-in area, center island, pantry, and ample cabinet space. The main-floor primary suite provides a private retreat with direct access to the backyard. The five-piece primary bathroom and large walk-in closet create a spa-like experience. Upstairs, you’ll find a generous second bedroom with its own bathroom and a versatile loft area that can serve as a home office, reading space, or additional living area. The basement includes a finished laundry room and a spacious unfinished utility area ideal for storage or future expansion. With multiple egress windows and rough-in plumbing for a bathroom, the space offers excellent potential to add additional living space. The garage provides abundant storage, while the outdoor area is designed for low-maintenance living. Enjoy a deck just off the kitchen—perfect for grilling—along with artificial turf, a peaceful rock garden, and shaded backyard spaces. The HOA covers select exterior and front yard maintenance, private road upkeep, and snow removal for driveways and sidewalks. Central Park is a hidden gem with mature landscaping and prime location close to shopping, dining, and major commuter routes.
Property Details
Price:
$725,000
MLS #:
REC5975437
Status:
Active
Beds:
2
Baths:
3
Type:
Single Family
Subtype:
Single Family Residence
Subdivision:
Virginia Village
Finished Sq Ft:
3,320
Total Sq Ft:
3,320
Lot Size:
4,050 sqft / 0.09 acres (approx)
Year Built:
1987
Schools
School District:
Denver 1
Elementary School:
Ellis
Middle School:
Merrill
High School:
South
Interior
Above Grade Finished Area
2200
Appliances
Cooktop, Dishwasher, Disposal, Dryer, Freezer, Gas Water Heater, Microwave, Oven, Refrigerator, Washer
Bathrooms
2 Full Bathrooms, 1 Half Bathroom
Below Grade Unfinished Area
1120
Cooling
Attic Fan, Central Air
Fireplaces Total
1
Flooring
Carpet, Tile, Wood
Heating
Forced Air, Hot Water, Natural Gas
Interior Features
Breakfast Bar, Eat-in Kitchen, High Ceilings, High Speed Internet, Open Floorplan, Pantry, Primary Suite, Smoke Free, Vaulted Ceiling(s), Walk-In Closet(s)
Laundry Features
In Unit
Levels
Two
Main Level Bathrooms
2
Main Level Bedrooms
1
Exterior
Architectural Style
Traditional
Association Amenities
Garden Area
Attached Garage YN
1
Construction Materials
Brick, Concrete, Frame, Wood Siding
Direction Faces
East
Exterior Features
Garden, Lighting, Private Yard, Rain Gutters
Fencing
Partial
Garage Spaces
2
Lot Features
Cul-De-Sac, Landscaped, Level, Secluded, Sprinklers In Front, Sprinklers In Rear
Parking Features
Lighted
Parking Spots
2
Parking Total
2
Patio And Porch Features
Deck
Roof
Stone-Coated Steel
Security Features
Smoke Detector(s)
View
City
Window Features
Skylight(s), Window Coverings, Window Treatments
Financial
HOA Fee
$315
HOA Fee Frequency
Monthly
HOA Includes
Reserves, Road Maintenance, Snow Removal
HOA Name
entral Park Homeowners Association
HOA Phone
303-420-4433
Tax Year
2024
Taxes
$2,984
Map
Contact Us
Mortgage Calculator
Property Summary
- Located in the Virginia Village subdivision, 4565 E Mexico Avenue #32 Denver CO is a Single Family for sale in Denver, CO, 80222. It is listed for $725,000 and features 2 beds, 3 baths, and has approximately 3,320 square feet of living space, and was originally constructed in 1987. The current price per square foot is $218. The average price per square foot for Single Family listings in Denver is $400. The average listing price for Single Family in Denver is $993,881. To schedule a showing of MLS#rec5975437 at 4565 E Mexico Avenue #32 in Denver, CO, contact your Smart Sale AI agent at 3039066915.
Similar Listings Nearby
Additional Details
MLS ID : REC5975437
Listing Key : REC2052086207
Parcel Number : 6193-08-032
Zip Code : 80222
City : Denver
State : CO
Building if Condo : Central Park
Full Street: 4565 E Mexico Avenue #32
Address : 4565
Address Prefix :
Address Suffix : Avenue
Street : Mexico
Street Prefix : E
Street Suffix :
Unit if Condo : 32
Latitude : 39.686295
Longitude : -104.934776
Property Type : singlefamily
Property Sub Type : Single Family Residence
Stories Total if Condo :
Lot Size : 4,050 sqft / 0.09 acres (approx)
Ownership : Individual
Zoning : R-1
Condition :
Renovation :
Pets Allowed : Cats OK,Dogs OK
Special Conditions : None
Possession : Closing/DOD
Original Price : 770000
Close Price :
Close Date :
List Date : Mar 12, 2026
List Contract Date : 2026-03-12
Off Market Date :
Purchase Contract Date :
Days on Market : 74
Concessions Amount :
Concession Comment :
Renovation :
Company : Central Park Real Estate LLC

Copyright 2026. All rights reserved.
4565 E Mexico Avenue #32
Denver, CO































