1310 S Corona Street Denver CO 80210 MLS #REC1754821
1310 S Corona Street
Denver, CO, 80210
$3,750,000
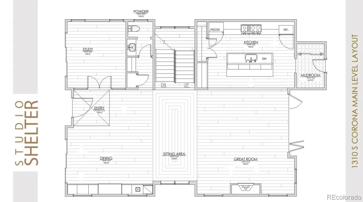
Property is currently under construction with an estimated completion in approximately 5–7 months, weather and construction timelines permitting. This exceptional modern home by JD Homes showcases refined design and thoughtful craftsmanship throughout, featuring a very open layout ideal for both everyday living and entertaining. The residence offers a total of 6 bedrooms and 7 bathrooms (5 full, 1 three-quarter, and 1 half), including a detached 3-car garage with a 2-bedroom ADU above, providing flexibility for multi-generational living or additional income potential.
High-end finishes and custom details are evident in every space, creating a polished yet welcoming feel. The great room seamlessly connects to the covered patio through a folding glass door system, enhancing indoor-outdoor living. The home also features four Marvin 3-panel 9-foot doors, bringing in abundant natural light and elevating the overall design. The well-designed layout blends functionality with elevated design, offering spacious living areas and seamless flow throughout the home.
This home is Smart Home Ready, prewired for motorized shades, strong internet connectivity, in-ceiling speakers, security cameras, DMF lighting, and more.
Buyer incentives and customization options are available—buyers who get involved early or go under contract sooner will have greater flexibility to personalize finishes and selections.
High-end finishes and custom details are evident in every space, creating a polished yet welcoming feel. The great room seamlessly connects to the covered patio through a folding glass door system, enhancing indoor-outdoor living. The home also features four Marvin 3-panel 9-foot doors, bringing in abundant natural light and elevating the overall design. The well-designed layout blends functionality with elevated design, offering spacious living areas and seamless flow throughout the home.
This home is Smart Home Ready, prewired for motorized shades, strong internet connectivity, in-ceiling speakers, security cameras, DMF lighting, and more.
Buyer incentives and customization options are available—buyers who get involved early or go under contract sooner will have greater flexibility to personalize finishes and selections.
Property Details
Price:
$3,750,000
MLS #:
REC1754821
Status:
Coming Soon
Beds:
6
Baths:
7
Type:
Single Family
Subtype:
Single Family Residence
Subdivision:
Washington Park West
Finished Sq Ft:
5,880
Total Sq Ft:
5,880
Lot Size:
6,098 sqft / 0.14 acres (approx)
Year Built:
2026
Schools
School District:
Denver 1
Elementary School:
Steele
Middle School:
Merrill
High School:
South
Interior
Above Grade Finished Area
4191
Appliances
Bar Fridge, Convection Oven, Cooktop, Dishwasher, Disposal, Freezer, Microwave, Oven, Range, Range Hood, Refrigerator, Self Cleaning Oven, Smart Appliance(s), Wine Cooler
Bathrooms
5 Full Bathrooms, 1 Three Quarter Bathroom, 1 Half Bathroom
Below Grade Finished Area
1689
Cooling
Central Air
Fireplaces Total
4
Flooring
Tile, Vinyl, Wood
Heating
Forced Air, Natural Gas
Interior Features
Audio/Video Controls, Breakfast Bar, Built-in Features, Ceiling Fan(s), Eat-in Kitchen, Entrance Foyer, Five Piece Bath, High Ceilings, High Speed Internet, Pantry, Primary Suite, Quartz Counters, Sauna, Smart Ceiling Fan, Smart Light(s), Smart Thermostat, Smart Window Coverings, Walk-In Closet(s), Wet Bar, Wired for Data
Laundry Features
In Unit
Levels
Two
Main Level Bathrooms
1
Exterior
Architectural Style
Contemporary
Construction Materials
Concrete, Frame, Metal Siding, Other, Stone, Steel Siding, Stucco, Wood Siding
Exterior Features
Balcony, Private Yard
Fencing
Full
Garage Spaces
3
Green Energy Efficient
Appliances, Construction, HVAC, Insulation, Lighting, Thermostat, Water Heater, Windows
Lot Features
Level, Open Space
Parking Features
220 Volts, Finished Garage, Floor Coating, Lighted, Oversized, Oversized Door, Smart Garage Door
Parking Spots
3
Parking Total
3
Patio And Porch Features
Covered, Deck, Front Porch, Patio
Roof
Shingle, Composition, Metal
Security Features
Carbon Monoxide Detector(s), Radon Detector, Smart Cameras, Smart Locks, Smart Security System, Smoke Detector(s), Video Doorbell
Spa Features
Steam Room
Window Features
Double Pane Windows, Egress Windows, Triple Pane Windows
Financial
Tax Year
2024
Taxes
$4,464
Map
Contact Us
Mortgage Calculator
Property Summary
- Located in the Washington Park West subdivision, 1310 S Corona Street Denver CO is a Single Family for sale in Denver, CO, 80210. It is listed for $3,750,000 and features 6 beds, 7 baths, and has approximately 5,880 square feet of living space, and was originally constructed in 2026. The current price per square foot is $638. The average price per square foot for Single Family listings in Denver is $424. The average listing price for Single Family in Denver is $1,010,663. To schedule a showing of MLS#rec1754821 at 1310 S Corona Street in Denver, CO, contact your Smart Sale AI agent at 3039066915.
Similar Listings Nearby
Additional Details
MLS # : REC1754821
Listing Key : REC2053412302
Parcel Number : 5232-16-002
Zip Code : 80210
City : Denver
State : CO
Building if Condo :
Street : 1310 S Corona Street
Address : 1310
Address Prefix :
Address Suffix : Street
Unit if Condo :
Latitude : 39.692703
Longitude : -104.974373
Property Type : singlefamily
Property Sub Type : Single Family Residence
Stories Total if Condo :
Lot Size : 6,098 sqft / 0.14 acres (approx)
Ownership : Builder
Zoning : U-SU-C
Condition : New Construction
Renovation :
Pets Allowed : Yes
Special Conditions : None
Possession : See Remarks
Original Price :
Close Price :
Close Date :
List Date : Apr 15, 2026
List Contract Date :
Off Market Date :
Purchase Contract Date :
Days on Market : 3
Concessions Amount :
Concession Comment :

Copyright 2026. All rights reserved.
1310 S Corona Street
Denver, CO
























