855 S Yates Street Denver CO 80219 MLS #REC4455354
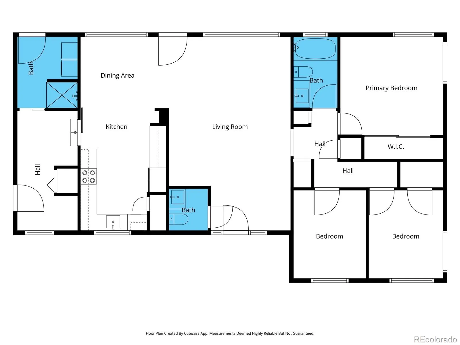
Set on just under half an acre in Denver, this property offers something that’s increasingly hard to find—space, function, and the ability to live differently, without giving up proximity to the city. Tucked into a location with easy access to Belmar, Highway 6, and major commuting routes, you’re connected when you need it—yet the moment you step into the backyard, it feels like you’ve left the city behind. This 3-bedroom, 2.5-bath ranch delivers true single-level living with an open layout that brings together a spacious family room, dining area, and kitchen. Real hardwood floors add warmth throughout the main living space, while large and newer vinyl windows bring in consistent natural light. The kitchen has been thoughtfully updated with white shaker cabinetry, quartz countertops, stainless steel appliances, and soft-close drawers, creating a clean, functional space that works for both everyday living and hosting. What sets this home apart is the land and what it allows you to do with it. The fully fenced lot includes a garden, greenhouse, chicken coop and run, fruit trees (apple, plum, choke cherry), strawberry patch, raspberry plants, comfrey, rhubarb, and perennial herbs—already established and ready to support a true urban homestead or hobby farm lifestyle. A covered patio with sun shades creates a natural extension of the living space, designed for gathering, relaxing, and enjoying the setting.
Inside, flexibility continues with a mudroom off the garage that can double as a home office or additional storage, a laundry area with added shower functionality, and built-in storage throughout the home. System updates—including a newer furnace (2019), newer water heater, whole house fan, and updated windows—provide confidence in the home’s ongoing performance.
This is a property for someone who sees the opportunity—space to grow, room to create, and a lifestyle that’s hard to replicate anywhere else in Denver.
Inside, flexibility continues with a mudroom off the garage that can double as a home office or additional storage, a laundry area with added shower functionality, and built-in storage throughout the home. System updates—including a newer furnace (2019), newer water heater, whole house fan, and updated windows—provide confidence in the home’s ongoing performance.
This is a property for someone who sees the opportunity—space to grow, room to create, and a lifestyle that’s hard to replicate anywhere else in Denver.
Property Details
Price:
$500,000
MLS #:
REC4455354
Status:
Active
Beds:
3
Baths:
3
Type:
Single Family
Subtype:
Single Family Residence
Subdivision:
Westwood
Finished Sq Ft:
1,547
Total Sq Ft:
1,547
Lot Size:
18,000 sqft / 0.41 acres (approx)
Year Built:
1952
Schools
School District:
Denver 1
Elementary School:
Force
Middle School:
Strive Westwood
High School:
John F. Kennedy
Interior
Above Grade Finished Area
1547
Appliances
Dishwasher, Disposal, Dryer, Gas Water Heater, Microwave, Range, Refrigerator, Washer
Bathrooms
1 Full Bathroom, 2 Half Bathrooms
Cooling
Air Conditioning-Room, Attic Fan
Flooring
Tile, Wood
Heating
Forced Air
Interior Features
Open Floorplan, Smoke Free
Laundry Features
In Unit
Levels
One
Main Level Bathrooms
3
Main Level Bedrooms
3
Exterior
Architectural Style
Traditional
Attached Garage YN
1
Construction Materials
Frame, Vinyl Siding, Wood Siding
Exterior Features
Garden, Lighting, Private Yard, Rain Gutters
Fencing
Full
Garage Spaces
1
Lot Features
Level
Parking Features
Concrete, Exterior Access Door, Lighted, Storage
Parking Spots
4
Parking Total
4
Patio And Porch Features
Covered, Front Porch, Patio
Roof
Unknown
Security Features
Carbon Monoxide Detector(s), Smoke Detector(s)
Financial
Tax Year
2024
Taxes
$2,647
Map
Contact Us
Mortgage Calculator
Property Summary
- Located in the Westwood subdivision, 855 S Yates Street Denver CO is a Single Family for sale in Denver, CO, 80219. It is listed for $500,000 and features 3 beds, 3 baths, and has approximately 1,547 square feet of living space, and was originally constructed in 1952. The current price per square foot is $323. The average price per square foot for Single Family listings in Denver is $423. The average listing price for Single Family in Denver is $1,010,297. To schedule a showing of MLS#rec4455354 at 855 S Yates Street in Denver, CO, contact your Smart Sale AI agent at 3039066915.
Similar Listings Nearby
Additional Details
MLS # : REC4455354
Listing Key : REC2053258600
Parcel Number : 5183-15-014
Zip Code : 80219
City : Denver
State : CO
Building if Condo :
Street : 855 S Yates Street
Address : 855
Address Prefix :
Address Suffix : Street
Unit if Condo :
Latitude : 39.701000
Longitude : -105.051857
Property Type : singlefamily
Property Sub Type : Single Family Residence
Stories Total if Condo :
Lot Size : 18,000 sqft / 0.41 acres (approx)
Ownership : Individual
Zoning : E-SU-D
Condition : Updated/Remodeled
Renovation :
Pets Allowed :
Special Conditions : None
Possession : Close Plus 30 to 60 Days,Negotiable
Original Price : 500000
Close Price :
Close Date :
List Date : Apr 22, 2026
List Contract Date : 2026-04-22
Off Market Date :
Purchase Contract Date :
Days on Market : 0
Concessions Amount :
Concession Comment :

Copyright 2026. All rights reserved.
855 S Yates Street
Denver, CO










































