850 Holland Street Lakewood CO 80215 MLS #REC4512435
Classic Eiber neighborhood home with mid-century character and room to spread out. Ten minutes to Downtown Denver, close to Golden, and a short walk to beautiful Holbrook Park. Quick access to Bel-Mar shopping and Light Rail too.
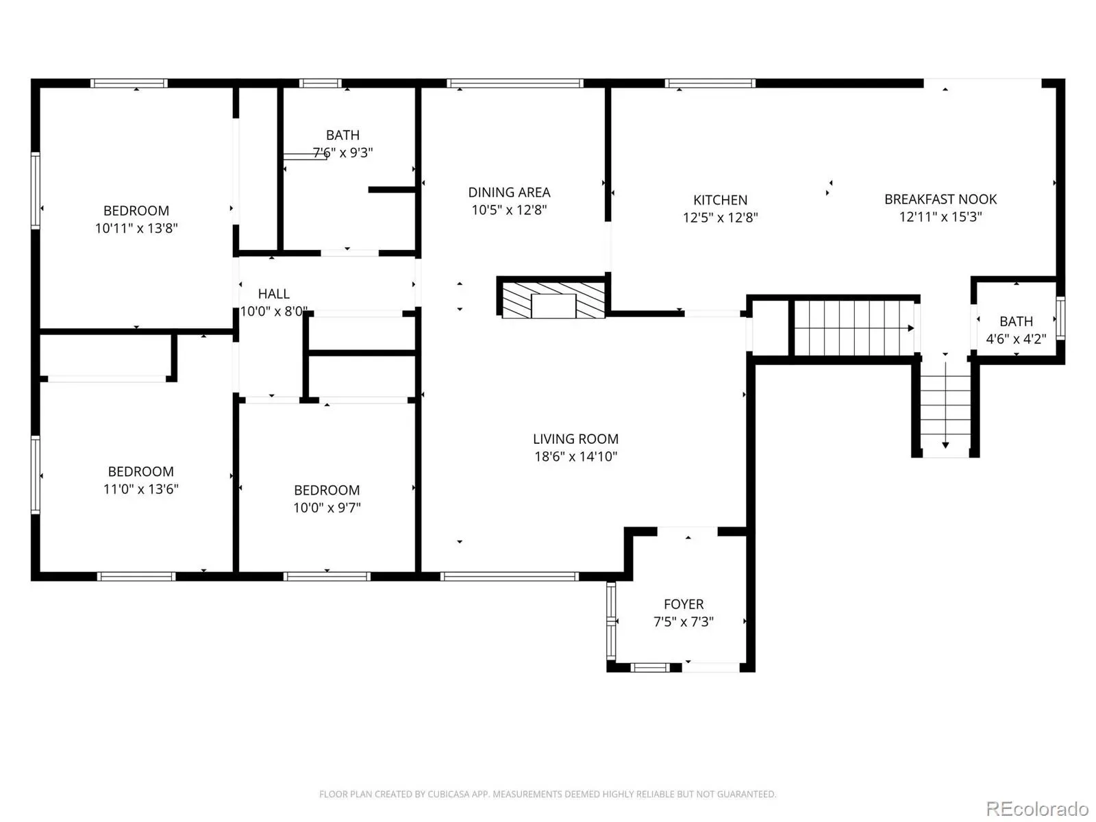
The main floor has original hardwood, a wood burning fireplace, three bedrooms, and great natural light from the oversized windows. The kitchen was updated with new countertops, fresh backsplash, new appliances and plumbing fixtures, and floor to ceiling cabinets. Two dining areas make it a great space for entertaining.
The large primary suite is its own retreat. Remodeled shower, walk in closet, and a private balcony worth spending time on.
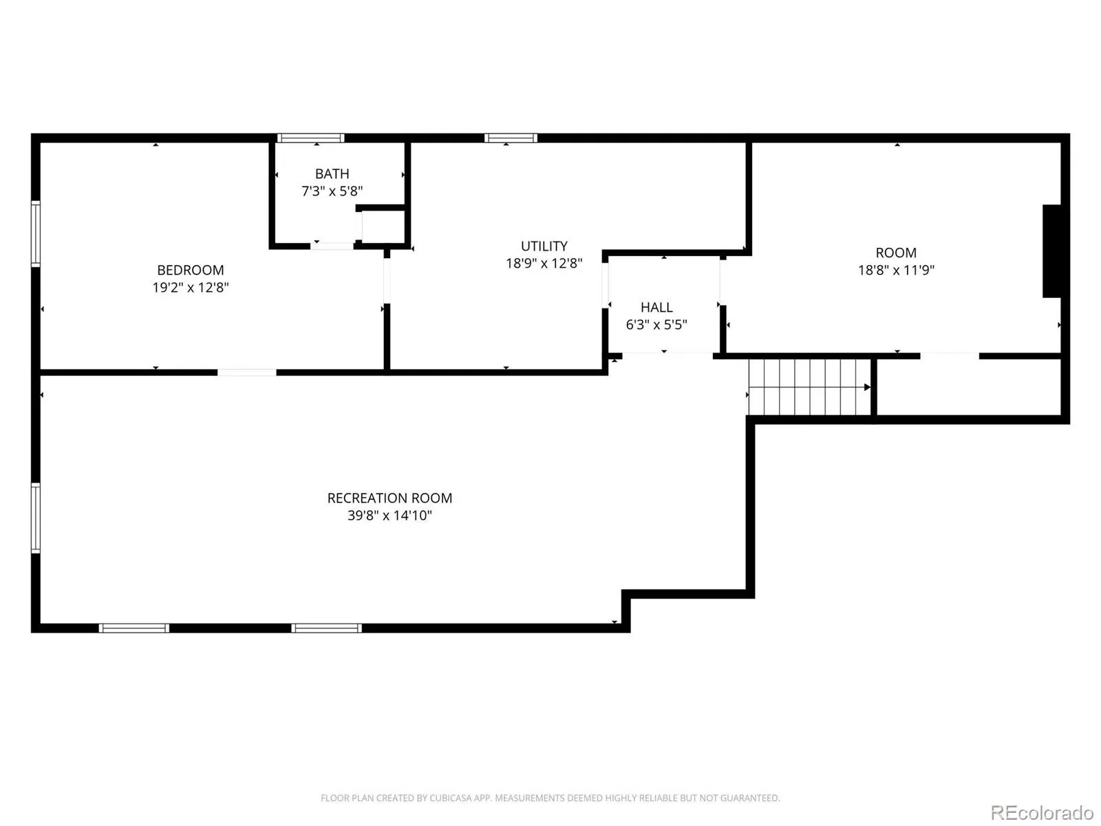
The basement boasts new carpet throughout, a spacious family room with wet bar, a guest suite, and a large bonus room ready for a home gym, office, or whatever fits your life.
Big backyard with new French doors and two gate entries. This one has been well cared for and it shows. No HOA.
The main floor has original hardwood, a wood burning fireplace, three bedrooms, and great natural light from the oversized windows. The kitchen was updated with new countertops, fresh backsplash, new appliances and plumbing fixtures, and floor to ceiling cabinets. Two dining areas make it a great space for entertaining.
The large primary suite is its own retreat. Remodeled shower, walk in closet, and a private balcony worth spending time on.
The basement boasts new carpet throughout, a spacious family room with wet bar, a guest suite, and a large bonus room ready for a home gym, office, or whatever fits your life.
Big backyard with new French doors and two gate entries. This one has been well cared for and it shows. No HOA.
Property Details
Price:
$775,000
MLS #:
REC4512435
Status:
Active Under Contract
Beds:
5
Baths:
4
Type:
Single Family
Subtype:
Single Family Residence
Subdivision:
Lakewood Village
Finished Sq Ft:
3,293
Total Sq Ft:
3,293
Lot Size:
9,148 sqft / 0.21 acres (approx)
Year Built:
1955
Schools
School District:
Jefferson County R-1
Elementary School:
Eiber
Middle School:
Creighton
High School:
Lakewood
Interior
Above Grade Finished Area
2022
Appliances
Cooktop, Dishwasher, Disposal, Oven, Refrigerator
Bathrooms
1 Full Bathroom, 2 Three Quarter Bathrooms, 1 Half Bathroom
Below Grade Finished Area
1144
Below Grade Unfinished Area
127
Cooling
Evaporative Cooling
Fireplaces Total
1
Flooring
Carpet, Tile, Wood
Heating
Baseboard, Radiant
Interior Features
Ceiling Fan(s), Eat-in Kitchen, Entrance Foyer, Pantry, Primary Suite, Walk-In Closet(s), Wet Bar
Laundry Features
Sink, In Unit
Levels
Multi/Split
Main Level Bathrooms
2
Main Level Bedrooms
3
Exterior
Architectural Style
Mid-Century Modern
Attached Garage YN
1
Construction Materials
Brick, Wood Siding
Direction Faces
West
Exterior Features
Balcony, Private Yard
Fencing
Full
Garage Spaces
2
Lot Features
Level, Sloped
Parking Features
Asphalt
Parking Spots
2
Parking Total
2
Patio And Porch Features
Deck, Patio
Roof
Composition
Security Features
Carbon Monoxide Detector(s), Smoke Detector(s)
Financial
Tax Year
2024
Taxes
$3,695
Map
Contact Us
Mortgage Calculator
Property Summary
- Located in the Lakewood Village subdivision, 850 Holland Street Lakewood CO is a Single Family for sale in Lakewood, CO, 80215. It is listed for $775,000 and features 5 beds, 4 baths, and has approximately 3,293 square feet of living space, and was originally constructed in 1955. The current price per square foot is $235. The average price per square foot for Single Family listings in Lakewood is $325. The average listing price for Single Family in Lakewood is $796,026. To schedule a showing of MLS#rec4512435 at 850 Holland Street in Lakewood, CO, contact your Smart Sale AI agent at 3039066915.
Similar Listings Nearby
Additional Details
MLS ID : REC4512435
Listing Key : REC2052252887
Parcel Number : 055014
Zip Code : 80215
City : Lakewood
State : CO
Building if Condo :
Full Street: 850 Holland Street
Address : 850
Address Prefix :
Address Suffix : Street
Street : Holland
Street Prefix :
Street Suffix :
Unit if Condo :
Latitude : 39.729870
Longitude : -105.103104
Property Type : singlefamily
Property Sub Type : Single Family Residence
Stories Total if Condo :
Lot Size : 9,148 sqft / 0.21 acres (approx)
Ownership : Individual
Zoning : R-1
Condition :
Renovation :
Pets Allowed :
Special Conditions : None
Possession : Closing/DOD
Original Price : 790000
Close Price :
Close Date :
List Date : Mar 25, 2026
List Contract Date : 2026-03-25
Off Market Date : 2026-05-04
Purchase Contract Date : 2026-05-04
Days on Market : 62
Concessions Amount :
Concession Comment :
Renovation :
Company : RealGroup, LLC

Copyright 2026. All rights reserved.
850 Holland Street
Lakewood, CO

































