395 Ammons Street Lakewood CO 80226 MLS #REC6761598
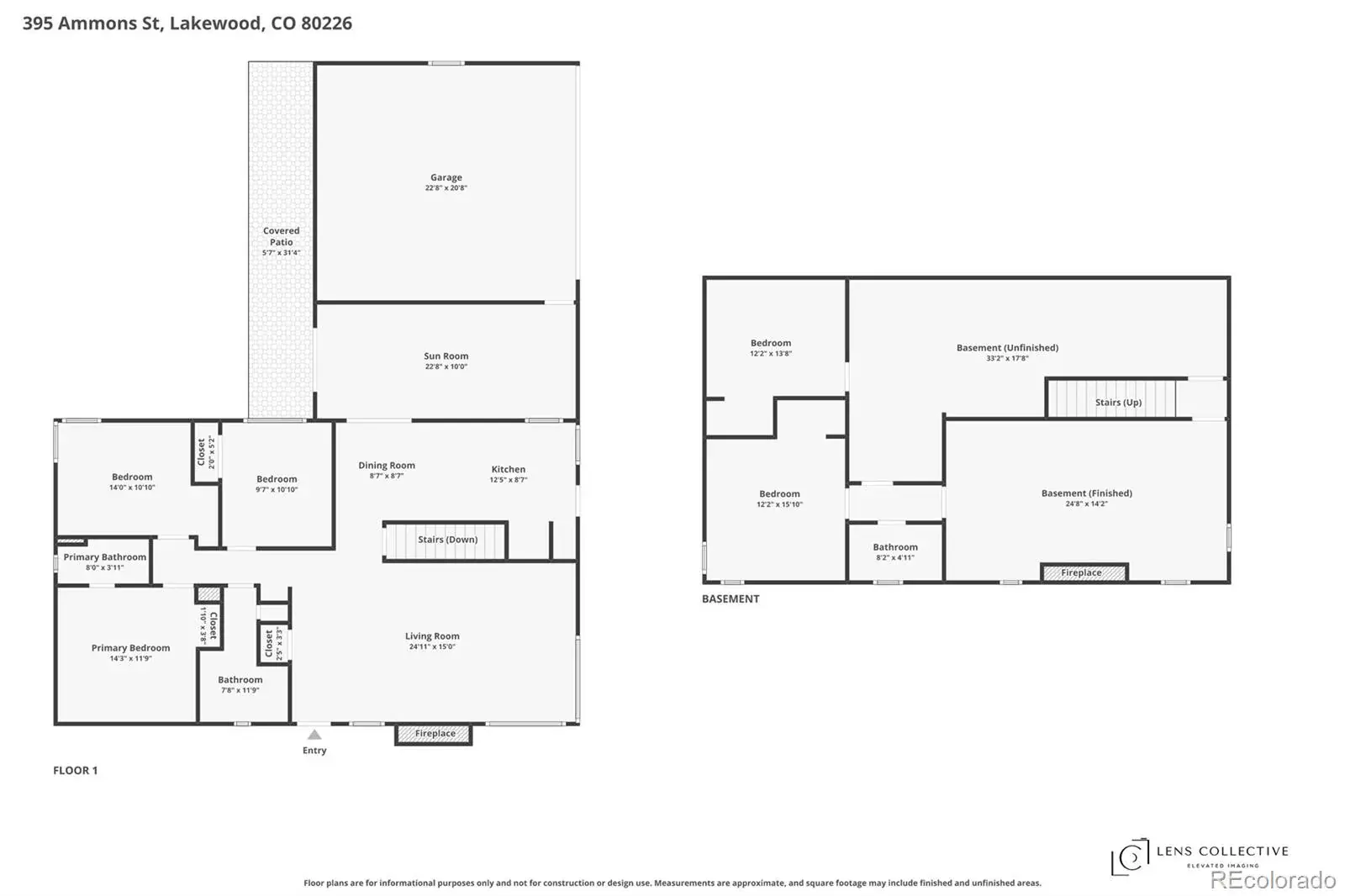
Welcome to this spacious updated ranch-style home ideally located just minutes from the vibrant shopping, dining, and entertainment of Belmar. Situated on an oversized lot of nearly 0.4 acres, this home offers the perfect blend of space, comfort, and convenience. With many modern updates including a fully finished basement this five bedroom, three bathroom home provides plenty of room for everyday living, entertaining, or multigenerational flexibility. The main level offers a functional layout with abundant natural light, a spacious living area with fireplace, and an eat-in kitchen perfect for gathering. A fully finished basement expands the living space with additional bedrooms, recreation potential, and storage. Outside, the expansive yard provides endless opportunities for gardening, outdoor entertaining, or future customization. With an attached two-car garage, mature landscaping, and easy access to parks, light rail, and downtown Denver, this Lakewood gem combines classic character with an unbeatable location.
Property Details
Price:
$744,900
MLS #:
REC6761598
Status:
Active Under Contract
Beds:
5
Baths:
3
Type:
Single Family
Subtype:
Single Family Residence
Subdivision:
Meadowlark
Finished Sq Ft:
1,316
Total Sq Ft:
2,632
Lot Size:
16,361 sqft / 0.38 acres (approx)
Year Built:
1956
Schools
School District:
Jefferson County R-1
Elementary School:
South Lakewood
Middle School:
Creighton
High School:
Lakewood
Interior
Above Grade Finished Area
1316
Appliances
Cooktop, Dishwasher, Disposal, Dryer, Freezer, Oven, Range, Refrigerator, Washer
Bathrooms
3 Full Bathrooms
Below Grade Unfinished Area
1316
Cooling
Central Air
Fireplaces Total
2
Flooring
Carpet, Tile, Wood
Heating
Forced Air, Solar
Interior Features
Pantry, Smoke Free
Laundry Features
In Unit
Levels
One
Main Level Bathrooms
2
Main Level Bedrooms
3
Exterior
Architectural Style
Traditional
Attached Garage YN
1
Construction Materials
Brick, Frame
Exterior Features
Fire Pit, Garden, Private Yard
Fencing
Full
Garage Spaces
2
Lot Features
Corner Lot, Near Public Transit, Sprinklers In Front, Sprinklers In Rear
Parking Spots
2
Parking Total
2
Patio And Porch Features
Patio
Roof
Composition
Security Features
Carbon Monoxide Detector(s), Smoke Detector(s)
Window Features
Double Pane Windows, Skylight(s)
Financial
Tax Year
2024
Taxes
$3,715
Map
Contact Us
Mortgage Calculator
Property Summary
- Located in the Meadowlark subdivision, 395 Ammons Street Lakewood CO is a Single Family for sale in Lakewood, CO, 80226. It is listed for $744,900 and features 5 beds, 3 baths, and has approximately 1,316 square feet of living space, and was originally constructed in 1956. The current price per square foot is $566. The average price per square foot for Single Family listings in Lakewood is $356. The average listing price for Single Family in Lakewood is $809,434. To schedule a showing of MLS#rec6761598 at 395 Ammons Street in Lakewood, CO, contact your Smart Sale AI agent at 3039066915.
Similar Listings Nearby
Additional Details
MLS # : REC6761598
Listing Key : REC2052441650
Parcel Number : 055868
Zip Code : 80226
City : Lakewood
State : CO
Building if Condo :
Street : 395 Ammons Street
Address : 395
Address Prefix :
Address Suffix : Street
Unit if Condo :
Latitude : 39.721928
Longitude : -105.087334
Property Type : singlefamily
Property Sub Type : Single Family Residence
Stories Total if Condo :
Lot Size : 16,361 sqft / 0.38 acres (approx)
Ownership : Individual
Zoning :
Condition :
Renovation :
Pets Allowed :
Special Conditions : None
Possession :
Original Price : 744900
Close Price :
Close Date :
List Date : Mar 5, 2026
List Contract Date : 2026-03-05
Off Market Date : 2026-03-19
Purchase Contract Date : 2026-03-19
Days on Market : 44
Concessions Amount :
Concession Comment :

Copyright 2026. All rights reserved.
395 Ammons Street
Lakewood, CO


















































