6174 S Prince Street Littleton CO 80120 MLS #REC6774300
Unbeatable land and location!! Step into a rare and delightful slice of Littleton history—this beautifully remodeled former blacksmith’s home effortlessly blends timeless character with fresh, modern upgrades in all the right ways. Set on an expansive and truly rare 1/3-acre lot, you’re just a scenic 9-minute stroll from the charm, dining, and energy of Downtown Littleton.
Inside, high ceilings and lovingly preserved historic details create a bright, welcoming atmosphere. The fully remodeled kitchen shines with butcher block countertops and brand-new vintage-style appliances (2026, never used), making it as inviting as it is functional—perfect for everything from quiet mornings to lively gatherings. Thoughtful updates throughout—including a new roof with high-impact shingles (hello, insurance savings!), updated electrical panel, refreshed plumbing, a beautifully remodeled bathroom, and plush new carpet—offer peace of mind and effortless comfort.
With a massive 2-car garage, 300 sq ft of basement storage, and easy access to parks, trails, ACC, and Bemis Library, this home is filled with opportunity, charm, and everyday joy. It’s more than a place to live—it’s a place to love.
Inside, high ceilings and lovingly preserved historic details create a bright, welcoming atmosphere. The fully remodeled kitchen shines with butcher block countertops and brand-new vintage-style appliances (2026, never used), making it as inviting as it is functional—perfect for everything from quiet mornings to lively gatherings. Thoughtful updates throughout—including a new roof with high-impact shingles (hello, insurance savings!), updated electrical panel, refreshed plumbing, a beautifully remodeled bathroom, and plush new carpet—offer peace of mind and effortless comfort.
With a massive 2-car garage, 300 sq ft of basement storage, and easy access to parks, trails, ACC, and Bemis Library, this home is filled with opportunity, charm, and everyday joy. It’s more than a place to live—it’s a place to love.
Property Details
Price:
$599,000
MLS #:
REC6774300
Status:
Pending
Beds:
2
Baths:
1
Type:
Single Family
Subtype:
Single Family Residence
Subdivision:
Windermere Gallups
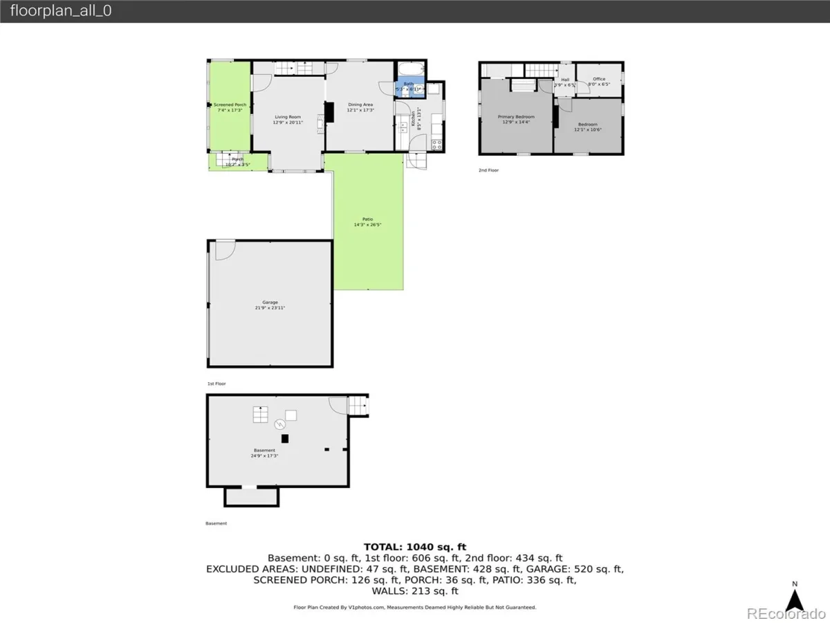
Finished Sq Ft:
1,124
Total Sq Ft:
1,124
Lot Size:
13,939 sqft / 0.32 acres (approx)
Year Built:
1901
Schools
School District:
Littleton 6
Elementary School:
Little Raven
Middle School:
Euclid
High School:
Littleton
Interior
Above Grade Finished Area
1124
Appliances
Dishwasher, Dryer, Range, Refrigerator, Washer
Bathrooms
1 Full Bathroom
Cooling
Central Air
Flooring
Carpet, Tile, Wood
Heating
Natural Gas
Interior Features
Butcher Counters, Ceiling Fan(s), High Ceilings, High Speed Internet, Smoke Free
Levels
Two
Main Level Bathrooms
1
Exterior
Architectural Style
Victorian
Construction Materials
Frame, Wood Siding
Direction Faces
West
Fencing
Partial
Garage Spaces
2
Green Energy Efficient
Appliances
Lot Features
Level, Many Trees
Parking Features
Gravel
Parking Spots
2
Parking Total
2
Patio And Porch Features
Covered, Front Porch, Patio
Roof
Composition
Security Features
Carbon Monoxide Detector(s), Smoke Detector(s), Video Doorbell
View
Mountain(s)
Window Features
Double Pane Windows
Financial
Tax Year
2025
Taxes
$2,395
Map
Contact Us
Mortgage Calculator
Property Summary
- Located in the Windermere Gallups subdivision, 6174 S Prince Street Littleton CO is a Single Family for sale in Littleton, CO, 80120. It is listed for $599,000 and features 2 beds, 1 baths, and has approximately 1,124 square feet of living space, and was originally constructed in 1901. The current price per square foot is $533. The average price per square foot for Single Family listings in Littleton is $315. The average listing price for Single Family in Littleton is $1,028,473. To schedule a showing of MLS#rec6774300 at 6174 S Prince Street in Littleton, CO, contact your Smart Sale AI agent at 3039066915.
Similar Listings Nearby
Additional Details
MLS ID : REC6774300
Listing Key : REC2052849350
Parcel Number : 032092548
Zip Code : 80120
City : Littleton
State : CO
Building if Condo :
Full Street: 6174 S Prince Street
Address : 6174
Address Prefix :
Address Suffix : Street
Street : Prince
Street Prefix : S
Street Suffix :
Unit if Condo :
Latitude : 39.604679
Longitude : -105.015938
Property Type : singlefamily
Property Sub Type : Single Family Residence
Stories Total if Condo :
Lot Size : 13,939 sqft / 0.32 acres (approx)
Ownership : Agent Owner
Zoning :
Condition : Updated/Remodeled
Renovation :
Pets Allowed :
Special Conditions : None
Possession : Closing/DOD,Negotiable
Original Price : 609000
Close Price :
Close Date :
List Date : Mar 26, 2026
List Contract Date : 2026-03-26
Off Market Date : 2026-05-24
Purchase Contract Date : 2026-05-24
Days on Market : 61
Concessions Amount :
Concession Comment :
Renovation :
Company : High Ridge Realty

Copyright 2026. All rights reserved.
6174 S Prince Street
Littleton, CO






























