11747 Newport Street Thornton CO 80233 MLS #REC5976862
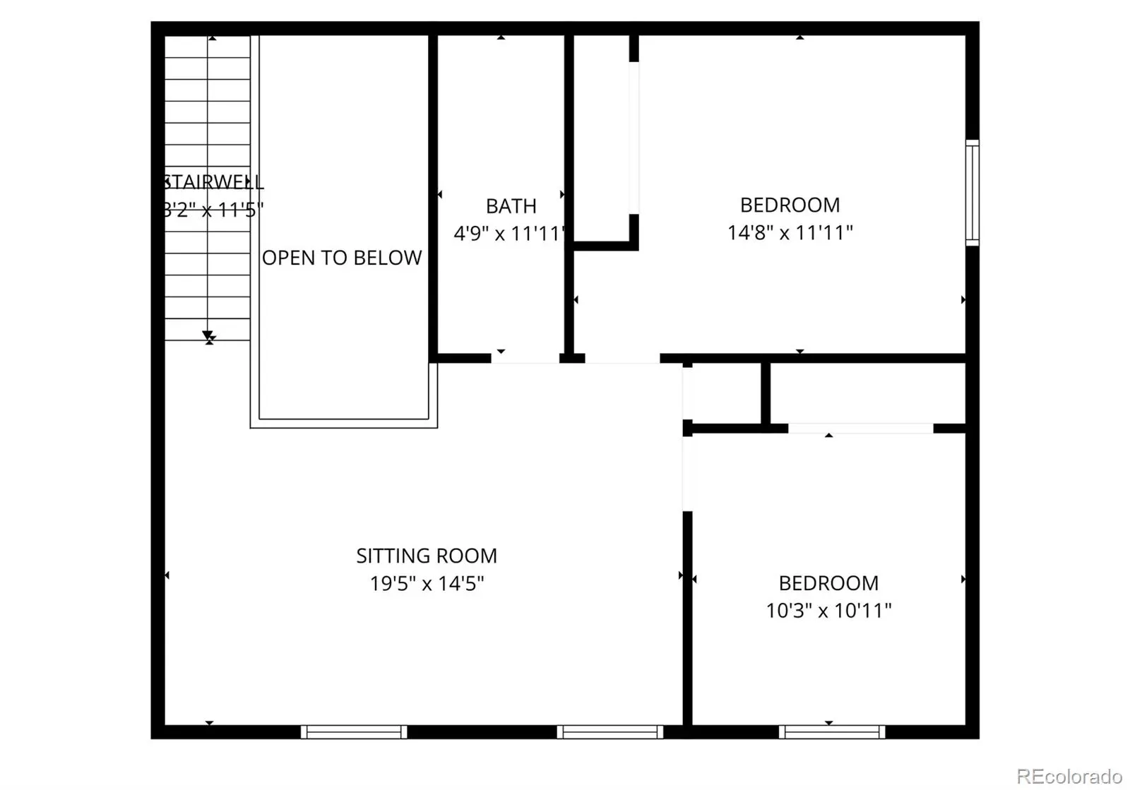
Experience the pinnacle of turnkey modern and luxury in this truly one-of-a-kind residence, where a distinctive architectural layout meets exceptional value. Thoughtfully designed for both efficiency and elegance, the home is equipped with solar panels and a premium water softener system—delivering comfort, sustainability, and long-term savings. From the moment you step inside, you’re welcomed by an abundance of natural light and soaring vaulted ceilings that create a grand and inviting foyer. Spanning just a little under 5,000 square feet, this expansive home offers five generously sized bedrooms, providing ample space for both everyday living and hosting guests. The main level features a spacious primary suite complete with a luxurious five-piece en-suite bath—your own private retreat. Also on the main floor you’ll find two spacious bedrooms with a full bathroom, a dedicated home office, along with an open-concept layout that seamlessly connects the kitchen and living areas, ideal for entertaining and daily gatherings. Upstairs, you’ll find a versatile loft space and two additional well-appointed bedrooms, offering flexibility for a variety of lifestyles. But wait, there’s more! For those seeking to expand, the massive unfinished basement offers a little over 2,000 square feet of pristine space, ready to be customized to your vision. Step outside into your private backyard oasis—perfect for relaxing, entertaining, and enjoying warm summer evenings with family and friends. This is a rare opportunity to own a designer-curated, eco-conscious home where every detail has been thoughtfully completed for you. Schedule your tour today!
Property Details
Price:
$749,900
MLS #:
REC5976862
Status:
Active
Beds:
5
Baths:
4
Type:
Single Family
Subtype:
Single Family Residence
Subdivision:
Mayfield
Finished Sq Ft:
2,912
Total Sq Ft:
4,919
Lot Size:
9,919 sqft / 0.23 acres (approx)
Year Built:
2020
Schools
School District:
Adams 12 5 Star Schl
Elementary School:
Glacier Peak
Middle School:
Shadow Ridge
High School:
Thornton
Interior
Above Grade Finished Area
2912
Appliances
Dishwasher, Disposal, Dryer, Microwave, Oven, Range, Refrigerator, Washer
Bathrooms
3 Full Bathrooms, 1 Half Bathroom
Below Grade Unfinished Area
2007
Cooling
Central Air
Fireplaces Total
1
Flooring
Carpet, Tile, Wood
Heating
Forced Air, Natural Gas
Levels
Two
Main Level Bathrooms
3
Main Level Bedrooms
3
Exterior
Association Amenities
Park, Playground
Attached Garage YN
1
Construction Materials
Cement Siding, Frame, Stone
Exterior Features
Gas Valve, Private Yard, Rain Gutters
Fencing
Full
Garage Spaces
3
Lot Features
Near Public Transit, Sprinklers In Front
Parking Features
Tandem
Parking Spots
3
Parking Total
3
Patio And Porch Features
Covered, Patio
Roof
Composition
Security Features
Carbon Monoxide Detector(s), Security System, Smoke Detector(s)
Window Features
Double Pane Windows
Financial
HOA Fee
$150
HOA Fee Frequency
Included in Property Tax
HOA Name
Mayfield Metropolitan District
HOA Phone
303-987-0835
Tax Year
2025
Taxes
$8,239
Map
Contact Us
Mortgage Calculator
Property Summary
- Located in the Mayfield subdivision, 11747 Newport Street Thornton CO is a Single Family for sale in Thornton, CO, 80233. It is listed for $749,900 and features 5 beds, 4 baths, and has approximately 2,912 square feet of living space, and was originally constructed in 2020. The current price per square foot is $258. The average price per square foot for Single Family listings in Thornton is $282. The average listing price for Single Family in Thornton is $615,324. To schedule a showing of MLS#rec5976862 at 11747 Newport Street in Thornton, CO, contact your Smart Sale AI agent at 3039066915.
Similar Listings Nearby
Additional Details
MLS # : REC5976862
Listing Key : REC2052875649
Parcel Number : R0183671
Zip Code : 80233
City : Thornton
State : CO
Building if Condo :
Street : 11747 Newport Street
Address : 11747
Address Prefix :
Address Suffix : Street
Unit if Condo :
Latitude : 39.910271
Longitude : -104.909241
Property Type : singlefamily
Property Sub Type : Single Family Residence
Stories Total if Condo :
Lot Size : 9,919 sqft / 0.23 acres (approx)
Ownership : Individual
Zoning :
Condition :
Renovation :
Pets Allowed :
Special Conditions : None
Possession : Closing/DOD
Original Price : 749900
Close Price :
Close Date :
List Date : Mar 30, 2026
List Contract Date : 2026-03-30
Off Market Date :
Purchase Contract Date :
Days on Market : 18
Concessions Amount :
Concession Comment :

Copyright 2026. All rights reserved.
11747 Newport Street
Thornton, CO














































