6822 Arbor E Boulevard Thornton CO 80602 MLS #REC6492737
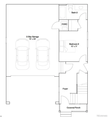
Welcome to the Skyline Collection by Lennar! This beautifully designed three-story Visage home blends modern style with everyday functionality. The main level features a private secondary bedroom suite—ideal for guests or multi-generational living.
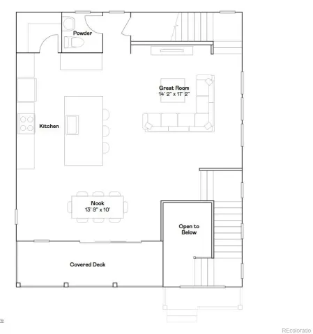
Upstairs, the second level showcases a bright, open-concept layout where the Great Room, kitchen, and dining area connect effortlessly—perfect for both entertaining and daily living. Step outside through sliding glass doors to a covered deck, offering a great space to unwind or host gatherings. The top floor includes three additional bedrooms, highlighted by the spacious owner’s suite with a relaxing retreat, en-suite bath, and walk-in closet. A conveniently located laundry room on this level adds to the home’s thoughtful design. Enjoy a prime location with easy access to shopping and dining at Denver Premium Outlets, as well as recreation at Trail Winds Recreation Center. Estimated completion:October 2026.
Upstairs, the second level showcases a bright, open-concept layout where the Great Room, kitchen, and dining area connect effortlessly—perfect for both entertaining and daily living. Step outside through sliding glass doors to a covered deck, offering a great space to unwind or host gatherings. The top floor includes three additional bedrooms, highlighted by the spacious owner’s suite with a relaxing retreat, en-suite bath, and walk-in closet. A conveniently located laundry room on this level adds to the home’s thoughtful design. Enjoy a prime location with easy access to shopping and dining at Denver Premium Outlets, as well as recreation at Trail Winds Recreation Center. Estimated completion:October 2026.
Property Details
Price:
$583,400
MLS #:
REC6492737
Status:
Active
Beds:
4
Baths:
4
Type:
Single Family
Subtype:
Single Family Residence
Subdivision:
Parterre
Finished Sq Ft:
2,235
Total Sq Ft:
2,235
Lot Size:
3,127 sqft / 0.07 acres (approx)
Year Built:
2026
Schools
School District:
School District 27-J
Elementary School:
Brantner
Middle School:
Roger Quist
High School:
Riverdale Ridge
Interior
Above Grade Finished Area
2235
Appliances
Dishwasher, Disposal, Microwave, Oven, Refrigerator
Bathrooms
2 Full Bathrooms, 1 Three Quarter Bathroom, 1 Half Bathroom
Cooling
Central Air
Flooring
Carpet, Vinyl
Heating
Forced Air
Interior Features
Breakfast Bar, Eat-in Kitchen, Entrance Foyer, High Ceilings, Kitchen Island, Open Floorplan, Pantry, Primary Suite, Quartz Counters, Walk-In Closet(s)
Levels
Tri-Level
Main Level Bathrooms
1
Exterior
Association Amenities
Garden Area, Park, Parking, Playground, Tennis Court(s), Trail(s)
Attached Garage YN
1
Construction Materials
Frame, Other, Stone
Exterior Features
Balcony, Rain Gutters
Garage Spaces
2
Parking Spots
2
Parking Total
2
Patio And Porch Features
Front Porch, Wrap Around
Roof
Composition
Security Features
Carbon Monoxide Detector(s), Smoke Detector(s)
Window Features
Double Pane Windows
Financial
HOA Fee
$145
HOA Fee Frequency
Monthly
HOA Includes
Recycling, Trash
HOA Name
Advanced HOA
HOA Phone
303-482-2213
Tax Year
2025
Taxes
$6,826
Map
Contact Us
Mortgage Calculator
Property Summary
- Located in the Parterre subdivision, 6822 Arbor E Boulevard Thornton CO is a Single Family for sale in Thornton, CO, 80602. It is listed for $583,400 and features 4 beds, 4 baths, and has approximately 2,235 square feet of living space, and was originally constructed in 2026. The current price per square foot is $261. The average price per square foot for Single Family listings in Thornton is $283. The average listing price for Single Family in Thornton is $613,636. To schedule a showing of MLS#rec6492737 at 6822 Arbor E Boulevard in Thornton, CO, contact your Smart Sale AI agent at 3039066915.
Similar Listings Nearby
Additional Details
MLS # : REC6492737
Listing Key : REC2053429424
Parcel Number : R0219022
Zip Code : 80602
City : Thornton
State : CO
Building if Condo :
Street : 6822 Arbor E Boulevard
Address : 6822
Address Prefix :
Address Suffix : Boulevard
Unit if Condo :
Latitude : 39.968353
Longitude : -104.907394
Property Type : singlefamily
Property Sub Type : Single Family Residence
Stories Total if Condo :
Lot Size : 3,127 sqft / 0.07 acres (approx)
Ownership : Builder
Zoning :
Condition : New Construction
Renovation :
Pets Allowed :
Special Conditions : None
Possession : Closing/DOD
Original Price : 643400
Close Price :
Close Date :
List Date : Apr 15, 2026
List Contract Date : 2026-04-15
Off Market Date :
Purchase Contract Date :
Days on Market : 3
Concessions Amount :
Concession Comment :

Copyright 2026. All rights reserved.
6822 Arbor E Boulevard
Thornton, CO











