6951 Arbor E Boulevard Thornton CO 80602 MLS #REC9172185
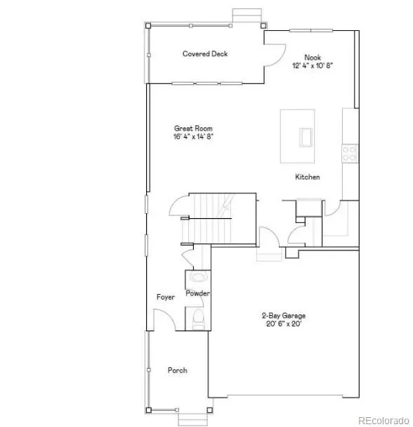
**Eligible for special financing – terms and conditions apply – ask for details**Enjoy elevated, low-maintenance living in this spacious two-story Meridian townhome. The main level features a chef-inspired kitchen that flows effortlessly into the dining area and Great Room—perfect for entertaining and everyday living—along with access to a covered deck ideal for relaxing or dining outdoors.
Upstairs, you’ll find three comfortable bedrooms, including a stunning primary suite with a spa-like bath and walk-in closet. A versatile loft offers space for a home office, playroom, or retreat, while the upstairs laundry room adds everyday convenience.
Stylish finishes like luxury vinyl plank flooring and quartz countertops create a modern feel throughout, and the unfinished basement offers room to grow. Located near Denver Premium Outlets and Trail Winds Recreation Center, this home combines comfort, convenience, and lifestyle in one exceptional setting. Estimated completion date is October 2026.
Upstairs, you’ll find three comfortable bedrooms, including a stunning primary suite with a spa-like bath and walk-in closet. A versatile loft offers space for a home office, playroom, or retreat, while the upstairs laundry room adds everyday convenience.
Stylish finishes like luxury vinyl plank flooring and quartz countertops create a modern feel throughout, and the unfinished basement offers room to grow. Located near Denver Premium Outlets and Trail Winds Recreation Center, this home combines comfort, convenience, and lifestyle in one exceptional setting. Estimated completion date is October 2026.
Property Details
Price:
$589,900
MLS #:
REC9172185
Status:
Active
Beds:
3
Baths:
3
Type:
Single Family
Subtype:
Single Family Residence
Subdivision:
Parterre
Finished Sq Ft:
2,161
Total Sq Ft:
2,978
Lot Size:
5,298 sqft / 0.12 acres (approx)
Year Built:
2026
Schools
School District:
School District 27-J
Elementary School:
West Ridge
Middle School:
Roger Quist
High School:
Riverdale Ridge
Interior
Above Grade Finished Area
2161
Appliances
Dishwasher, Disposal, Microwave, Oven, Refrigerator
Bathrooms
1 Full Bathroom, 1 Three Quarter Bathroom, 1 Half Bathroom
Below Grade Unfinished Area
817
Cooling
Central Air
Flooring
Carpet, Vinyl
Heating
Forced Air
Interior Features
Breakfast Bar, Eat-in Kitchen, Entrance Foyer, High Ceilings, Kitchen Island, Open Floorplan, Pantry, Primary Suite, Quartz Counters, Walk-In Closet(s)
Laundry Features
In Unit
Levels
Two
Main Level Bathrooms
1
Exterior
Association Amenities
Garden Area, Park, Parking, Playground, Tennis Court(s), Trail(s)
Attached Garage YN
1
Common Walls
1 Common Wall
Construction Materials
Frame, Other, Stone
Exterior Features
Rain Gutters
Garage Spaces
2
Parking Spots
2
Parking Total
2
Patio And Porch Features
Covered, Deck, Front Porch
Roof
Composition
Security Features
Carbon Monoxide Detector(s), Smoke Detector(s)
Window Features
Double Pane Windows
Financial
HOA Fee
$185
HOA Fee Frequency
Monthly
HOA Includes
Recycling, Trash
HOA Name
Advanced HOA
HOA Phone
303-482-2213
Tax Year
2025
Taxes
$6,254
Map
Contact Us
Mortgage Calculator
Property Summary
- Located in the Parterre subdivision, 6951 Arbor E Boulevard Thornton CO is a Single Family for sale in Thornton, CO, 80602. It is listed for $589,900 and features 3 beds, 3 baths, and has approximately 2,161 square feet of living space, and was originally constructed in 2026. The current price per square foot is $273. The average price per square foot for Single Family listings in Thornton is $283. The average listing price for Single Family in Thornton is $613,636. To schedule a showing of MLS#rec9172185 at 6951 Arbor E Boulevard in Thornton, CO, contact your Smart Sale AI agent at 3039066915.
Similar Listings Nearby
Additional Details
MLS # : REC9172185
Listing Key : REC2053057811
Parcel Number : R0218992
Zip Code : 80602
City : Thornton
State : CO
Building if Condo :
Street : 6951 Arbor E Boulevard
Address : 6951
Address Prefix :
Address Suffix : Boulevard
Unit if Condo :
Latitude : 39.969082
Longitude : -104.906265
Property Type : singlefamily
Property Sub Type : Single Family Residence
Stories Total if Condo :
Lot Size : 5,298 sqft / 0.12 acres (approx)
Ownership : Builder
Zoning :
Condition : New Construction
Renovation :
Pets Allowed :
Special Conditions : None
Possession : Closing/DOD
Original Price : 589900
Close Price :
Close Date :
List Date : Mar 31, 2026
List Contract Date : 2026-03-31
Off Market Date :
Purchase Contract Date :
Days on Market : 18
Concessions Amount :
Concession Comment :

Copyright 2026. All rights reserved.
6951 Arbor E Boulevard
Thornton, CO










