9168 Flower Court Westminster CO 80021 MLS #REC4311850
Well-maintained residence tucked into a quiet cul-de-sac in Kings Mill, a convenient and desirable location. This home offers a functional layout with comfortable living spaces, abundant natural light, and thoughtful updates throughout.
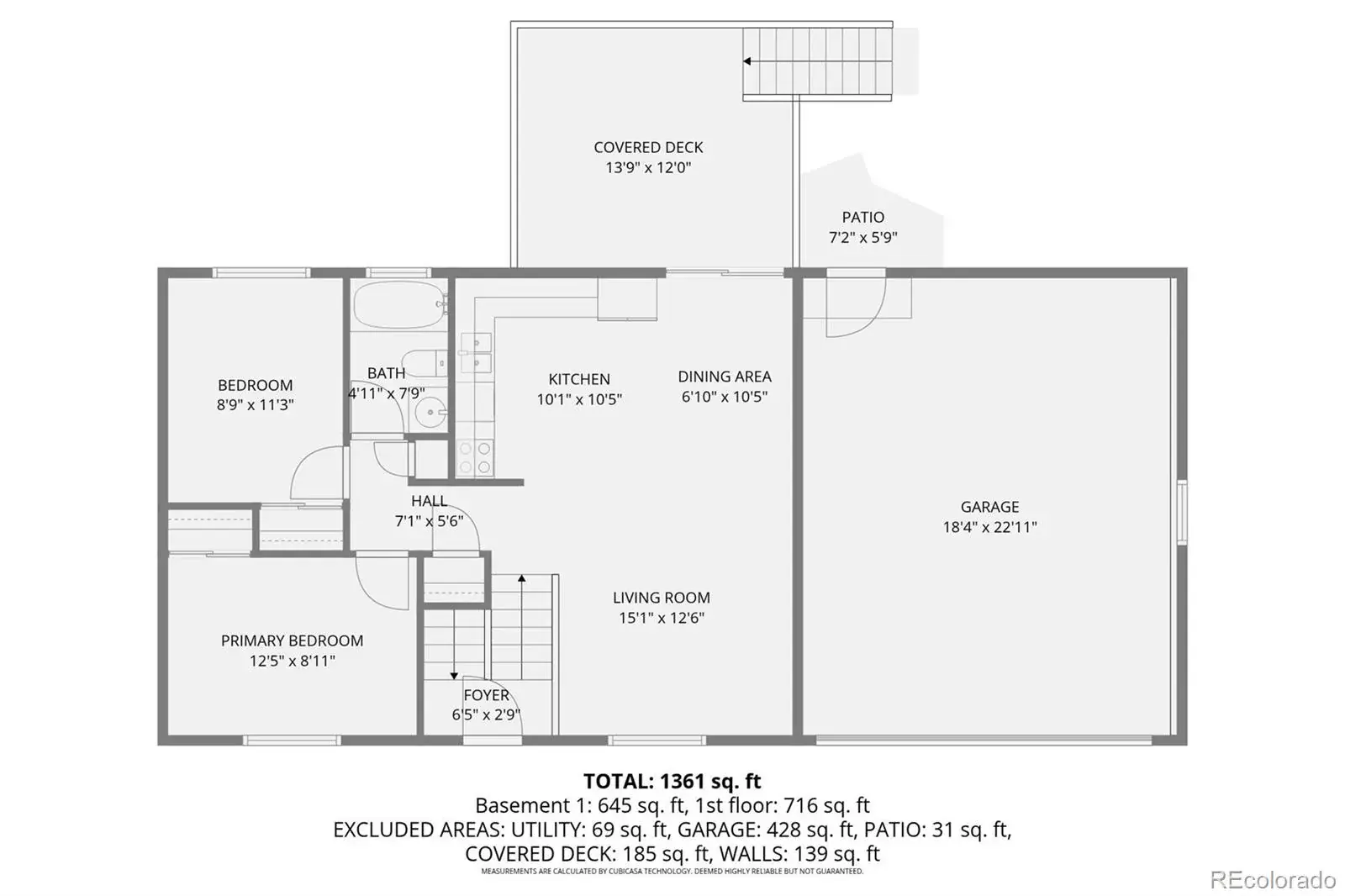
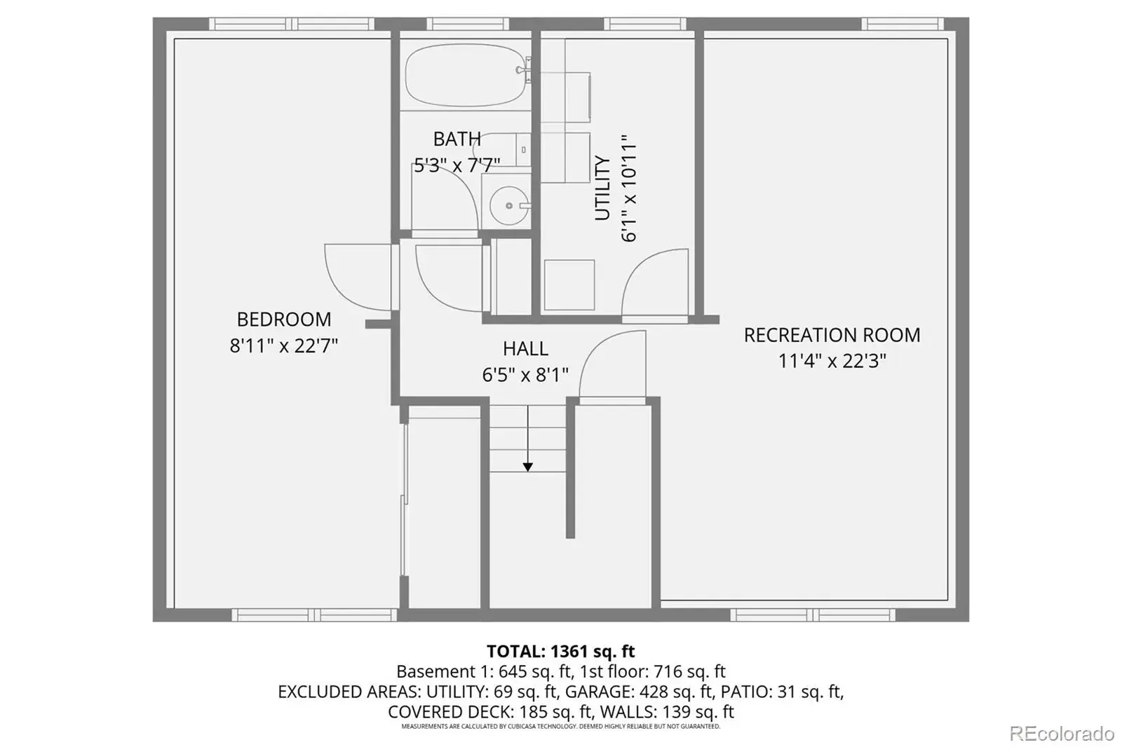
Three generously sized bedrooms and a downstairs entertainment room offer flexibility for families, guests, a home office, or hobby space.
The kitchen provides ample cabinetry and generous workspace, flowing into the dining and upstairs living area to support both the comfort of everyday life and the excitement of hosted gatherings. Extend the living space outdoors with a recently renovated, covered, Trex deck off the kitchen that creates a comfortable setting for dining, relaxing, or entertaining in multiple seasons. Its size and layout make it highly functional for both larger gatherings and quiet evenings at home. The deck overlooks a private, fully fenced, spacious backyard. Park-like in feel, it offers room for a range of needs and hobbies; from space for your pets to happily roam, to gardening or outdoor games.
The large two-car garage provides substantial room for vehicles, storage, tools, or recreational equipment, adding everyday practicality and organization. Additional storage is abundant throughout with ample closets and dedicated accessible under the stairs storage. The house’s grid-connected solar system will be fully paid off at closing, allowing the new owner to enjoy reduced electricity costs without assuming a lease or loan. With close proximity to parks, schools, Standley Lake, and a range of shopping and dining options, this property presents a balanced blend of comfort, efficiency, outdoor living, and location with convenient commuter routes to both Denver and Boulder.
Three generously sized bedrooms and a downstairs entertainment room offer flexibility for families, guests, a home office, or hobby space.
The kitchen provides ample cabinetry and generous workspace, flowing into the dining and upstairs living area to support both the comfort of everyday life and the excitement of hosted gatherings. Extend the living space outdoors with a recently renovated, covered, Trex deck off the kitchen that creates a comfortable setting for dining, relaxing, or entertaining in multiple seasons. Its size and layout make it highly functional for both larger gatherings and quiet evenings at home. The deck overlooks a private, fully fenced, spacious backyard. Park-like in feel, it offers room for a range of needs and hobbies; from space for your pets to happily roam, to gardening or outdoor games.
The large two-car garage provides substantial room for vehicles, storage, tools, or recreational equipment, adding everyday practicality and organization. Additional storage is abundant throughout with ample closets and dedicated accessible under the stairs storage. The house’s grid-connected solar system will be fully paid off at closing, allowing the new owner to enjoy reduced electricity costs without assuming a lease or loan. With close proximity to parks, schools, Standley Lake, and a range of shopping and dining options, this property presents a balanced blend of comfort, efficiency, outdoor living, and location with convenient commuter routes to both Denver and Boulder.
Property Details
Price:
$510,000
MLS #:
REC4311850
Status:
Active
Beds:
3
Baths:
2
Type:
Single Family
Subtype:
Single Family Residence
Subdivision:
Kings Mill
Finished Sq Ft:
1,568
Total Sq Ft:
1,568
Lot Size:
7,890 sqft / 0.18 acres (approx)
Year Built:
1973
Schools
School District:
Jefferson County R-1
Elementary School:
Lukas
Middle School:
Wayne Carle
High School:
Standley Lake
Interior
Above Grade Finished Area
1568
Bathrooms
2 Full Bathrooms
Cooling
Central Air
Flooring
Carpet, Tile
Heating
Forced Air
Laundry Features
In Unit
Levels
Bi-Level
Exterior
Architectural Style
Traditional
Attached Garage YN
1
Construction Materials
Frame, Other
Exterior Features
Garden, Private Yard
Fencing
Full
Garage Spaces
2
Lot Features
Cul-De-Sac, Level
Parking Spots
2
Parking Total
2
Patio And Porch Features
Covered, Deck
Roof
Composition
Financial
Tax Year
2024
Taxes
$2,421
Map
Contact Us
Mortgage Calculator
Property Summary
- Located in the Kings Mill subdivision, 9168 Flower Court Westminster CO is a Single Family for sale in Westminster, CO, 80021. It is listed for $510,000 and features 3 beds, 2 baths, and has approximately 1,568 square feet of living space, and was originally constructed in 1973. The current price per square foot is $325. The average price per square foot for Single Family listings in Westminster is $315. The average listing price for Single Family in Westminster is $741,971. To schedule a showing of MLS#rec4311850 at 9168 Flower Court in Westminster, CO, contact your Smart Sale AI agent at 3039066915.
Similar Listings Nearby
Additional Details
MLS # : REC4311850
Listing Key : REC2052285439
Parcel Number : 103468
Zip Code : 80021
City : Westminster
State : CO
Building if Condo :
Street : 9168 Flower Court
Address : 9168
Address Prefix :
Address Suffix : Court
Unit if Condo :
Latitude : 39.862808
Longitude : -105.099472
Property Type : singlefamily
Property Sub Type : Single Family Residence
Stories Total if Condo :
Lot Size : 7,890 sqft / 0.18 acres (approx)
Ownership : Individual
Zoning :
Condition : Updated/Remodeled
Renovation :
Pets Allowed :
Special Conditions : None
Possession : Closing/DOD,Immediate
Original Price : 510000
Close Price :
Close Date :
List Date : Feb 27, 2026
List Contract Date : 2026-02-27
Off Market Date :
Purchase Contract Date :
Days on Market : 49
Concessions Amount :
Concession Comment :

Copyright 2026. All rights reserved.
9168 Flower Court
Westminster, CO








































