4476 Utica Street Denver CO 80212 MLS #REC3085236
4476 Utica Street
Denver, CO, 80212
$1,550,000
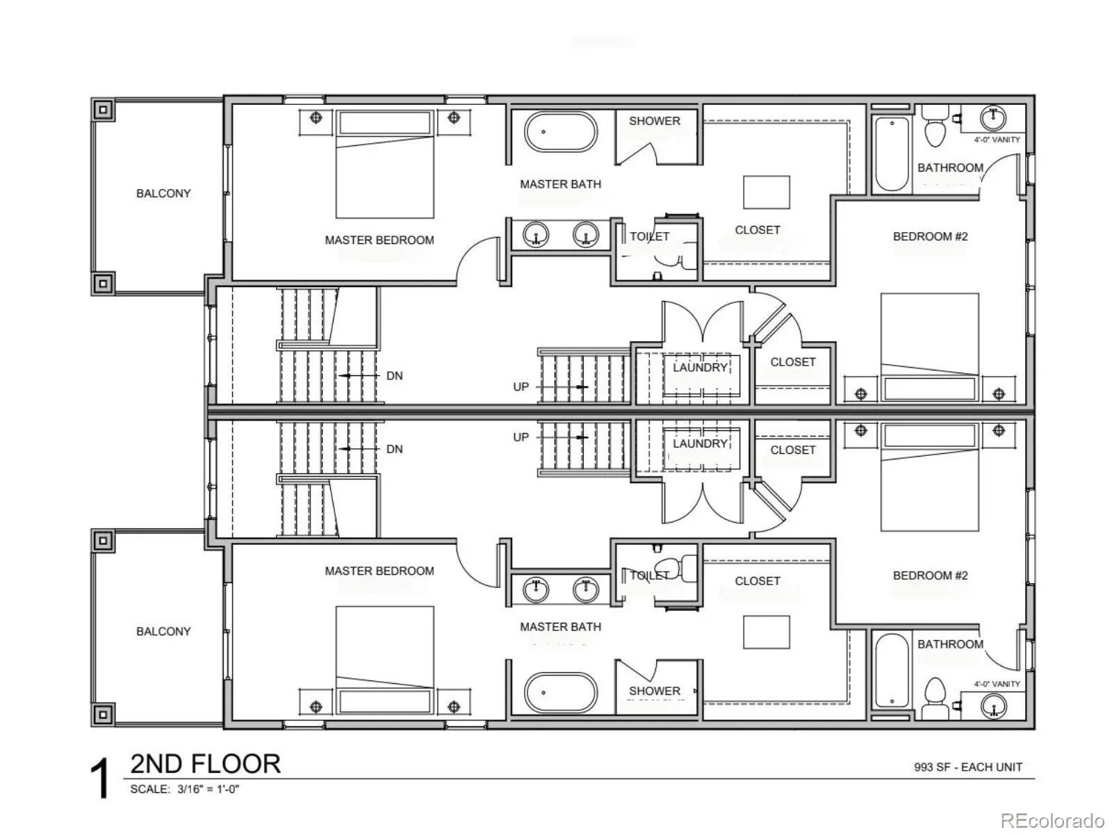
DO NOT MISS THIS OPPORTUNITY! For the next few weeks, 4476 Utica St. presents a real opportunity to customize an already luxurious home located in the coveted Berkeley neighborhood. This home has not yet broken ground, but will in May and is expected to be ready for move in by April of 2027. In addition to being able to select finishes throughout, there are still several different ways a buyer could even customize the floor plans to better fit their needs. On the 2nd floor, there are options for either two or three bedrooms, the 3rd floor offers the opportunity to get an additional bedroom or an unforgettable glass-walled office, and in the basement one can choose between two bedroom options with an additional laundry area or a one bedroom option with an amazing dedicated gym space complete with glass doors, a wet bar, wine cellar and media room. These floor plan options can be found in the photos along with photos of homes this builder has previously built demonstrating the level of finish a buyer can expect. Additional options include an outdoor kitchen, custom primary closet, dog door, dry sauna, etc., truly the options are endless. Serious inquirers should ask about how to tour one or both model homes to help understand what is being offered and the various options in play. If you do, you’ll see first hand the bold design and effortless livability of the floor plans along with numerous thoughtful and unexpected features you likely won’t find elsewhere. Every space has been intentionally designed, resulting in over 3,575 square feet of finished living space all arranged into a cohesive, highly functional floor plan that has been refined and perfected over more than a decade. Equally suited for everyday living and memorable entertaining. Contact the listing agent for additional information.
Property Details
Price:
$1,550,000
MLS #:
REC3085236
Status:
Active
Beds:
4
Baths:
5
Type:
Single Family
Subtype:
Single Family Residence
Subdivision:
Berkeley
Finished Sq Ft:
3,576
Total Sq Ft:
3,576
Lot Size:
3,125 sqft / 0.07 acres (approx)
Year Built:
2026
Schools
School District:
Denver 1
Elementary School:
Centennial
Middle School:
Skinner
High School:
North
Interior
Above Grade Finished Area
2620
Appliances
Bar Fridge, Dishwasher, Disposal, Microwave, Range, Range Hood, Refrigerator, Sump Pump, Tankless Water Heater
Bathrooms
2 Full Bathrooms, 2 Three Quarter Bathrooms, 1 Half Bathroom
Below Grade Finished Area
956
Cooling
Central Air
Fireplaces Total
1
Flooring
Carpet, Tile, Vinyl
Heating
Forced Air, Natural Gas
Laundry Features
In Unit, Laundry Closet
Levels
Three Or More
Main Level Bathrooms
1
Exterior
Architectural Style
Urban Contemporary
Common Walls
End Unit, 1 Common Wall
Construction Materials
Concrete, Frame, Stone, Stucco, Wood Siding
Direction Faces
West
Exterior Features
Balcony, Gas Valve, Lighting, Private Yard, Rain Gutters, Smart Irrigation
Fencing
Partial
Garage Spaces
2
Lot Features
Landscaped, Level, Many Trees, Near Public Transit, Sprinklers In Front, Sprinklers In Rear
Parking Features
220 Volts, Concrete, Exterior Access Door, Lighted, Oversized Door
Parking Spots
2
Parking Total
2
Patio And Porch Features
Covered, Front Porch, Patio, Rooftop
Roof
Composition, Membrane
View
Mountain(s)
Financial
Tax Year
2024
Taxes
$4,355
Map
Contact Us
Mortgage Calculator
Property Summary
- Located in the Berkeley subdivision, 4476 Utica Street Denver CO is a Single Family for sale in Denver, CO, 80212. It is listed for $1,550,000 and features 4 beds, 5 baths, and has approximately 3,576 square feet of living space, and was originally constructed in 2026. The current price per square foot is $433. The average price per square foot for Single Family listings in Denver is $400. The average listing price for Single Family in Denver is $994,273. To schedule a showing of MLS#rec3085236 at 4476 Utica Street in Denver, CO, contact your Smart Sale AI agent at 3039066915.
Similar Listings Nearby
Additional Details
MLS ID : REC3085236
Listing Key : REC2051666099
Parcel Number : 2192-17-003
Zip Code : 80212
City : Denver
State : CO
Building if Condo :
Full Street: 4476 Utica Street
Address : 4476
Address Prefix :
Address Suffix : Street
Street : Utica
Street Prefix :
Street Suffix :
Unit if Condo :
Latitude : 39.777977
Longitude : -105.044907
Property Type : singlefamily
Property Sub Type : Single Family Residence
Stories Total if Condo :
Lot Size : 3,125 sqft / 0.07 acres (approx)
Ownership : Builder
Zoning : U-TU-C
Condition : New Construction
Renovation :
Pets Allowed :
Special Conditions :
Possession : Closing/DOD
Original Price : 1550000
Close Price :
Close Date :
List Date : Apr 20, 2026
List Contract Date : 2026-04-20
Off Market Date :
Purchase Contract Date :
Days on Market : 36
Concessions Amount :
Concession Comment :
Renovation :
Company : Vision Real Estate Llc

Copyright 2026. All rights reserved.
4476 Utica Street
Denver, CO




















































