9073 E 29th Place Denver CO 80238 MLS #REC5638272
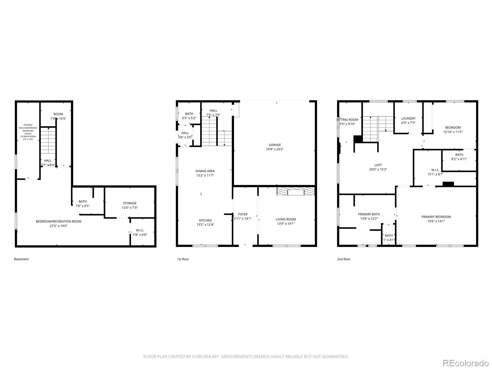
Fully remodeled, turnkey paired home one block from Central Park, offering a rare combination of privacy, outdoor charm, and low-maintenance living. This John Laing paired home offers a refined, low-maintenance lifestyle with access to some of the area’s most sought-after amenities. Positioned on a quiet courtyard with mature perennial gardens, the home balances privacy with convenience to 29th Avenue Town Center, Central Park recreation facilities, and nearby dining and retail.The interior has been recently updated with a cohesive, modern aesthetic. The kitchen features quartz countertops, a center island, Spanish tile backsplash, and new cabinetry, opening to an open, easy flow between kitchen, dining, and living spaces anchored by a gorgeous marble tile fireplace. Upstairs, the primary suite offers generous proportions and a remodeled, spa-like bath with soaking tub, walk-in double head shower, and walk-in closet. An additional en-suite bedroom, lofted living area suitable for office or media use, and laundry complete the upper level. The finished basement expands flexibility with a third bedroom, full bath, and an additional room well-suited for a gym, workspace, or guest overflow. Additional features include a two-car attached garage with EV charger and low-maintenance outdoor living within a private courtyard setting. A compelling alternative to single-family homes at this price point, without sacrificing space, updates, or location. With convenient access to Stanley Marketplace, Eastbridge, Central Park Rec Center and 29th Avenue Town Center, bike trails, light rail to Union Station and Denver International Airport, and a short commute to Anschutz Medical Campus, this home is ideal for both daily living and a lock-and-leave lifestyle. Designed for ease, comfort, and connection, this is Central Park living at its most practical and polished.
Property Details
Price:
$820,000
MLS #:
REC5638272
Status:
Active
Beds:
3
Baths:
4
Type:
Single Family
Subtype:
Single Family Residence
Subdivision:
Central Park
Finished Sq Ft:
2,787
Total Sq Ft:
2,974
Lot Size:
2,330 sqft / 0.05 acres (approx)
Year Built:
2005
Schools
School District:
Denver 1
Elementary School:
Swigert International
Middle School:
Denver Discovery
High School:
Northfield
Interior
Above Grade Finished Area
2124
Appliances
Cooktop, Dishwasher, Disposal, Dryer, Microwave, Range Hood, Refrigerator, Self Cleaning Oven, Sump Pump, Washer
Bathrooms
3 Full Bathrooms, 1 Half Bathroom
Below Grade Finished Area
663
Below Grade Unfinished Area
187
Cooling
Central Air
Fireplaces Total
1
Flooring
Carpet, Tile, Wood
Heating
Forced Air
Interior Features
Ceiling Fan(s), Entrance Foyer, Five Piece Bath, High Ceilings, Kitchen Island, Quartz Counters, Smoke Free, Walk-In Closet(s)
Laundry Features
In Unit
Levels
Two
Main Level Bathrooms
1
Exterior
Architectural Style
Traditional
Association Amenities
Garden Area, Park, Playground, Pool, Trail(s)
Common Walls
End Unit, 1 Common Wall
Construction Materials
Wood Siding
Direction Faces
East
Lot Features
Level, Sprinklers In Front
Parking Features
Electric Vehicle Charging Station(s), Finished Garage, Floor Coating
Parking Spots
2
Parking Total
2
Patio And Porch Features
Front Porch
Roof
Composition
Security Features
Carbon Monoxide Detector(s), Smoke Detector(s)
Window Features
Double Pane Windows, Storm Window(s), Window Treatments
Financial
HOA Fee
$56
HOA Fee 2
$648
HOA Fee 2 Frequency
Monthly
HOA Fee Frequency
Monthly
HOA Includes
Reserves, Maintenance Grounds, Maintenance Structure, Sewer, Snow Removal, Trash, Water
HOA Name
MCA
HOA Name 2
Central Park Paired Home Home Owners Association
HOA Phone
303.388.0724
HOA Phone 2
720-416-5588
Tax Year
2025
Taxes
$7,183
Map
Contact Us
Mortgage Calculator
Property Summary
- Located in the Central Park subdivision, 9073 E 29th Place Denver CO is a Single Family for sale in Denver, CO, 80238. It is listed for $820,000 and features 3 beds, 4 baths, and has approximately 2,787 square feet of living space, and was originally constructed in 2005. The current price per square foot is $294. The average price per square foot for Single Family listings in Denver is $424. The average listing price for Single Family in Denver is $1,011,173. To schedule a showing of MLS#rec5638272 at 9073 E 29th Place in Denver, CO, contact your Smart Sale AI agent at 3039066915.
Similar Listings Nearby
Additional Details
MLS # : REC5638272
Listing Key : REC2053077789
Parcel Number : 1273-12-022
Zip Code : 80238
City : Denver
State : CO
Building if Condo :
Street : 9073 E 29th Place
Address : 9073
Address Prefix :
Address Suffix : Place
Unit if Condo :
Latitude : 39.759319
Longitude : -104.882225
Property Type : singlefamily
Property Sub Type : Single Family Residence
Stories Total if Condo :
Lot Size : 2,330 sqft / 0.05 acres (approx)
Ownership : Individual
Zoning : R-MU-30
Condition :
Renovation :
Pets Allowed : Yes
Special Conditions : None
Possession : Closing/DOD
Original Price : 820000
Close Price :
Close Date :
List Date : Apr 8, 2026
List Contract Date : 2026-04-08
Off Market Date :
Purchase Contract Date :
Days on Market : 13
Concessions Amount :
Concession Comment :

Copyright 2026. All rights reserved.
9073 E 29th Place
Denver, CO





















