1311 N Lafayette Street Denver CO 80218 MLS #REC4212171
1311 N Lafayette Street
Denver, CO, 80218
$1,595,000
Step back into Denver’s golden era—circa 1907—the same year City Council officially renamed the park on Capitol Hill to Cheesman Park, making it a blossoming centerpiece of the city. During this vibrant time, the iconic Denver Square took hold, and 1311 Lafayette Street was thoughtfully crafted, showcasing a striking front-facing gable and distinctive fishscale shingle detailing. Inside, the home is a rare preservation of history, where original craftsmanship remains beautifully intact. Stained glass accents, stately pocket doors, intricate Victorian millwork, and leaded glass windows create a warm, soulful atmosphere that feels both timeless and inviting. These historic elements have been carefully restored and paired with era-conscious modern updates, resulting in a seamless blend of character and comfort. The spacious layout offers an easy, natural flow, ideal for both everyday living and entertaining. The kitchen is designed with both function and style in mind, featuring high-end JennAir appliances and a layout that makes cooking a pleasure. A dedicated office provides the perfect remote work retreat, complete with an original built-in bookshelf and an ornate fireplace that inspires focus and creativity. Outdoors, a private backyard offers a peaceful escape—perfect for summer gatherings, gardening, or simply unwinding with a good book. A rare three-car garage includes an EV charger, while owned solar panels significantly reduce utility costs. Located just two blocks from Cheesman Park, this home offers the best of historic charm with low-maintenance living—an exceptional opportunity you won’t want to miss.
Property Details
Price:
$1,595,000
MLS #:
REC4212171
Status:
Active
Beds:
5
Baths:
5
Type:
Single Family
Subtype:
Single Family Residence
Subdivision:
Cheesman Park
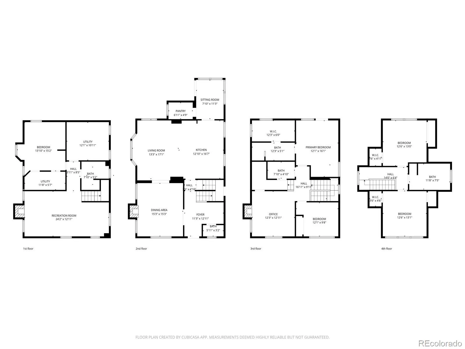
Finished Sq Ft:
3,706
Total Sq Ft:
3,706
Lot Size:
4,690 sqft / 0.11 acres (approx)
Year Built:
1907
Schools
School District:
Denver 1
Elementary School:
Dora Moore
Middle School:
Morey
High School:
East
Interior
Above Grade Finished Area
2674
Appliances
Dishwasher, Disposal, Dryer, Gas Water Heater, Microwave, Range, Refrigerator, Washer, Wine Cooler
Bathrooms
2 Full Bathrooms, 2 Three Quarter Bathrooms, 1 Half Bathroom
Below Grade Finished Area
1032
Cooling
Central Air
Fireplaces Total
3
Flooring
Tile, Wood
Heating
Electric, Forced Air
Interior Features
Built-in Features, Ceiling Fan(s), Eat-in Kitchen, Entrance Foyer, Five Piece Bath, High Ceilings, Kitchen Island, Open Floorplan, Pantry, Primary Suite, Stone Counters, Walk-In Closet(s)
Laundry Features
Sink, In Unit
Levels
Three Or More
Main Level Bathrooms
1
Exterior
Architectural Style
Denver Square
Construction Materials
Brick
Direction Faces
East
Exterior Features
Balcony, Garden, Private Yard
Fencing
Full
Garage Spaces
3
Lot Features
Level, Near Public Transit
Parking Spots
3
Parking Total
3
Patio And Porch Features
Covered, Front Porch, Patio
Roof
Shingle
View
City, Mountain(s)
Window Features
Bay Window(s), Skylight(s), Window Coverings, Window Treatments
Financial
Tax Year
2024
Taxes
$7,189
Map
Contact Us
Mortgage Calculator
Property Summary
- Located in the Cheesman Park subdivision, 1311 N Lafayette Street Denver CO is a Single Family for sale in Denver, CO, 80218. It is listed for $1,595,000 and features 5 beds, 5 baths, and has approximately 3,706 square feet of living space, and was originally constructed in 1907. The current price per square foot is $430. The average price per square foot for Single Family listings in Denver is $424. The average listing price for Single Family in Denver is $1,008,693. To schedule a showing of MLS#rec4212171 at 1311 N Lafayette Street in Denver, CO, contact your Smart Sale AI agent at 3039066915.
Similar Listings Nearby
Additional Details
MLS # : REC4212171
Listing Key : REC2053227203
Parcel Number : 5022-16-016
Zip Code : 80218
City : Denver
State : CO
Building if Condo :
Street : 1311 N Lafayette Street
Address : 1311
Address Prefix :
Address Suffix : Street
Unit if Condo :
Latitude : 39.737179
Longitude : -104.970886
Property Type : singlefamily
Property Sub Type : Single Family Residence
Stories Total if Condo :
Lot Size : 4,690 sqft / 0.11 acres (approx)
Ownership : Individual
Zoning : U-RH-3A
Condition : Updated/Remodeled
Renovation :
Pets Allowed :
Special Conditions : None
Possession :
Original Price : 1595000
Close Price :
Close Date :
List Date : Apr 15, 2026
List Contract Date : 2026-04-15
Off Market Date :
Purchase Contract Date :
Days on Market : 2
Concessions Amount :
Concession Comment :

Copyright 2026. All rights reserved.
1311 N Lafayette Street
Denver, CO














































