415 S Williams Street Denver CO 80209 MLS #REC7204858
415 S Williams Street
Denver, CO, 80209
$2,995,000
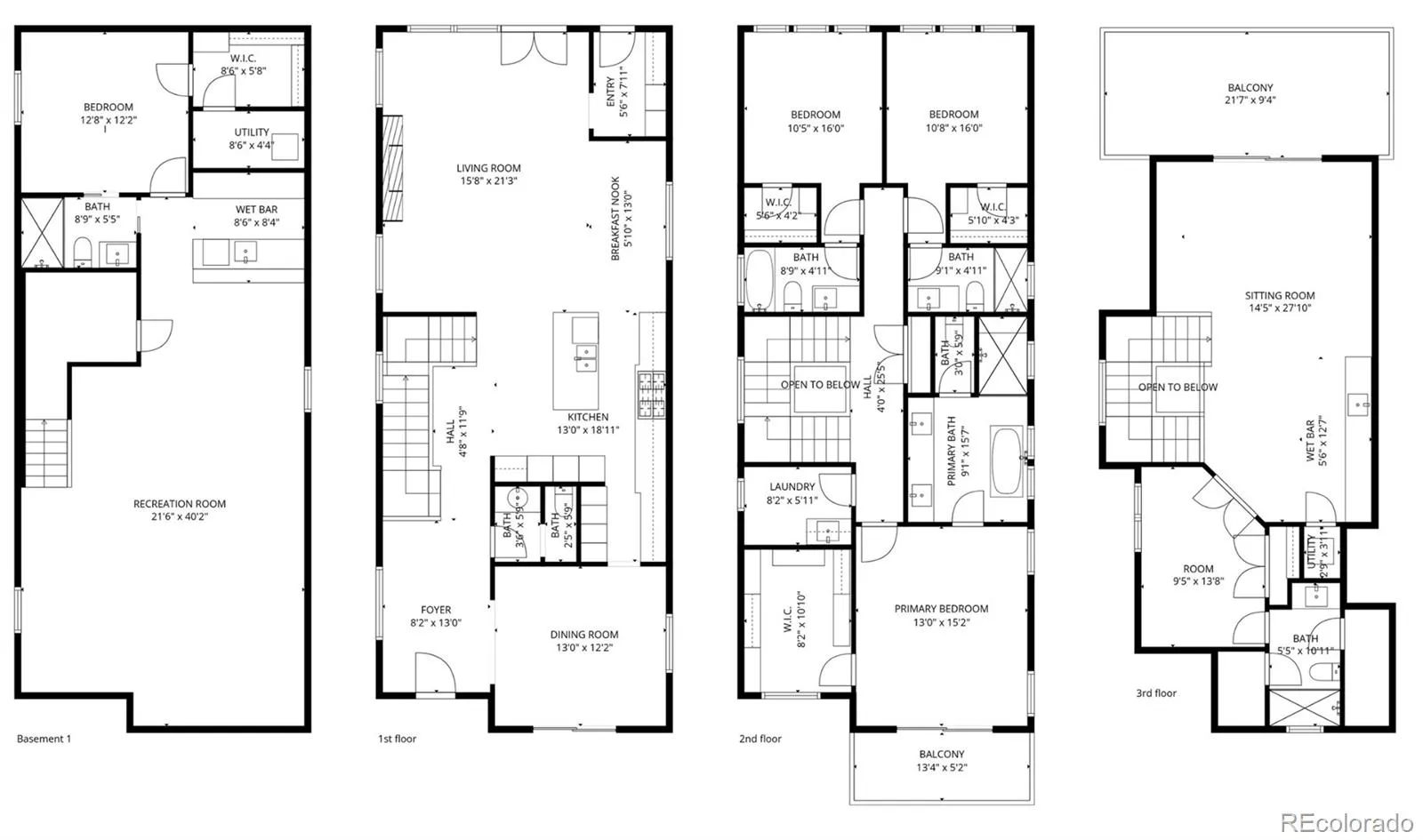
Striking modern architecture and timeless materiality converge in this newly constructed East Wash Park residence, thoughtfully designed across multiple light-filled levels. Located just moments from Washington Park, this home delivers a premier Denver lifestyle with immediate access to trails, green space, and neighborhood favorites. Intentional craftsmanship is evident at every turn, from the sculptural steel staircase to expansive walls of glass that flood the interiors with natural light, illuminating wide-plank hardwood floors and refined Venetian plaster accents. The main level is curated for effortless indoor–outdoor living, anchored by a linear gas fireplace and dramatic floor-to-ceiling glass that opens seamlessly to a private yard. A professional-grade chef’s kitchen serves as the heart of the home, featuring a waterfall Taj Mahal quartzite island, integrated Thermador refrigerator and freezer towers, a statement gas range, custom cabinetry, and a fully appointed butler’s pantry with wine refrigeration. Upstairs, all bedrooms are ensuite, including a serene primary retreat with a private balcony, spa-inspired five-piece bath, and generous walk-in closet. The third level offers a skylit recreation lounge with wet bar and beverage center, an additional office or bedroom suite, and a rooftop deck ideal for entertaining and mountain-view moments. The finished lower level expands the living experience with a full wet bar complete with an ice maker and beverage refrigeration, a media lounge, and a private guest suite. Throughout the home, curated lighting, custom millwork, and thoughtful storage solutions underscore a cohesive, elevated design sensibility where architectural sophistication meets everyday ease.
Property Details
Price:
$2,995,000
MLS #:
REC7204858
Status:
Active
Beds:
5
Baths:
6
Type:
Single Family
Subtype:
Single Family Residence
Subdivision:
Washington Park
Finished Sq Ft:
4,309
Total Sq Ft:
4,309
Lot Size:
4,165 sqft / 0.10 acres (approx)
Year Built:
2026
Schools
School District:
Denver 1
Elementary School:
Steele
Middle School:
Merrill
High School:
South
Interior
Above Grade Finished Area
3205
Appliances
Bar Fridge, Convection Oven, Cooktop, Dishwasher, Disposal, Double Oven, Freezer, Microwave, Range, Range Hood, Refrigerator, Sump Pump, Tankless Water Heater
Bathrooms
2 Full Bathrooms, 3 Three Quarter Bathrooms, 1 Half Bathroom
Below Grade Finished Area
1104
Cooling
Central Air
Fireplaces Total
1
Flooring
Carpet, Tile, Wood
Heating
Forced Air
Interior Features
Breakfast Bar, Built-in Features, Ceiling Fan(s), Eat-in Kitchen, Entrance Foyer, Five Piece Bath, High Ceilings, Kitchen Island, Open Floorplan, Pantry, Primary Suite, Smoke Free, Walk-In Closet(s), Wet Bar
Laundry Features
Sink
Levels
Three Or More
Main Level Bathrooms
1
Exterior
Architectural Style
Urban Contemporary
Construction Materials
Brick, Frame, Stucco, Wood Siding
Direction Faces
East
Exterior Features
Balcony
Garage Spaces
2
Parking Features
220 Volts
Parking Spots
2
Parking Total
2
Patio And Porch Features
Deck, Front Porch, Patio, Rooftop
Roof
Composition
View
Mountain(s)
Window Features
Double Pane Windows
Financial
Tax Year
2024
Taxes
$3,412
Map
Contact Us
Mortgage Calculator
Property Summary
- Located in the Washington Park subdivision, 415 S Williams Street Denver CO is a Single Family for sale in Denver, CO, 80209. It is listed for $2,995,000 and features 5 beds, 6 baths, and has approximately 4,309 square feet of living space, and was originally constructed in 2026. The current price per square foot is $695. The average price per square foot for Single Family listings in Denver is $424. The average listing price for Single Family in Denver is $1,011,026. To schedule a showing of MLS#rec7204858 at 415 S Williams Street in Denver, CO, contact your Smart Sale AI agent at 3039066915.
Similar Listings Nearby
Additional Details
MLS # : REC7204858
Listing Key : REC2050505917
Parcel Number : 5141-10-027
Zip Code : 80209
City : Denver
State : CO
Building if Condo :
Street : 415 S Williams Street
Address : 415
Address Prefix :
Address Suffix : Street
Unit if Condo :
Latitude : 39.708992
Longitude : -104.966629
Property Type : singlefamily
Property Sub Type : Single Family Residence
Stories Total if Condo :
Lot Size : 4,165 sqft / 0.10 acres (approx)
Ownership : Corporation/Trust
Zoning : U-SU-C
Condition : New Construction
Renovation :
Pets Allowed :
Special Conditions : None
Possession :
Original Price : 2995000
Close Price :
Close Date :
List Date : Jan 30, 2026
List Contract Date : 2026-01-30
Off Market Date :
Purchase Contract Date :
Days on Market : 78
Concessions Amount :
Concession Comment :

Copyright 2026. All rights reserved.
415 S Williams Street
Denver, CO










































