5366 W Portland Drive Littleton CO 80128 MLS #REC8750322
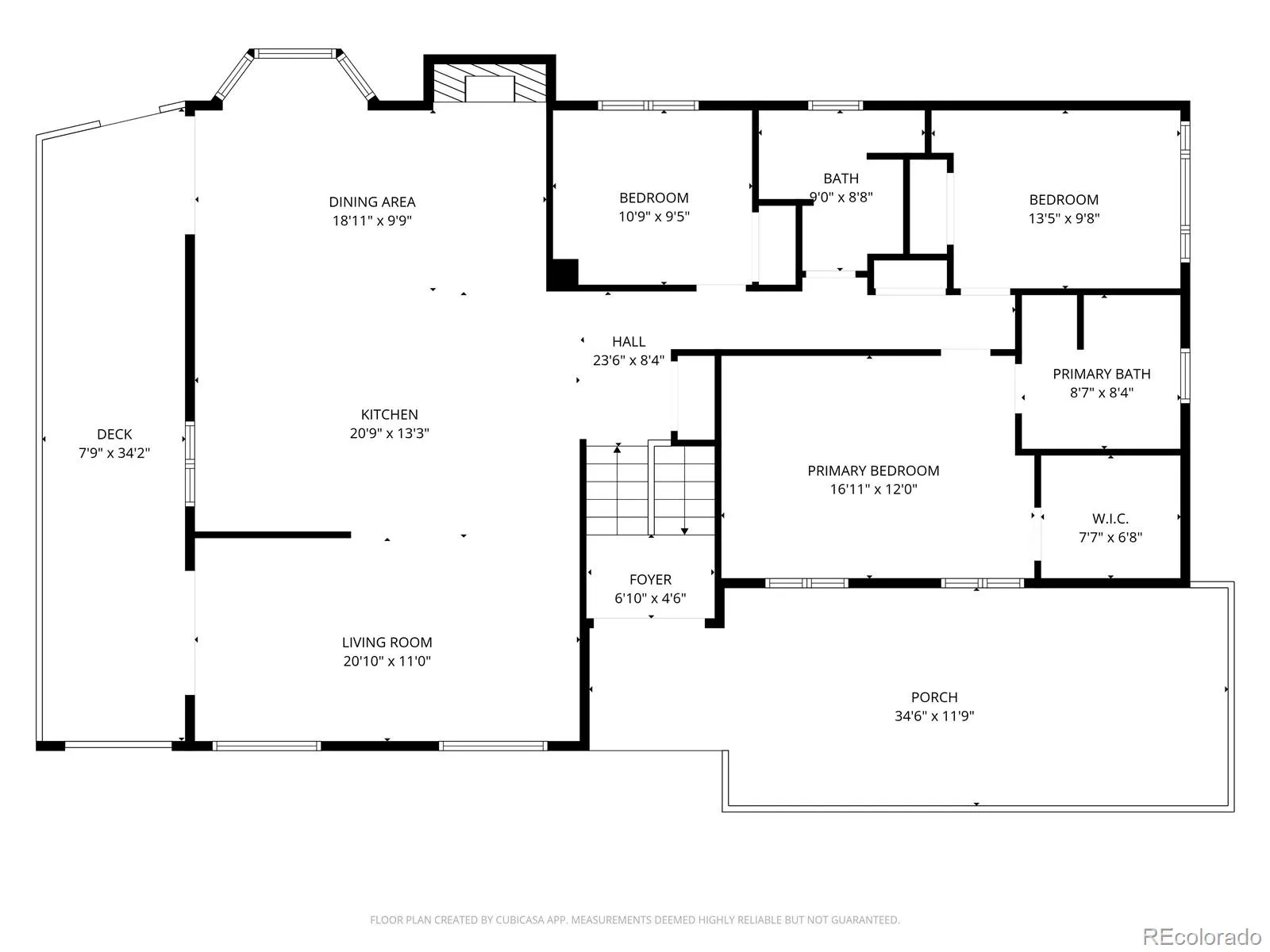
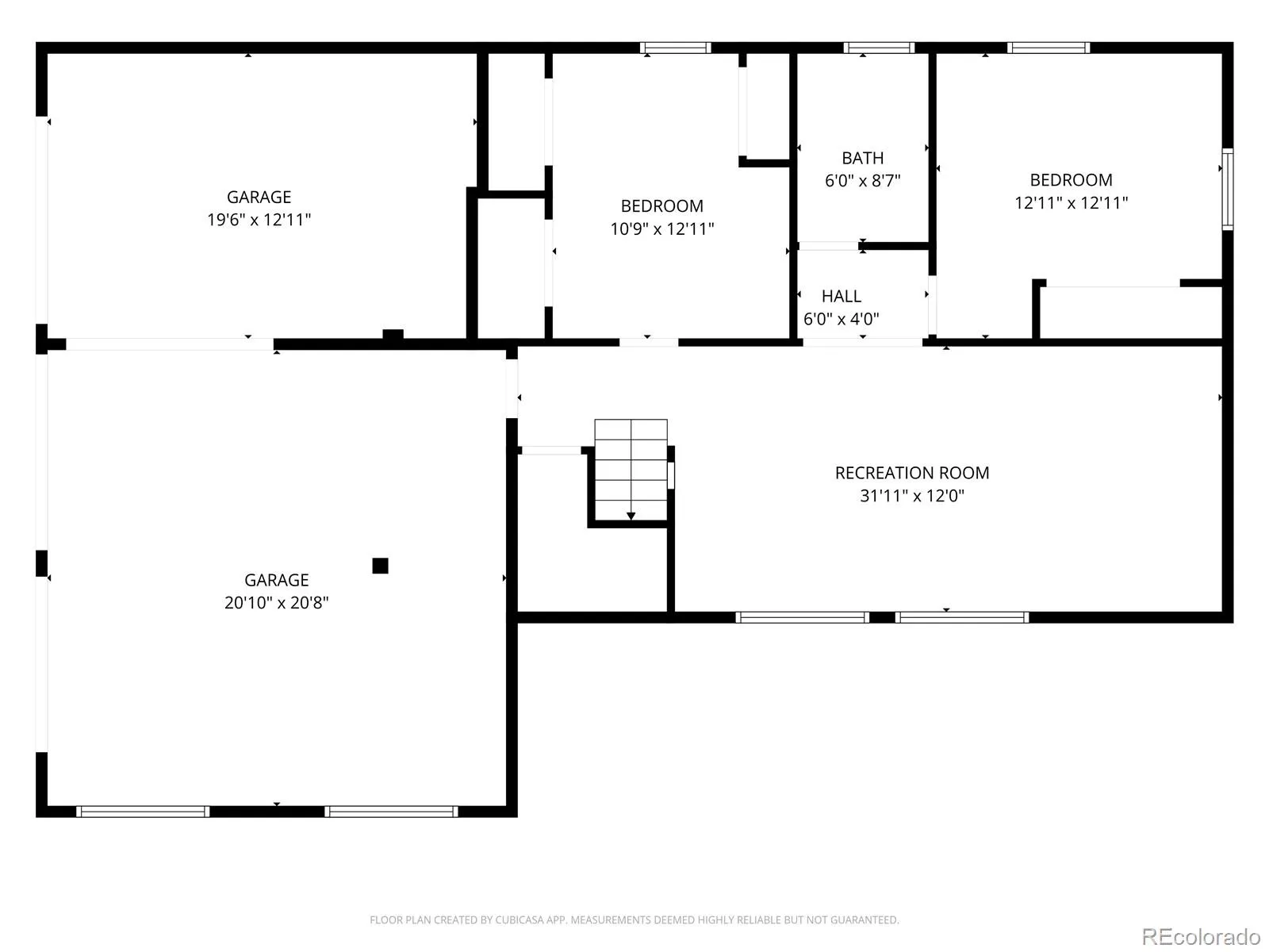
Beautiful fully renovated home located in highly sought after Normandy Estates, neighborhood. This stunning 5 bedroom three bath home has been completely professionally renovated and updated. Beautiful semiprivate large front entrance patio leads to the grand custom entry door and custom entrance. The main level has been opened to create a stunning kitchen/dining/living area that features a fireplace, a quartz island and a stunning chef level kitchen. The kitchen features top end appliances including a dual fuel range, ice maker, and expansive cabinets. The breakfast nook opens onto the wrap around deck that runs the entire width of the house and features an additional entry door to the living room. The main floor primary suite includes a large walk in closet with complete 5 piece bathroom featuring a high end designer tiling and amenities throughout. There are two additional main floor bedrooms and a separate matching designer finished bathroom. The professionally redesigned and finished basement offers a large gathering (living room) along with 2 bedrooms and another designer finished bathroom. The basement features large windows throughout and is truly a “daylight” basement. The large 3 car garage is one of the few three car garages in this beautiful neighborhood. One section of the garage is separated creating an ideal area for a shop or craft area. The garage also features “daylight” windows and has been professionally designed with lighting and sealed flooring, and brand new daylights doors and openers. The garage also features 220 power outlets for easy EV charging. The backyard features a new privacy fence as well as a large area set aside and fenced for a private garden. The home has a large shed to store all hand tools and equipment.
Property Details
Price:
$1,195,000
MLS #:
REC8750322
Status:
Active
Beds:
5
Baths:
3
Type:
Single Family
Subtype:
Single Family Residence
Subdivision:
Normandy Estates
Finished Sq Ft:
2,546
Total Sq Ft:
2,546
Lot Size:
13,286 sqft / 0.31 acres (approx)
Year Built:
1968
Schools
School District:
Jefferson County R-1
Elementary School:
Normandy
Middle School:
Ken Caryl
High School:
Columbine
Interior
Above Grade Finished Area
2546
Appliances
Dishwasher, Disposal, Double Oven, Gas Water Heater, Microwave, Oven, Range, Range Hood, Refrigerator
Bathrooms
1 Full Bathroom, 2 Three Quarter Bathrooms
Cooling
Central Air
Fireplaces Total
1
Flooring
Carpet, Wood
Heating
Forced Air, Hot Water, Natural Gas
Interior Features
Breakfast Bar, Eat-in Kitchen, Entrance Foyer, Five Piece Bath, Kitchen Island, Open Floorplan, Primary Suite, Quartz Counters, Smart Thermostat, Smoke Free, Walk-In Closet(s)
Levels
Bi-Level
Exterior
Architectural Style
Mid-Century Modern
Association Amenities
Pool, Tennis Court(s)
Attached Garage YN
1
Construction Materials
Brick, Cement Siding
Direction Faces
Northeast
Exterior Features
Balcony, Garden, Private Yard, Rain Gutters
Fencing
Full
Garage Spaces
3
Green Energy Efficient
Appliances, Exposure/Shade, HVAC, Insulation, Lighting, Thermostat, Water Heater, Windows
Lot Features
Irrigated, Landscaped, Level, Many Trees, Near Public Transit, Secluded, Sprinklers In Front, Sprinklers In Rear
Parking Features
220 Volts, Concrete, Finished Garage, Floor Coating, Insulated Garage, Lighted, Storage
Parking Spots
3
Parking Total
3
Patio And Porch Features
Covered, Deck, Front Porch, Patio
Roof
Composition
Security Features
Carbon Monoxide Detector(s), Smoke Detector(s)
View
Mountain(s)
Window Features
Bay Window(s), Double Pane Windows, Egress Windows
Financial
HOA Fee
$100
HOA Fee Frequency
Annually
HOA Name
Normandy Estates
HOA Phone
(503) 780-1957
Tax Year
2024
Taxes
$3,805
Map
Contact Us
Mortgage Calculator
Property Summary
- Located in the Normandy Estates subdivision, 5366 W Portland Drive Littleton CO is a Single Family for sale in Littleton, CO, 80128. It is listed for $1,195,000 and features 5 beds, 3 baths, and has approximately 2,546 square feet of living space, and was originally constructed in 1968. The current price per square foot is $469. The average price per square foot for Single Family listings in Littleton is $314. The average listing price for Single Family in Littleton is $1,029,626. To schedule a showing of MLS#rec8750322 at 5366 W Portland Drive in Littleton, CO, contact your Smart Sale AI agent at 3039066915.
Similar Listings Nearby
Additional Details
MLS ID : REC8750322
Listing Key : REC2053193584
Parcel Number : 071224
Zip Code : 80128
City : Littleton
State : CO
Building if Condo :
Full Street: 5366 W Portland Drive
Address : 5366
Address Prefix :
Address Suffix : Drive
Street : Portland
Street Prefix : W
Street Suffix :
Unit if Condo :
Latitude : 39.589893
Longitude : -105.054832
Property Type : singlefamily
Property Sub Type : Single Family Residence
Stories Total if Condo :
Lot Size : 13,286 sqft / 0.31 acres (approx)
Ownership : Corporation/Trust
Zoning : R-1A
Condition : Updated/Remodeled
Renovation :
Pets Allowed : Yes
Special Conditions : None
Possession : Immediate
Original Price : 1250000
Close Price :
Close Date :
List Date : Apr 6, 2026
List Contract Date : 2026-04-06
Off Market Date :
Purchase Contract Date :
Days on Market : 51
Concessions Amount :
Concession Comment :
Renovation :
Company : Walker Commercial Inc

Copyright 2026. All rights reserved.
5366 W Portland Drive
Littleton, CO




















































