2335 Provenance Street Longmont CO 80504 MLS #RECIR1054269
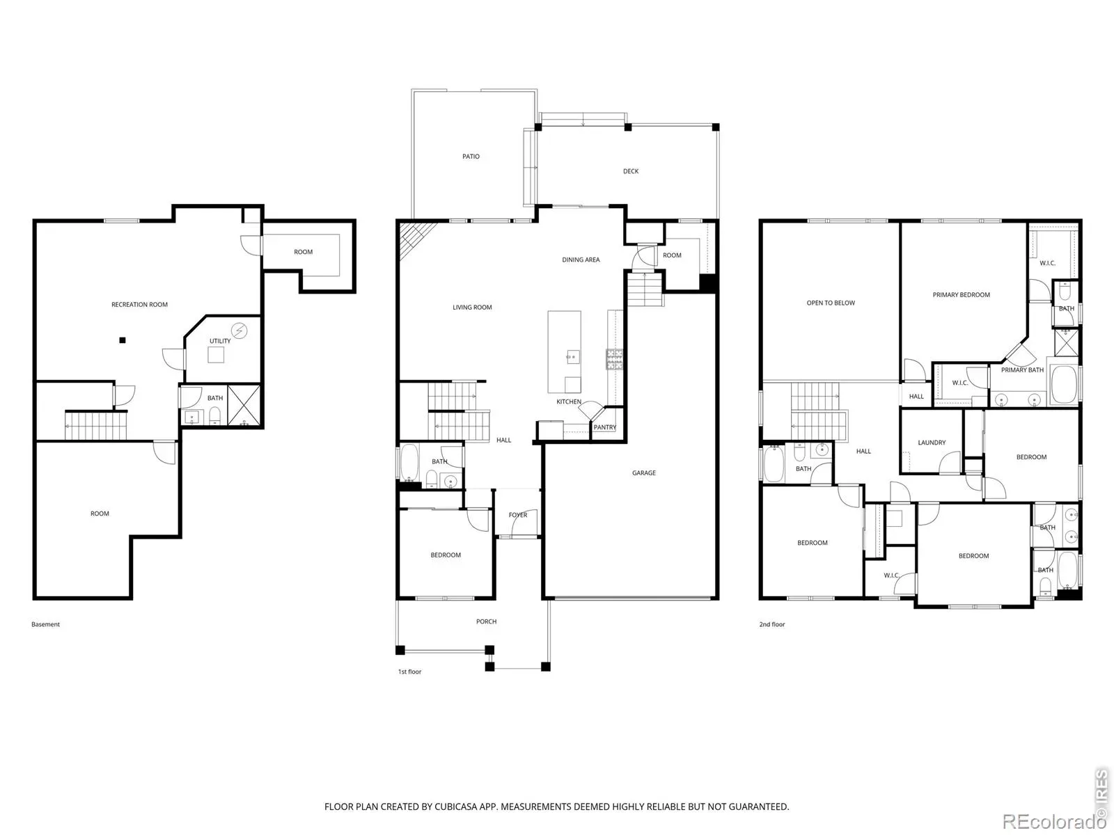
2335 Provenance Street in Longmont, where thoughtful design, spacious living, and beautiful surroundings come together seamlessly. This well-appointed home offers a functional and inviting layout ideal for both everyday living and entertaining.Upstairs, you’ll find 4 generously sized bedrooms, including a relaxing primary suite designed as a private retreat with a spacious en suite bath and ample closet space. Two of the secondary bedrooms are connected by a convenient Jack-and-Jill bathroom, while the fourth bedroom offers flexibility for guests, hobbies, or additional living space.The main level features a dedicated office, perfect for working from home or creating a quiet study area, along with a full bathroom nearby-ideal for guests or multi-generational living. The open-concept layout flows effortlessly, offering comfortable living and dining spaces that connect beautifully to the heart of the home.A three-car garage provides abundant room for vehicles, storage, and outdoor gear, adding to the home’s practicality. Step outside to enjoy stunning mountain views that create a picturesque backdrop year-round, whether you’re enjoying a quiet morning or hosting an evening gathering.Located in a desirable Longmont neighborhood, this home combines comfort, versatility, and scenic charm-making it an exceptional opportunity you won’t want to miss.
Property Details
Price:
$879,000
MLS #:
RECIR1054269
Status:
Active Under Contract
Beds:
5
Baths:
5
Type:
Single Family
Subtype:
Single Family Residence
Subdivision:
Provenance
Finished Sq Ft:
3,575
Total Sq Ft:
4,063
Lot Size:
6,803 sqft / 0.16 acres (approx)
Year Built:
2017
Schools
School District:
St. Vrain Valley RE-1J
Elementary School:
Alpine
Middle School:
Timberline
High School:
Silver Creek
Interior
Above Grade Finished Area
2874
Appliances
Dishwasher, Oven, Refrigerator
Bathrooms
4 Full Bathrooms, 1 Three Quarter Bathroom
Below Grade Finished Area
701
Below Grade Unfinished Area
488
Cooling
Central Air
Flooring
Tile
Heating
Forced Air
Levels
Two
Main Level Bathrooms
1
Main Level Bedrooms
1
Exterior
Association Amenities
Park
Attached Garage YN
1
Construction Materials
Stone, Frame
Garage Spaces
3
Lot Features
Sprinklers In Front
Parking Spots
3
Parking Total
3
Patio And Porch Features
Patio
Roof
Composition
View
Mountain(s)
Window Features
Window Coverings
Financial
HOA Fee
$75
HOA Fee Frequency
Monthly
HOA Includes
Reserves
HOA Name
Provenance HOA
HOA Phone
303-457-1444
Tax Year
2025
Taxes
$5,267
Map
Contact Us
Mortgage Calculator
Property Summary
- Located in the Provenance subdivision, 2335 Provenance Street Longmont CO is a Single Family for sale in Longmont, CO, 80504. It is listed for $879,000 and features 5 beds, 5 baths, and has approximately 3,575 square feet of living space, and was originally constructed in 2017. The current price per square foot is $246. The average price per square foot for Single Family listings in Longmont is $348. The average listing price for Single Family in Longmont is $1,136,479. To schedule a showing of MLS#recir1054269 at 2335 Provenance Street in Longmont, CO, contact your Smart Sale AI agent at 3039066915.
Similar Listings Nearby
Additional Details
MLS ID : RECIR1054269
Listing Key : REC2052798074
Parcel Number : R0604442
Zip Code : 80504
City : Longmont
State : CO
Building if Condo :
Full Street: 2335 Provenance Street
Address : 2335
Address Prefix :
Address Suffix : Street
Street : Provenance
Street Prefix :
Street Suffix :
Unit if Condo :
Latitude : 40.199192
Longitude : -105.064186
Property Type : singlefamily
Property Sub Type : Single Family Residence
Stories Total if Condo :
Lot Size : 6,803 sqft / 0.16 acres (approx)
Ownership : Individual
Zoning : SFR
Condition :
Renovation :
Pets Allowed :
Special Conditions :
Possession : Closing/DOD
Original Price : 879000
Close Price :
Close Date :
List Date : Mar 19, 2026
List Contract Date : 2026-03-19
Off Market Date : 2026-05-01
Purchase Contract Date : 2026-05-01
Days on Market : 68
Concessions Amount :
Concession Comment :
Renovation :
Company : Compass – Boulder

Copyright 2026. All rights reserved.
2335 Provenance Street
Longmont, CO




















































